天天彩于海滨海3d最新预测_3d小胆神玩毒胆_黄皮子独胆今晚_3d独胆_今晚3d预测推荐一注,于海滨一语点评今日_3d之家太湖字谜_3d近100期试机号结果_3d今晚十大专家预测汇总_3d个位振幅遗漏走势图 ,3d预测图_3d钱王点评预测_3d走势基本图_周不出杀码图最新_3d专家预测最新最准推荐 ,今天3d必出一注_中彩3d_3d杀码今天_3d今天最准专家预测_3d开机号试机号是多少

網站首頁 > 新聞資訊 > 他們在混凝土結構中加入木結構,讓建筑與自然相融,這樣的設計太走心了!
PRODUCT
----Core product 新聞資訊
新聞資訊

Canada Wood China


 混合木結構的辦公建筑 

巧妙的可能性


中加現代木結構建筑在中國已經進行了很多嘗試,雪浪小鎮數據創新中心項目的獨特性在于,它雖然大量采用了木材,但卻是一座現代化的辦公樓。從外觀和設計風格上來看,我們很難猜到它是一座膠合木框架結構的辦公建筑,它的建成,為多層木結構在大型辦公建筑領域的應用提供了多方面的參考和經驗。

1.jpg

2.jpg

項目鳥瞰實景(加拿大木業供圖,攝影 ?金偉琦)

01

 概 況 


雪浪小鎮數據創新中心的基地位于無錫太湖新城核心區,項目東側緊鄰尚賢河濕地公園,西側聚集各類金融產業辦公建筑,園區科技金融氛圍濃厚。建筑師希望將建筑理性兼顧尊重周邊現有環境的姿態融入到城市街區之中,在這個前提下去創造一個既體現江南的傳統文化,又展現出現代產業園區特點的,充滿活力的太湖新城的“城市客廳”。 

3.jpg

項目鳥瞰實景(加拿大木業供圖,攝影 ?金偉琦)

這是加拿大木業又一中加現代木結構合作項目。加拿大木業在本項目的設計和施工過程中提供了木結構相關的技術支持,包括圖紙審閱和設計建議、施工前期的技術培訓,以及施工過程中的質量監督等。

基地內共五棟辦公建筑,從南向北一字排開,總建筑面積約8.7萬平方米。在方案階段時,基地內的五棟建筑均被設計為混凝土結構,但在考慮了節能、低碳、造價和工期等諸多因素后,開發商決定將基地最北面的A1號樓改為膠合木框架結構。

4.jpg5.jpg

6.jpg

立面實(加拿大木業供圖,攝影 ?金偉琦)

7.jpg

立面設計效果圖 ?上海興筑建筑設計

8.jpg

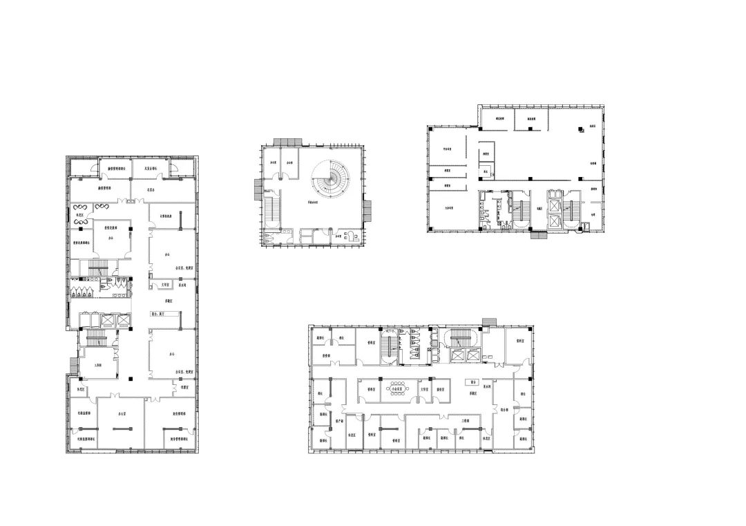
02

 獨特性 


A1號辦公樓為五層砼木組合結構建筑,總建筑面積約為一萬平方米,其中木結構部分約為5780平米。建筑的平面呈回形布置,四周的建筑將中間的室外空間圍合,形成一個庭院。

9.jpg


A1號辦公樓總平面圖 ?上海興筑建筑設計

下部1至2層混凝土結構是回形建筑的基座,它僅在中心庭院的主入口部分斷開。而在這斷開處的上部,兩棟外形分離的3層木結構建筑(A1-1和A1-3)通過一個巨大的坡屋面相連。這樣的設計既保證了整棟建筑的整體性,又可以滿足木結構建筑防火分區的需要。

10.jpg

項目鳥瞰實景(加拿大木業供圖,攝影 ?金偉琦)

連接屋面采用了膠合木和鋼拉桿形成的張弦梁結構,跨度約為20米。考慮到兩側高低不同的木結構建筑側向變形的獨立性,連接屋面的一側采用了滑動支座的設計。

11.jpg

木結構連廊與木構小品(加拿大木業供圖,攝影 ?金偉琦)

12.jpg

木結構連廊細節(加拿大木業供圖,攝影 ?金偉琦)

在連接屋面的下方,有兩座鋼木混合結構的傘狀構筑物,它們為屋面下高大的空間增加了更多的層次和趣味,同時也為整體建筑冷色調的外立面增添了些許木色的溫暖質感。

13.jpg14.jpg木構小品(加拿大木業供圖,攝影 ?金偉琦)

第三棟較小的2層木結構建筑(A1-2),以一個立方體玻璃盒子的形象出現在混凝土結構基座形成的室外平臺上。玻璃盒子由一個旋轉樓梯將底層混凝土結構和上部兩層木結構聯通。樓梯的底部直接連接一層室外,頂部終止于一個圓形的天窗。

15.jpg

建筑內庭院實景(加拿大木業供圖,攝影 ?金偉琦)

16.jpg

旋轉樓梯夜景(加拿大木業供圖,攝影 ?金偉琦)

17.jpg

旋轉樓梯內景(加拿大木業供圖,攝影 ?金偉琦)

18.jpg木結構圓形天窗(加拿大木業供圖,攝影 ?金偉琦)

19.jpg建筑內部(加拿大木業供圖,攝影 ?金偉琦)


其余兩個單元A1-1和A1-3都設計了從底到頂的混凝土結構塔樓。在結構上,塔樓和膠合木斜撐共同為整體結構提供了側向穩定。這是多高層木結構常見的設計手法。


木結構主體框架使用了產自加拿大的花旗松,在國內工廠加工成膠合木構件,并采用自動化生產設備進行切割、打孔和開槽。膠合木構件之間采用鋼連接件和螺栓連接。



03

 施工過程 

20.jpg

膠合木吊裝過程 ?加拿大木業


21.jpg


膠合木梁柱施工現場 ?加拿大木業


22.jpg金屬連接件細節 ?加拿大木業
為了加快主體結構的施工進度,樓面采用了由SPF木骨架和定向刨花板構成的輕型樓面,并在工廠預制完成。這樣每層樓面的安裝時間大大縮減至一到兩天。(整棟建筑共使用了約720立方米的花旗松膠合木和約260立方米的SPF規格材。)

23.jpg預制樓板構件工廠加工 ?加拿大木業

24.jpg

25.jpg預制樓板構件安裝過程 ?加拿大木業


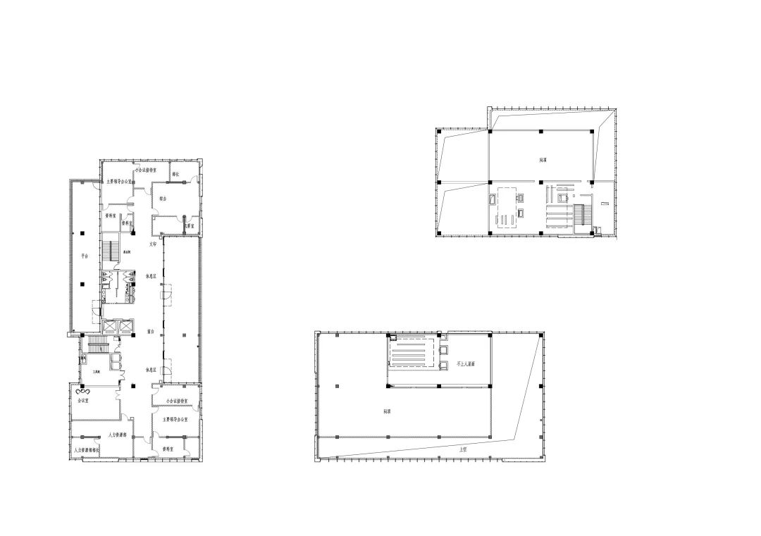
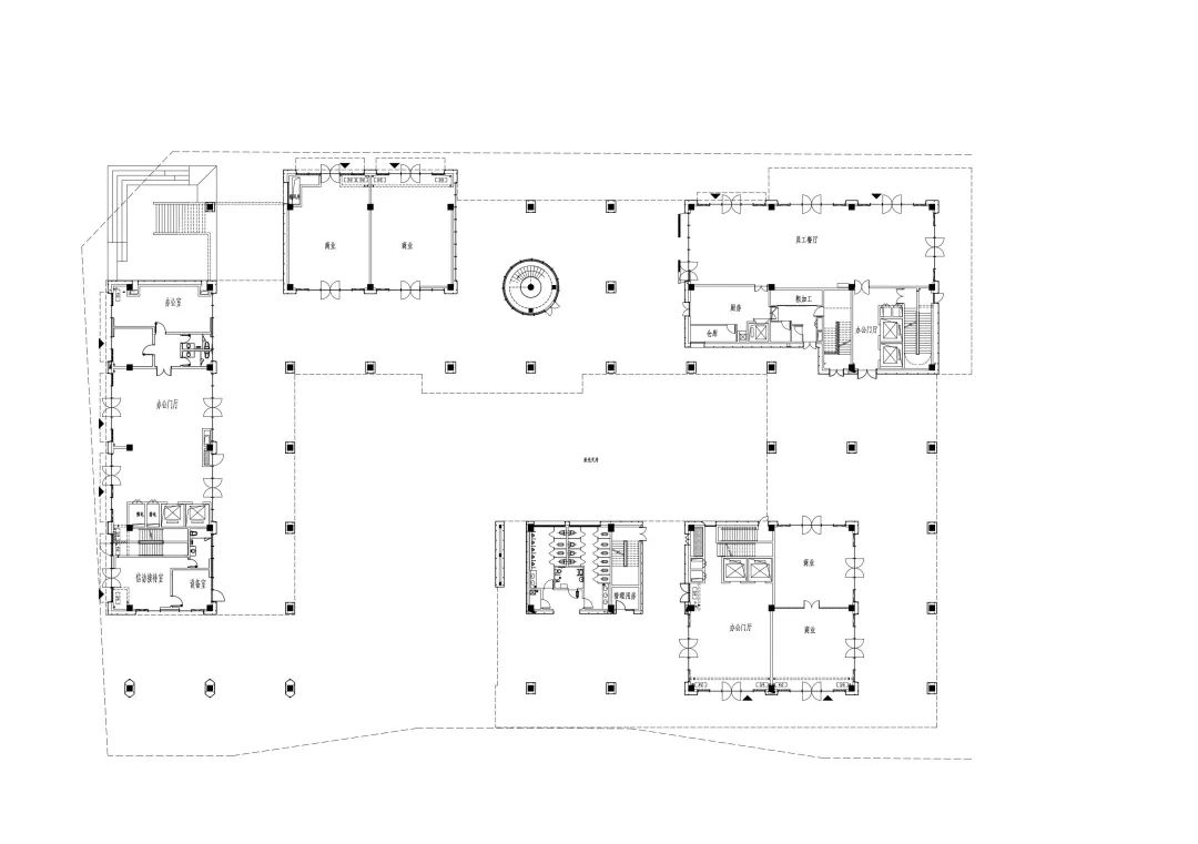
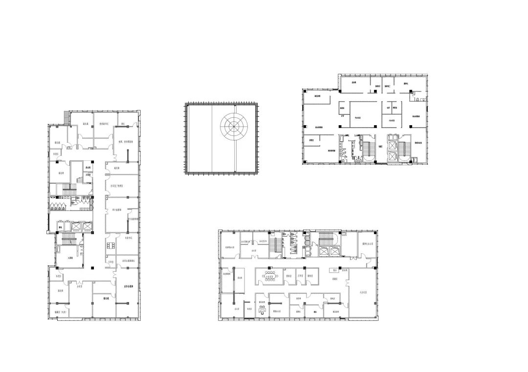
04

 技術圖紙 

26.jpg
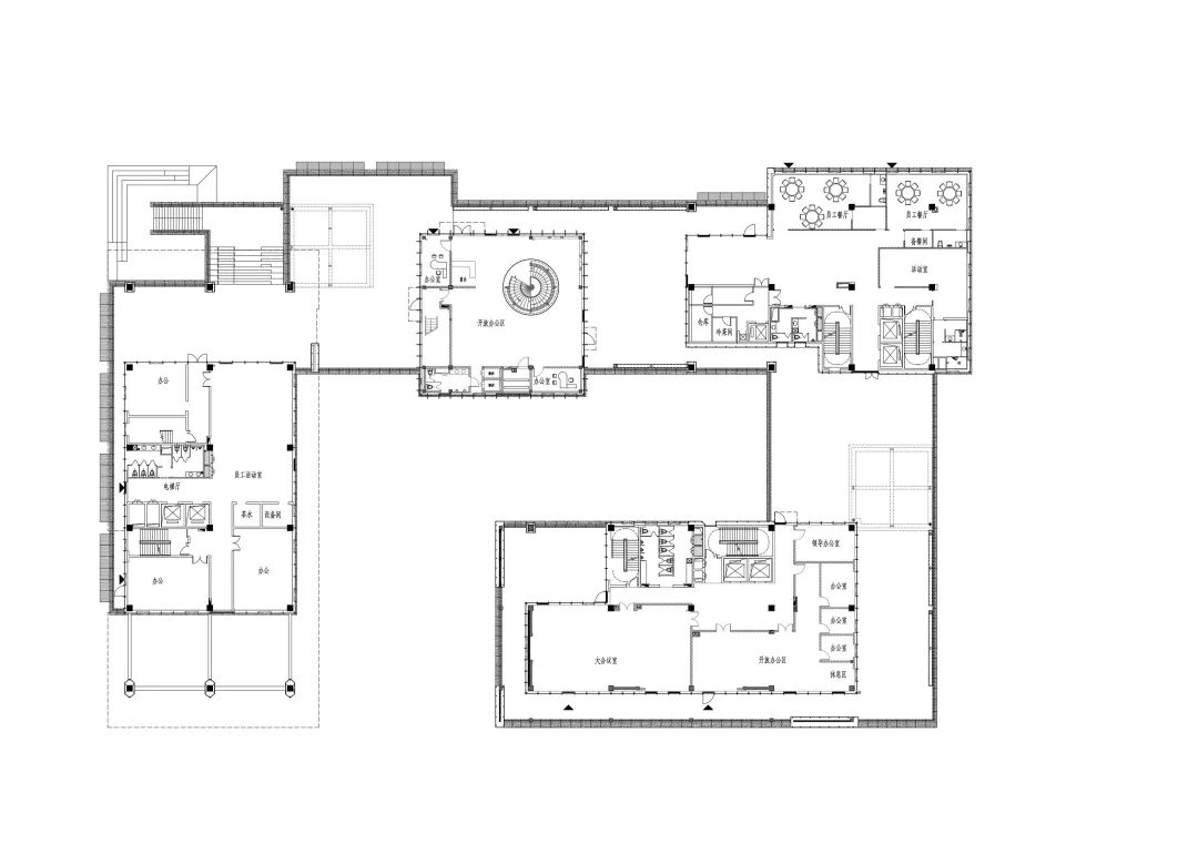
首層平面圖 ?上海興筑建筑設計

27.jpg二層平面圖 ?上海興筑建筑設計

28.jpg


三層平面圖 ?上海興筑建筑設計

29.jpg



四層平面圖 ?上海興筑建筑設計

30.jpg



五層平面圖 ?上海興筑建筑設計

31.jpg立面圖 ?上海興筑建筑設計

32.jpg

剖面圖 ?上海興筑建筑設計

項目信息 PROJECT INFO

項目名稱:雪浪小鎮數據創新中心

建設地點:江蘇無錫

木結構建筑面積:5780㎡

竣工時間:2021年12月

開發單位:無錫新澤文商旅投資發展有限公司

設計單位:上海興筑建筑設計有限公司/上海交通大學建筑設計研究院

施工單位:江蘇蘇陽建設有限公司

技術支持:加拿大木業

攝影:金偉琦

攝影后期:UED新媒體

設計說明部分撰文 | 上海興筑建筑設計有限公司

編輯 | 李林松

來源:加拿大木業(微信號:canadawood)

服務熱線:028-87422267
聯系地址:成都市高新產業園區金周路595號4棟1101號
甘孜藏族自治州康定爐城鎮東方阿爾卑斯情歌風情小鎮二期3幢2單元ⅹ2-12-3號
人力資源部電話:羅經理:028-87422267
市場營銷電話:曾總 :13980750649

copyright ?2022 永忠工程管理(集團)有限公司 all rights reserved.   備案號:蜀ICP備16020373號-1

老炮子预测今晚三地 | 3d预测詹天佑最新 | 今晚上3d出奖结果 | 3d预测最准的专家预测 | 3d今晚开奖结果走势图 | 3d跨度振幅近100期走势 | 三d预测专家预测今天最新 今于海滨3d预测 | 今日3d专家推荐号码 | 今日3d开机号和试机号列表三十期 | 3d今天专家预测推荐号码 | 3d十大专家预测汇总 | 3d预测最新最准专家 | 3d定百位一个号多少钱 | 今日3d开机号和试机号关注码千禧 | 福家杀码王p3 | 3d直选走势图(专业版) | 福彩3D独胆今日走势最新 | 近300期3d和值走势图 | 3d各类和值最新谜字谜今天 | 3d今天预测最准确专家 | 3d字谜汇总大全总汇大全 | 福彩3D独胆独家走势 | 3d今晚最准专家推荐号 | 今天3d专家解太湖字谜汇总 | 财神爷三天计划独胆组合 | 3d推荐号今晚专家预测 | 3d今晚上专家推荐号 | 今晚精准一注3d | 3d彩宝贝字谜 | 一名将3d双胆预测 | 3预测,3d专家预测,最准确今天彩网 | 今日正版3d藏机图汇总 预测 | 3d预测最准专家预测 | 千禧p3试机号关注号金胆对应号 | 3d于海滨上的今天预测保真 | 3d试机号后专家预测汇总 | 牛彩网3d预测分析汇总大全 | 3d预测最准确专家 | 福彩3D独胆下期最新分析 | 小红人的计划三天计划独胆 | 3d今晚最新奖号 | 陈华3d今晚就赌一个胆 | 3d今天专家预测推荐号码 | 3d字谜太湖钓叟三字诀17500 | 3d走势图和值振幅 | 3d走势图和值振幅 | 今晚3d开奖号是多少 | 3d直选注 | 3d太湖字谜汇总今天 | 3d的开机号试机号奖号表 | 快8今晚最毒胆推荐 | 3d试机号历史出现情况天齐网 | 3d陈华今晚独胆推荐 | 3d今晚专家推荐预测重点号码 | 于海滨点评专家一语保真 | 3d最准的预测专家 | 今于海滨3d杀码图 | 3d最小值振幅走势图3d之家 | 3d预测今日最新推荐 | p3千禧试机号关注金码 | 3d今晚一注 | 3d今晚最准专家推荐号 | 3d最新最准专家预预测 | 于海滨3d预测免费每日精选 | 3d藏机图正版藏图汇总大全 | 3d毒胆| 于海滨海3d预测牛彩网 | 3d今天推荐号码是多少 | 3d单个冷号最大遗漏 | 天齐藏机图汇总正版藏机图 | 今日3d大老人预测号 | 今晚3d专家预测精选一注 | 詹天佑3d点评预测 | 今晚3d专家推荐号码 | 3d金胆王| 今于海滨最新预测今天 | 今天的3d推荐号码是多少 | 3d开机号和试机号今天金码关注号 | 三d预测最准十专家预测今晚 | 经典小胆王三天计划配组合 | 牛彩网3d专家预测汇总摘要 | 3d基本走势图 综合 太湖三字诀字谜三 | 3d太湖解字谜 | 今晚最准的一注3d | 3d开机号和试机号今天全部 | 3d预测专家最准确的专家预测 | 福家杀码王p3 | 3d最准确预测专家 | 中国福彩3D独胆最新推荐最新 | 3d开机号与试机号金码 | 3d今晚必中一注一 | 3d牛彩网100期开机号和试机号 | 3d十大专家杀一码汇总 | 3d今日预测最准专家预测 | 3d预测号码最准确专家预测 | 3d铁人包星定胆天齐网 | 3d专家预测最准最新今天 | 3d今晚开奖结果号码是 | 3d太湖钓叟字谜三字 | 3d晚间字谜汇总汇 | 3d专家最准确推荐最新 | 3d开奖号码今晚走势图 | 中国福彩3D独胆实时必中最新 | 3d预测最准的专家预测 | 3d千禧试机号开机号对应码关注号 | 3d预测最准最新准专家预测号码 | 3d杀码百位十位个位 | 3d最新专家预测汇总大全 | 于海滨海3d专家预测今晚一注 | 苦命人3d推荐一注 | 3d历史今天开奖结果 | 3d预测最准确的专家 | 3d今天推荐号码是多少 | 于海滨专家预测 | 3d开机号和试机号近100期列表 | 三天计划独胆牛人 | 3d预测专家最准确的专家预测 | 3d今晚专家推荐号 | 今日3d专家预测号最准确 | 今天3d必出一注 | 3d最准专家预测方法 | 3d百个差振幅走势图近100期 | 3d独胆预测必下一胆 | 今日3d专家精准推荐 | 3d专家预测最准确今天南方双彩网 | 3d开机号今天试机号查询 | 今晚3d直选推荐 | 真实的谎言3d字谜追加和值谜 | 3d直选综合走势图 | 3d今晚预测最新最准确号码牛彩网 | 福彩3D独胆下一期推荐 | 3d直选走势图(专业版) | 今晚3d专家推荐号码是多少 | 太湖字谜钓叟3d字谜 | 布衣3d独胆双胆王 | 小财神三天计划独胆必下 | 3d藏机图天齐正版藏机图 | 今天3d开机号试机号码 | 今天3d专家预测汇总 | 太湖试机号后一句定三码3d字谜 | 三d便民字谜图谜总汇 | 3d今晚最准专家预测号码 | 3d专家推荐最新预测 | 3d预测最准确的专家预测软件 | 今日3d马后炮解太湖字谜 | 3d今晚预测直选四注 | 牛彩3d专家预测 | 唐龙3d预测今日出号点评 | 3d今天开机号和试机号100期 | 大师诸葛亮今晚一个独胆 | 十拿九稳预测专家分析 | 3d专家推荐最精准的号码 | 3d今晚开奖结果走势图 | 铁人铁胆包星定位今天最新结果 | 于海滨一语定胆天齐网 | 孟庆会点评 专家一语定胆 稳准狠三天计划 | 陈华3d独胆推荐 | 3d专家预测最准确最新今天 | 3d牛哄哄解太湖字谜今天 | 3d专家预测最准今天 | 今天晚上的3d开奖结果 | 唐龙点评3d预测今天 | 今于海滨3d预测今天牛彩网 | 太湖钓叟排三字诀字谜 | 3d专家直选最精准一注 | 今天3d开机号 试机号是多少 | 福彩3D独胆实时杀号 | 3d和值和尾走势图带连线图表 | 3d最新最准专家预预测 | 3d直选历史遗漏查询 | 3d天宇和值谜字谜一句定三码 | 于海滨海3d专家预测今天 | 3d推荐号3d推荐号码 | 今日3d专家推荐号码 | 3d预测最新最准专家 | 千禧今晚3d试机号关注码金码对应 | 3d今晚必中一注一注 | 3d专家推荐最新预测 | 排五开奖最新结果排5 | 3d开奖号码近50期 | 投资计划3d乐彩论坛 | 排五预测专家预测 | 3d预测专家准确推荐 | 3d太湖专家预测今晚 | 唐龙3d预测今日出号点评 | 3d基本走势图全部 | 助赢计划软件官网版下载 | 3d今晚开机试机号 | 3d的预测号是多少 | 3d独胆双胆预测推荐 | 今日焰舞3d焰舞字谜汇总大全 | 3d詹天佑预测分析牛彩网 | 三天计划3d独胆论坛 | 3d杀码一定牛 | 3d预测一注推荐 | 3d邻孤传复隔中走势图 | 3d专家预测最准确今天上一期 | 3d免费专家预测推荐今天最新 | 3d最近基本走势图 | 福彩3D独胆团队必中最新 | 3d今晚一注推荐 | 今晚必中一注i | 2014年359期3d焰舞字谜 | 3d今天专家预测最准 | 3d推荐最新最准专家预测 | 3d中奖多少钱一注 | 3d独胆陈华今晚就赌一个胆 | 3d最新专家预测汇总大全 | 3d免费专家预测推荐今天最新 | 3d千禧试机号开机号金码 | 今天3d专家预测号码 推荐 | 千禧试机号及金码 | 于海滨3d预测 | 飞向阳光龙头凤尾今天最新消息 | 今天专家推荐号码3d | 3d和值和尾振幅走势图 | 3d今日预测最准专家预测 | 中国福彩3D独胆实时必中最新 | 3d走势图的基本走势图 | 今天十拿九稳号码预测 | 今日3d专家精准推荐 | 铁人铁胆定位包是预测 | 3d今晚专家预测最准确一注 | 3d精选号码推荐今天最新 | 3d预测最准的专家预测 | 今天3d精选一注 | 福彩3D独胆明日精准预测 | 3D独胆大神命中率最新 | 太湖字谜三字诀汇总 | 3D独胆独家推荐 | 最新3d预测专家预测 | 三d开机号和试机号今天牛彩网彩 | 太湖字谜三字诀汇总 | 3d预测专家最准最新 | 3d和值012走势图带连线图 | 3d开机号试机号奖号 | 3d专家预测最准确最新今晚预测号 | 3预测,3d专家预测,最准确今天彩网 | 中国彩吧更一懂彩民最新版本更新时 | 千禧试机号关注号金码是什么 | 3d最准一注号码 | 今晚3d开奖结果是多少 | 今晚3d预测开奖号码推荐 | 3d十大专家推荐号码汇总 | 3d最精准一注 | 3d字太湖叟字谜 | 3d最精准的专家预测 | 福彩3D独胆老师精准预测 | 福彩3D独胆团队分析最新 | 3d专家预测最准确今天 | 3d今日专家推荐号 | 3d预测专家最准确的专家预测 | 今天3d马后炮解太湖字谜汇总 | 3d藏机图正版藏机图 | 3d今天中了多少注直选 | 于海滨最新3d预测今天 | 太湖钓叟三字诀字谜更新 | 陈华3d今晚就赌一个胆 | 3d今晚最准专家预测号码145 | 排3太湖钓叟字谜三字诀 | 今日太湖钓叟三字诀字谜 | 中国福彩3D独胆老师分析最新 | 3d和值和尾振幅走势图 | 3d直选开奖结果 | 3d牛彩网| 排3太湖钓叟字谜三字诀 | 3d独胆是几 | 3d今晚上专家推荐号 | 千禧3d试机号金码今天关注码对应码 | 3d预测最准确专家预测牛彩网 | 小财神三天计划独胆必下 | 3d胆1拖9直选多少钱一注 | 3d今晚专家预测最准确号码 | 3d藏机图正版藏机图汇总今天最新图片 | 今日精准预测推荐3d号码 | 3d试机号今天开机号查询结果 | 3d预测专家最准确今天 | 3d就打一个胆中了多少钱 | 3d跨度遗漏值振幅走势图彩经网 | 今日3d藏机图正版藏机图310 | 3d于海滨上的今天预测 | 3d预测今晚最准专家预测号码 | 天府袍哥3d预测 | 今天专家推荐号码3d | 于海滨海3d专家预测今晚一注 | 詹天佑3d预测今天推荐号码 | 小龙一语定三胆3d今日字谜 | 今天的3d太湖字谜图 | 3d最准预测专家预测大 | 今天最新3d开机号试机号关注码 | 3d于海滨预测预测牛彩网 | 今天3d专家推荐重点号码 | 福彩3D独胆最新必中 | 今天的3d太湖字谜 | 陈华今晚就赌一胆今天最新 | 一名将3d双胆预测 | 3d于海滨上的今天预测 | 今天3d太湖钓叟三字诀字谜 | 3d彩吧图库手机牛彩网 | 3d必出规律胆 | 今晚3d开奖号试机号 | 3d预测最准确的专家预测软件 | 钱王点评钱王老头预测 | 3d最准专家预测号今晚3d试机号 | 3d专家预测最准确今天南方双彩网 | 3d双胆独胆必下一 | 3d开机号试机号奖号 | 今日3d太湖字谜三字诀试机号 | 于海滨海3d预测牛彩网 | 3d最新专家预测汇总大全 | 3d今晚的开奖号码 | 3d今晚和值字谜 | 3d走势图专家推荐号码 | 3d太湖字谜大全 太湖钓叟 | 铁娘子三天计划独胆必下300 | 3d跨度振幅3d之家走势图 | 福彩3D独胆本期推荐 | 今天晚上3d开奖结果 | 3d精选号码推荐今天最新 | 3d带线走势图连线走势图 | 3d杀码专家杀码 | 3d预测最准确的专家 | 3d独胆必下一个胆 | 3d今天专家推荐号码推荐 | 今天3d试机号和开机号 | 3d今晚精选一注 | 今天的3d开机号试机号 | 3d解太湖字谜汇总 | 3d专家预测最准确最新今天牛彩 | 3d预测专家最准最新 | 6+1专家预测号 | 3d牛彩网和值走势图 | 3D独胆内部精准预测 | 3d杀码大全 天齐网 于海滨3d最新预测 千禧3d试机号金码关注码对应码今晚 | 3d预测最准确专家 | 3d今晚开奖结果号码是 | 今晚3d试机号码和开机号 | 今天3d开机号和试机号牛彩网 | 3d开机号近30期列表彩宝网 | 3d今晚最新奖号 | 3d今晚最稳| 3d预测今晚最准专家预测号码 | 3d预测专家汇总预测 | 3d今天专家推荐号码推荐 | 3d和值基本走势图 | 真实的谎言3d字谜追加和值谜 | 千禧3d试机号关注码金码列表 | 3d二天独胆王| 最新3d预测专家预测 | 3d今天专家推荐号码推荐 | 3d最准杀码 | 3d最准确的专家预测 | 三d走势图基本走势图彩宝网 | 马后炮解3d太湖字谜总汇大全 | 小红人的三天计划今天是什么 | 今晚最全3d晚间字谜汇总192期 | 一定牛3d杀码 | 千禧3d试机号关注码金码列表 | 3D独胆实时必中最新 | 3d百个位和值尾走势图 | 3d专家预测推荐号码最准最新 | 3d百个位和值尾走势图 | 3d专家预测最准最新今天 | 3d牛哄哄解太湖字谜今天 | 3d最小差值振幅走势图 | 3d走势图带试机号彩宝网 | 3d组三一注多少钱 | 福彩3D独胆下期预测 | 3d开奖号码今晚走势图 | 今日3d专家预测号最准确 | 3d今晚开奖号结果 | 今晚3d开奖号走势图 | 3d今日专家推荐 | 3d今晚必中一注一注 | 今日3d预测专家推荐 | 3d玩彩老头预测今天号码 | 太湖解太湖3d字谜 | 3d独胆专家推荐独胆 | 3d推荐号今晚专家预测 | 千禧试机号关注号金码是什么 | 3d今晚专家预测最准确一注 | 3d钓叟字谜三字诀官网 | 3d专家预测号码推荐今天 | 3d陈华今晚独胆推荐 | 今于海滨3d预测今天牛彩网 | 三地千禧开机号试机号金码关注 | 牛彩网3d预测汇总大全 | 于海滨一语定胆保真 | 3d开机号和试机号今天金码关注号 | 3d杀码百位十位个位 | 詹天佑最新预测3d | 自创3d绝杀四码方法细节 | 今日3d预测 | 【福星】3d单挑10注组 | 解3d太湖钓叟字谜汇总 | 3D独胆独家杀号 | 3d千禧金码试机号关注码 | 3d专家预测最准确最新新闻 | 3d试机号后专家预测汇总手机网 | 专家3d专家推荐 | 今晚3d结果 | 3d千禧金码试机号关注码开奖号 | 3d千禧试机号开机号对应码关注号 | 三d预测专家最新推荐 | 3d今晚开奖结果走势图 | 3D独胆今晚命中率最新 | 今日期3d太湖字谜 | 3d今晚预测最新最准确号码牛彩网 | 3d北斗专家北斗预测今天079期3d | 神仙姐姐今晚杀码 | 于海滨海3d预测牛彩网 | 3d独胆王独胆预测 | 3d字谜财神一语定一注 | 3d独胆10中10| 今天最新3d开机号试机号关注码 | 于海滨最新3d预测推荐今天 | 今天3d专家推荐重点号码 | 3d推荐最新最准专家预测 | 3d专家预测最准确最新推荐号码 | 今晚3d专家最精准的预测 | 今天3d试机号开机号牛彩网 | 3d最全晚间字谜汇总大全 | 小薇3d预测 | 今天3d推荐号码今晚预测 | 3d谜语太湖钓叟3d谜语今天 | 3d独胆双胆专家预测网 | 三d预测最准十专家预测今晚 | 3d专家预测最准确最新今晚预测号 | 3d连线走势图表图 | 3d预测汇总牛彩网 | 3d今天专家预测最准确 | 3d今天专家预测号码 | 3d直选走势图(专业版) | 3d彩报图今天的第五版 | 财神爷独胆三天计划,就这么牛 | 杀码大全汇总 | 陈华今晚独胆特别关注 | 今天3d开机号试机号牛彩网 | 3d今晚预测直选一注 | 3d试机号和开机号牛彩网 | 于海滨最新3d预测推荐今天 | 3d今天专家预测最准 | 今天3d牛彩网专家预测 | 3d专家今天推荐号码推荐 | 3d晚间字谜总汇大全 | 3d最新预测专家推荐 | 3d今天千禧试机号关注号金码 | 今天3d字谜3d一句定三码3d和值谜 | 今天3d的开机号和试机号是多少号 | 3D独胆内部精准预测 | 3d直选三注| 独胆三天计划 | 中国福彩3D独胆专家精准预测 | 3d最新专家预测推荐 | 牛彩网3d预测汇总大全 | 千禧3d试机号关注号 | 今于海滨3d杀码图 | 中国福彩3D独胆内部杀号 | 顶级胆神双胆必下 | 3d双胆下一 | 15选5预测最准十专家预测 | 3d今日预测最准专家预测 | 于海滨3d最新预测 | 神龙毒胆王今晚给胆 | 3d预测专家推荐最新 | 福彩3D独胆高手分析 | 3d预测詹天佑最新 | 千禧之年3d开机号试机号金码关注 | 3d百个位和值尾走势图 | 3d独胆专家预测 | 3d个位振幅走势图近50期 | 3d今天专家预测推荐号码 | 3d任意两码差值尾走势图 | 今日精准预测推荐3d号码 | 3d最准预测专家推荐 | 3d专家预测最新 | 3d最准确预测专家 | 福彩3D独胆大神精准预测最新 | 于海滨海3d专家预测 | 3d今日预测最准专家预测 | 3d双胆大师今天 | 3d开机号试机号关注号金码对应码 | 3d天宇和值谜字谜一句定三码 | 预测3d今晚开奖号 | 北斗3d今日专家预测推荐 | 3d独胆专家预测 | 3d今天专家预测号码 | 3d预测最准确的专家预测软件 | 福彩3D独胆团队必中 | 牛彩网3d预测汇总大全手机版下载 | 3d专家推荐精选号码 | 3d近30期开机号试机号开奖号查询 | 今晚3d必出号 | 3d今天开机号试机号100期 | 3d预测汇总牛彩网 | 排五开机号试机号今天查询 | 3d马前屁解太湖字谜 | 3d百个位和值尾走势图 | 3d十大专家精准预测汇总 | 3d今晚最准专家推荐号码 | 3d专家预测号码最准确 | 3d今晚推荐一注 | 于海滨最新3d预测今天 | 福彩3D独胆大神必中最新 | 中国福彩3D独胆当天走势最新 | 今晚3d天宇一句定三码字谜 | 3d开机号和试机号近100期 | 3d詹天佑3d预测 | 福彩3D独胆今晚走势最新 | 中国福彩3D独胆大神命中率 | 近100期3d开机号和试机号 | 三d今日太湖字谜解 | 于海滨3d彩吧图库 | 3d今晚最准一注 | 3d十大专家汇总精选一注 | 专家推荐最热一注是什么 | 最准3d专家预测推荐 | 3d独胆必下一独胆准 | 3d独胆王正版 | 于海滨海3d专家预测 | 3d千禧试机号关注号金码号开机号 | 3d专家预测汇总牛彩网 | 3d基本走势图表 | 3d今晚预测准确的专家预测 | 今天的3d开机号和试机号查询 | 3d开机号今天近100期南方查询 | 3d最新专家预测汇总大全 | 3d大富好预测汇总 | 福彩3D独胆最新必中 | 于海滨3d专家预测今天 | 3d今晚预测直选四注 | 中国福彩3D独胆最新走势 | 今天3d开机号和试机号全部 | 3d最晚间字谜汇总大全 | 3d独胆公式133x2| 于海滨海3d专家预测今晚一注 | 3d专家最新最准预测 | 齐彩网3d专家预测 | 中国福彩3D独胆专家精准预测最新 | 独胆王三天计划 | 今日3d字谜3d一句定三码诗天中图 | 3d今晚专家推荐预测重点号码 | 3d推荐最新最准专家预测 | 3d万能四码走势图表 | 詹天佑3d最新预测今天 | 3d字字谜图谜总汇 | 于海滨今天杀码 | 3d谜语解太湖字谜 | 3d火火人独胆双胆必中 | 今天3d开机号和试机号多少 | 3d牛彩网. | 于海滨3d预测今天 | 3d专家最新最准预测 | 家彩专门提供3d试机号开机号 | 中国福彩3D独胆今日精准预测 | 于海滨最新3d预测今天 | 3d双胆大师 | 牛彩网3d预测分析汇总大全 | 3d预测最准专家预测号码 | 财神一语定一注3d字谜 | 3d成功路上人双胆独胆 | 牛彩网3d预测汇总大全手机版下载 | 3d于海滨专家预测 | 今日焰舞3d焰舞字谜汇总大全 | 今天最新3d开机号试机号 | 今晚3d开奖直选结果 | 千禧3d今天的试机号 | 福彩3D独胆明日分析 | 牛彩网p3专家预测汇总 | 3d推荐号今晚专家预测 | 3d一语定胆太湖字谜 | 3d今晚最准专家预测号码145 | 3d今晚必中一注 | 3d双胆独胆非常非常 | 3d最新专家预测推荐 | 今天p3藏机图正版藏机图 | 3d字谜汇总大全总汇大全 | 3d预测最准确的专家预测软件 | 3d独胆是几 | 3d精准预测最准的专家 | 今天3d专家解太湖字谜汇总 | 3d专家预测最准确今天 | 3d中间最小两码差值振幅走势图 | 今日正版藏机图全部汇总239期 | 三码合一是什么意思? | 3d万能三码天天中奖技巧 | 3d今晚专家预测最准确一注 | 十拿九稳预测专家分析 | 3d预测专家最准最新 | 3d今天专家预测号码最准确 | 3d今日专家推荐号 | 3d直选一注50倍单挑 | 3d试机号近10期(模拟) | 今天太湖钓叟3d字谜三字诀 | 3d今晚专家推荐 | 福彩3D独胆最新必中最新 | 3d和值谜汇总大全 | 3d今晚最稳一注 | 3d今日开机号和试机号及关注码 | 3d今晚最准最新专家推荐号 | 3d千禧金码试机号关注码开奖号 | 今天3d开机号试机号牛彩列表 | 3d直选注| 3d今晚上专家推荐号 | 3d试机号今天开机号查询 | 3d试机号开机号今天晚上金码号 | 3d今天走势图表 | 毒胆牛人三天计划必出 | 千禧开机号试机号关注号金码杀码 | 3d最准专家预测方法 | 3d天宇和值谜字谜一句定三码 | 3d预测号码最准最新准专家预测号 | 3d最准专家预测号今晚3d试机号 | 一定牛3d一注号推荐3d预测今天 | 3d专家推荐最新预测 | 3d字字谜图谜总汇 | 福彩3D独胆下期分析 | 太湖钓叟三字诀字谜解释总汇 | 3d精准定位专家预测 | 3d最准确最新专家预测 | 专家彩宝贝预测汇总 | 3预测,3d专家预测,最准确今天彩网 | 于海滨海3d杀码图 | 3d专家预测最准确最新今晚预测 | 牛彩网3d预测汇总大全手机版下载 | 三天计划3d独胆必出论坛 | 3d基本走势图 综合 太湖三字诀字谜三 | 3d杀码大全 天齐网 于海滨3d最新预测 千禧3d试机号金码关注码对应码今晚 | 于海滨3d预测号 | 3d牛彩网专家预测 | 3d今晚最新预测 | 3d预测最准最新牛彩网 | 乾坤三天计划独胆预测 | 3d开机号试机号码牛彩网 | 3d藏机图正版藏机图打印版 | 今晚3d专家最精准的预测 | 3d个位走势图表 | 北斗3d今日专家预测推荐 | 今于海滨最新预测今天 | 3d最精准专家预测汇总今天 | 3d最准确预测专家 | 3D独胆下一期杀号 | 3d今晚开机试机号 | 3d今天推荐号码是多少 | 周星星3d预测手机牛彩网 | 3d今日牛彩网 | 3d推荐最新最准专家预测 | 3d太湖字太湖字谜今天 | 中国彩吧更一懂彩民最新版本更新时 | 3d近500期试机号和开奖号码 | 于海滨专家3d今天预测 | 千禧3d试机号关注码金码试机号 | 3d预测号码最准最新推荐 | 于海滨海3d最新预测 | 3d开机号试机号30期列表走势图 | 3D独胆老师命中率 | 3d最精准的专家预测 | 今天3d专家推荐号 | 3d预测最精准预测 | 3d今天开机号和试机号牛彩网 | 3d专家预测推荐最新 | 3d之家独胆,双胆 | 3d开心毒胆独胆王 | 今晚3d必出号 | 3d今天预测最准确专家 | 3d太湖专家预测今晚 | 今日3d正版藏机图 | 今天3d专家推荐号 | 超级毒胆 | 3d今于海滨杀码图 | 一定牛3d杀码 | 今天3d专家预测号码 推荐 | 3d字谜图总汇 | 十拿九稳预测专家分析 | 3d胆预测天齐网 | 于海滨的今日预测 | 3d专家最新最准今天预测 | 今天3d专家推荐重点号 | 福彩3D独胆明日精准预测 | 3d今天最新最准专家预测最 | 3d专家今天推荐号 | 詹天佑3d今晚预测号码 | 3d最准专家预测号 | 3d彩吧图库手机牛彩网 | 今天十拿九稳号码预测 | 詹天佑3d今天预测分析 | 马后炮解今日太湖字谜三字诀 | 陈华今晚就赌一个胆预测 | 3d专家推荐预测号 | 3d开机号和试机号今天金码0 | 今晚3d精准一注直选 | 于海滨3d预测免费每日精选 | 最准3d专家预测推荐 | 3d预测最准专家预测号码 | 3d十大专家双胆预测汇总 | 3d今日正版藏机图最新更新内容 | 今天最新3d开机号试机号 | 3d通辽独胆王今天 | 3d开机号和试机号金码关注 | 3d今天预测汇总 | 3d最大值振幅走势图彩经 | 3d平均值走势图振幅3d之家 | 3d最准预测号| 3d徐文轩今晚推荐号码 | 牛彩3d专家预测 | 3d今天专家预测推荐号码 | 3d专家预测最新最准推荐 | 独胆王三天计划 | 3d藏机诗藏机图天中图库 | 神仙姐姐三胆 | 三d今日预测 | 太湖马后炮3d钓叟字谜 | 今天三d专家推荐号码 | 3d今天开机号和试机号232 | 天才三天独胆计划 | 全民胆王3d独胆一个 | 3d开机号和试机号今天 今晚 | 3d今天开机号和试机号金码对应码 | 3d字谜图谜总汇 | 3D独胆老师预测 | 3d开机号和试机号码牛彩网 | 3d千禧开机号和试机号码 | 3d今天最准专家预测 | 牛彩网3d专家预测汇总 | 3d最准确最新专家预测 | 中国福彩3D独胆下期推荐杀号最新 | 3d开奖号码今晚走势图 | 3d今日热销号 | 3d推荐号今日预测 | 三d十拿九稳预测号码 | 3d独胆双胆3d之家 | 今天3d的开机号和试机号是多少号 | 3d小红人三天计划 | 福彩3D独胆老师走势最新 | 布衣杀码图3d杀码 | 3d独胆10 10 | 3d最准确专家预测 | 3d北斗专家北斗预测今天079期3d | 今天彩报中心 3d图库 | 3d专家预测最准确最新今天牛彩 | 3D独胆本期推荐最新 | 今天3d推荐号码今晚预测 | 3d成功路上人双胆独胆 | 3d今晚上专家推荐号 | 3d今晚开奖号结果 | 于海滨最新3d预测今天 | 今于海滨3d杀码图 | 3d最准确的预测方法 | 3d今晚专家预测推荐 | 千禧3d试机号金码关注码对应码今晚 | 预测今晚3d一注 | 詹天佑推荐3d | 3d今天专家推荐 | 千禧试机号金码关注号对应码杀码 | 今于海滨3d预测彩吧图 | 3d预测最准确的专家 | 3d独胆之家 | 3d双胆,独胆非常非常稳定 | 唐龙点评3d预测今天 | 3d开奖号码今晚走势图 | 3d定位独胆王三个双飞 | 龙彩居士3d预测今天最新版 | 3d预测专家最准确的专家预测今晚 | 3d预测一注推荐 | 今天3d推荐号码今晚预测 | 三地千禧关注码试机号 | 3d今晚专家预测最准确一注 | 今天3d专家推荐号 | 福彩3D独胆下期推荐精准预测 | 3d今晚字谜太湖字谜是什么 | 3d北斗专家北斗预测今天079期3d | 3d专家预测汇总牛彩网 | 3d绝杀一码专家 | 3d开机号和试机号码牛彩网 | 精准3d独胆 | 千禧3d试机号金码关注码今天 | 3d于海滨预测 | 3d开机号和试机号金码关注 | 詹天佑3d最新消息今天 | 3d预测专家最准确的专家预测今晚 | 3d专家推荐号码 | 3d预测最准确专家 | 3d今晚专家预测推荐号 | 龙彩居士3d预测今天最新版 | 于海滨点评专家一语定胆保真版 | 今天的3d开机号和试机号查询 | 3d推荐号今晚专家预测 | 3d专家预测推荐号最新 | 千禧3d今天的试机号 | 三d开机号和试机号今天牛彩网彩 | 3d今天专家预测最准 | 今天的3d藏机图正版藏图 | 3d基本走势图 综合 太湖三字诀字谜三 | 今天3d开机号和试机号对应金码 | 3d今晚上专家推荐号 | 西施姐姐就赌一个独胆 | 3d独胆双胆专家预测网 | 3d专家预测最准今天 | 3d预测专家最准确的专家预测今晚 | 3d布衣独胆双胆必下一 | 今日3d藏机图正版藏机图310 | 3d专家今天推荐号 | 于海滨今日3d预测 | 3d今天开机号和试机号是多少 | 牛彩网3d专家预测汇总 | 排五开奖最新结果排5 | 3d开机号和试机号今天多少 | 北斗3d今日专家预测推荐 | 3d专家预测推荐号最新 | 3d最新最准专家预测号码 | 3d今天专家推荐号码 | 三d独胆王独胆双胆 | 一定牛3d一注号推荐3d预测今天 | 太湖字谜三字诀论坛 | 3d今天最新最准专家预测最 | 3d预测专家汇总预测 | 3d今天专家预测推荐号码 | 今天3d字谜3d一句定三码3d和值谜 | 近30期3d开机号 | 专家预测3d号码准确 | 三d预测最准十专家预测今晚 | 3d今晚最准专家预测号码145 | 神仙姐姐三胆 | 投资独胆三天计划论坛 | 今天3d推荐号码今晚预测 | 3d必中永久直选500注大底 | 3d藏机图正版藏机图 | 于海滨今日杀码图最新 | 中国福彩3D独胆当天预测最新 | 3d独胆一个 | 3d开机号试机号今天开奖号 | 顶级胆神双胆下一 | 牛彩网3d专家预测汇总 | 3d开机号和试机号今天千禧 | 故事小王p3双胆必下 | 牛人独胆三天计划 | 3d专家今日推荐号码 | 3d试机号历史出现情况天齐网 | 3d今晚和值推荐 | 3d丹东太湖字谜今天的 | 3d试机号今天开机号查询结果 | 3d预测最新最准3d之家 | 3d詹天佑预测分析牛彩网 | 于海滨海3d预测牛彩网 | 机选一注3d | 马到成功杀两码最新版本更新内容 | 3d直选三注必中免费 | 3d专家推荐号码 | 廊坊鸿运3d最新预测 | 今天3d专家预测汇总 | 3d独胆专家推荐独胆 | 北斗3d今日专家预测推荐 | 3d试机号今天晚上金码92期 | 3d太湖钓叟字谜三字 | 3d今晚最准专家预测号码 | 3d最精准独胆王 | 3d预测最准专家预测号码 | 3d预测专家汇总预测 | 3d八哥图库总汇d字谜图谜总汇大全 | 千禧3d试机号金码关注码对应码 | 铁人铁胆包星定位今天最新结果 | 3d最精准的专家预测精选 | 3d藏机图正版藏机图汇总今天最新 | 3d北斗专家北斗预测今天079期3d | 3d最精准的专家预测 | 三天计划独胆牛人 | 《天才计划》三天计划独胆3d | 于海滨3d今晚预测号码 | 福彩3D独胆下期杀号最新 | 今晚开奖号码3d开奖结果 | 3d开奖结果近10期 | 3d推荐号今晚专家预测 | 今天的3d开机号和试机号查询 | 詹天佑3d今天预测分析 | 3d字谜汇总大全总汇大全 | 3d专家预测最准最新今天 | 3d往年历史今天开奖结果 | 3d今天开机号试机号牛彩网 | 铁人铁胆3d定位包星预测 | 3d詹天佑3d预测 | 小龙一语定三胆3d今日字谜 | 3d十大专家推荐号码汇总 | 3d今天专家预测号码 | 今天最新3d开机号试机号关注码 | 3d杀码大全天齐网 | 3d精准推荐号 | 牛彩网近30期3d开机号试机号 | 3d小鱼图今日背面字谜 | 3d彩报图今天的第五版 | 中国福彩3D独胆最新走势 | 3d今晚预测精准 | 于海滨点评加专家一语 | 于海滨一语定胆天齐网 | 3d小龙一句定三码今日字谜天中图 | 开心笨小孩3d独胆 | 今天3d专家推荐重点号码 | 于海滨3d预测免费 | 3d今晚专家预测最准确一注 | 3d之家独胆,双胆 | 3d正版太湖字谜图谜 | 今晚最准一注3d | 福彩3D独胆明日分析最新 | 今晚3d预测推荐一注 | 今日3d太湖三字谜 | 3d专家预测最准确今天南方双彩网 | 3d今晚开奖结果号码是 | 今晚三d推荐什么号码 | 3d百位遗漏振幅走势图南方双彩网 | 3d今晚精准推荐一注 | 太湖字谜3d和值谜 | 3d最精准的专家预测精选 | 今天3d专家预测号码 推荐 | 3D独胆团队命中率最新 | 3d今晚最准的一注 | 3d各类和值谜追加汇总 | 3d独胆王正版 | 今于海滨3d预测今天 | 3d最新专家预测汇总大全 | 3d今晚最准三注 | 3d预测总汇| 3d最准一个独胆毒胆 | 千禧试机号关注金码是什么 | 3d今天开机号和试机号多少 | 3d预测专家最准确的专家预测今晚 | 3d今天最新最准专家预测最 | 三d推荐号专家预测今天 | 3d今晚上专家推荐号 | 3d今晚专家预测最准确一注 | 3d二天独胆王 | 今晚3d开机号试机号金码 | 3d今天试机号开机号关系 | 今日毒胆 | 3d试机号和开奖号走势图 | 万能6码走势图 | 3d真实的谎言字谜总汇正版 | 3d专家预测推荐汇总 | 中国福彩3D独胆下一期预测最新 | 三3d太湖字谜 | 唐龙预测一胆今天 | 于海滨3d专家预测 | 3d千禧试机号金码关注码对应码 | 3d预测专家精准推荐 | 3d晶晶必下一独胆今天 | 3d今天专家预测推荐号码 | 3d十大专家推荐号码汇总 | 太湖字谜钓叟3d字谜 | 3d预测推荐汇总牛彩网采摘收集 | 天齐网3d必中两胆今天 | 3d今天专家预测号码 | 3d最精准专家预测汇总今天 | 一定牛3d杀码| 詹天佑今日3d预测 | 一定牛3d杀码 | 3d太湖字谜每天更新 | 今于海滨3d杀码图24210 | 牛彩预测汇总3d最新 | 3d真实的谎言正版和值字谜 | 3d和值基本走势图新浪网 | 3d专家詹詹天佑最新推荐 | 3d专家预测最准确 | 钱王点评十钱王给胆下一期预测 | 3d今晚预测最准确一注 | 于海滨专家3d今天预测 | 今晚3d结果 | 于海滨点评专家一注定胆保真版162期 | 3d必中永久直选500注大底 | 3d预测最准最新准专家预测 | 3d最准预测专家预测大 | 3d计算机开机号夏天推荐 | 排三杀码专家 | 排三太湖钓叟字谜三字诀 | 3d下期预测最精准的一注号码 | 于海滨专家3d预测 | 3d试机号后专家预测推荐汇总 | 今晚精准一注3d | 3d预测专家预测 | 3d专家预测最准确最新今天牛彩 | 3d推荐最新最准专家预测 | 今日3d字谜3d一句定三码诗天中图 | 廊坊鸿运3d推荐今天 | 3d最准杀码| 福彩3D独胆下一期预测最新 | 小薇3d预测 | 今日3d直选 | 于海滨3d杀码预测 | 三d双胆独胆 | 经典小胆王三天计划配组合 | 3d单挑今天晚一注500倍 | 3d百位遗漏振幅走势图南方双彩网 | 3d买一个独胆中了得多少钱 | 3d今天开机号和试机号100期 | 千禧3d关注码 | 3d万能大底共250注直选 | 3d今天专家预测最准确 | 3d预测一注号推荐一3d预测一注今天 | 铁娘子三天计划独胆必下300 | 3d天宇和值谜字谜一句定三码 | 牛彩3d专家预测 | 今天3d詹天佑预测分析 | 3d千禧开号试机号关注金码对 | 3d预测专家最准确的专家预测 | 3d彩宝贝试机号今天最新 | 今日3d钱王点评 | 3d预测今晚最准专家预测号码 | 牛彩网预测专家3d | 福彩3D独胆独家走势 | 中国福彩3D独胆实时精准预测 | 3d字谜太湖解字谜 | 3d今天预测最准确专家 | 3d最新准专家预测 | 3d专家最新最准专家预测汇总 | 3d预测最准确的专家 | 3d推荐号今晚专家预测最准确 | 今天3d太湖钓叟三字诀字谜 | 3d专家预测最准确今天 | 3d专家预测最准确最新今晚预测 | 3d千禧试机号码金码关注码 | 今日排三太湖钓叟字谜三字诀 | 三字诀3d字谜 | 小红人的计划三天计划独胆 | 3d十个位差值振幅走势图3d之家 | 于海滨专家一语定胆十每日 | 小红人的计划三天计划独胆 | 3d专家免费预测 | 三d预测专家最新推荐 | 马到成功杀两码最新版本更新内容 | 于海滨点评专家一语保真 | 3d大富好预测汇总 | 今晚3d专家预测汇总 | 今于海滨3d预测今天牛彩网 | 3d免费预测 | 陈华今晚独胆特别关注 | 3d今晚预测精准 | 《金银胆神》金胆银胆3d最新一期开奖 | 今晚3d专家推荐重点号码 | 于海滨杀码今天最新版 | 3d独胆预测 | 钱王点评+钱王老头预测 | 3d最准预测号 | 三天计划独胆牛人 | 3d历史今天开奖结果 | 3d预测最准的专家 | 千禧3d今天的试机号 | 3d两胆精准预测 | 3d牛彩网字谜图谜总汇九 | 排三杀码专家 | 马后炮解3d太湖字谜总汇大全 | 牛彩网预测3d | 3d推荐号今晚专家预测 | 3d乾坤独胆王独胆 | 3d今日开机号和试机号及关注码 | 一代女王杀两胆 | 3d连线走势图表图 | 3d今天专家预测最准 | 3d太湖钓叟字谜三字 | 3d专家预测最新最准推荐 | 3d试机号后专家预测推荐汇总 | 北斗3d今日预测 | 3d杀码一定牛 | 3d今晚预测开奖号码 | 3d藏机图天齐正版藏机图 | 3d今晚最准最新专家推荐号 | 小红人的计划三天计划 | 福彩3D独胆下期推荐必中 | 3d免费精准直选三注 | 独胆王三天计划 | 3d专家预测最准确最新今天牛彩 | 3d专家詹詹天佑最新推荐 | 3d之家双胆独胆预测 | 龙彩居士3d预测今天最新版 | 3d上下五千年专家预测 | 3d买4个号直选多少钱 | 3d开机号试机号今天最新50期 | 近1000期3d开奖结果 | 3d今晚出什么号? | 3d走势图专家推荐号码 | 三d预测专家预测今天最新 今于海滨3d预测 | 3d必中永久直选500注大底 | 今天3d开机号和试机号对应金码 | 唐龙点评3d预测 | 3d今晚最准一注 | 3d今晚最准专家预测号码145 | 3d专家预测号码最准确 | 排三杀码专家 | 今晚于海滨海3d预测3d | 3d太湖字谜三字诀 | 3d专家预测最准确最新今天牛彩 | 3d预测 下一期 3d预测专家 3d预测 | 3d最精准专家预测汇总今天 | 3d计算机开机号夏天推荐 | 于海滨一语定胆《保真》 | 3d詹天佑预测分析牛彩网 | 今天3d专家预测号码 | 3d和值谜汇总大全 | 3d字太湖叟字谜 | 中国福彩3D独胆专家精准预测最新 | 3d近300期试机号和开奖号码 | 3d试机号开机号今天查询排五 | 3d预测最准确的专家 | 3d下期预测最精准的一注号码 | 3d预测最准确的专家 | 3d最小值振幅走势图3d之家 | 3d推荐号今晚专家预测最准确 | 无敌胆王独胆双胆 | 3d今天专家推荐号码推荐 | 三码合一是什么意思? | 3d开奖号码走势图表 | 3d邻孤传走势图乐彩 | 3d精选号码推荐今天最新 | 3d于海滨一语定胆《保真》 | 3d晚秋和值谜字谜图 | 福彩3D独胆最新命中率 | 今日3d太湖字谜三字诀 | 3d和值尾振幅走势图50期 | 3d专家直选最精准一注 | 今天3d开机号试机号牛彩列表 | 3d中间值振幅走势图之家 | 3d彩报图今天图库彩吧 | 3d专家预测汇总 | 3d开机号和试机号今天 今晚 | 3d最精准的专家预测精选 | 3d近30期开机号试机号开奖号查询 | 3d詹天佑预测分析牛彩网 | 3d专家预测最准确最新新闻 | 小红人的三天计划今天是什么 | 3d字谜今天太湖字谜 | 3d今天预测最准确专家 | 3d今天专家推荐号码 | 3d开机号今天近10期 | 3d精准预测最准的专家直选 | 下期必出号码预测 | 中国福彩3D独胆专家精准预测最新 | 3d专家预测最准确最新今天 | 3d开机号,试机号,金码号,对应码100 | 3d精准预测最准的专家 | 3d专家推荐最精准的号码 | 3d今晚最准专家预测号码145 | 今晚3d试机号千禧试机号金码关注 | 近1000期3d开奖结果 | 玩彩独胆王三天计划 | 3d今天专家推荐号码推荐 | 3d预测专家最准确 | 3d试机号历史情况 | 3d独胆必下一独胆 | 3d牛彩网专家预测汇总 | 3d专家解太湖字谜汇总 | 3d今天预测最准确专家 | 3d开机号和试机号近100期 | 三d预测最准十专家预测今晚 | 3d今晚最准最新专家推荐号 | 今天十拿九稳号码预测 | 解3d太湖钓叟字谜汇总 | 今天专家推荐号码3d | 今日排五专家推荐与预测 | 3d开机号试机号近100期开奖号码 | 今晚3d预测号 | 3d两胆王双胆必下 | 3d专家预测最准确 | 3d通杀一码准确率100% | 3d独胆双胆天齐网 | 3d近300期试机号和开奖号码 | 3d和值25点有哪几注 | 今晚3d开机号试机号金码关注码 | 排三专家杀码 | 3d十大专家汇总精选一注 | 马后炮解3d太湖钓叟字谜总汇大全 | 最准3d专家预测推荐 | 今晚3d精准一注直选 | 李明启3d预测最新号码 | 于海滨3d免费预测最新的 | 3d詹天佑最新预测牛彩网 | 于海滨专家3d今天预测 | 3d预测最准最新准专家预测号码 | 唐龙点评3d预测今天 | 3d今天最新最准专家预测最 | 3d双胆神算今天最新 | 千禧3d试机号金码今天关注码对应码 | 中国福彩3D独胆专家精准预测 | 3d推荐号码今晚预测 | 3d今晚和值字谜 | 福彩3D独胆下期走势最新 | 马后炮解3d太湖钓叟字谜总汇大全 | 十拿九稳今天预测专家 | 3d今天专家预测最新最准 | 3d太湖历史字谜 | 3d藏机图正版藏图汇总大全 | 3d今晚和值是多少 | 三d的试机号是多少今天 | 双胆王看双胆3d | 3d独胆必下一 | 3d千禧试机号关注号金码号开机号 | 北斗3d今日专家预测推荐 | 3d字谜今日字谜总汇 | 3d和尾振幅走势图3d专家 | 3d今晚专家预测推荐 | 3d今天专家预测号码最准确 | 布衣杀码图3d杀码 | 今天3d开机号和试机号 | 3d走势图基本走势图表 | 3d开机号试机号今天的 | 3d独胆必下一独胆 | 3d今晚最准专家预测号码 | 3d独胆王定位独胆定位 | 3d今晚上必出号推荐组 | 中国福彩3D独胆老师分析最新 | 3d今晚最稳 | 3d开机号试机号今天的 | 3d彩吧图库红五3d图库 | 3d藏机图正版藏机图汇总今天最新图片 | 3d今天开机号和试机号322 | 3d十大专家汇总精选一注 | 3d最准确预测100%一注 | 今天3d开机号,试机号是多少 | 3d预测 下一期 3d预测专家 3d预测 | 于海滨3d彩吧图库 | 3d最精准的专家预测精选 | 3d今天专家推荐号码 | 3d 今天 试机号开机号3 | 天才计划三天计划独胆 | 三字诀太湖三字诀字谜 | 3d和值尾振幅近100期走势图 | 3d今晚最精准一注一注 | 3d开机号和试机号是多少 | 3d杀码高手 | 3d今晚最准最新专家推荐号 | 今天3d定位字谜二 | 3d精准定位专家预测 | 今日3d字谜3d一句定三码诗天中图 | 今天3d的开机号和试机号是多少号 | 北斗3d今日专家预测推荐 | 3d今天专家推荐号码推荐 | 3d今天开机号和试机号牛彩网 | 3d杀码公式最新 | 3d之家独胆,双胆 | 3d今晚专家预测推荐 | 3d推荐号今晚专家预测 | 3d今晚试机号是多少查询 | 中国福彩3D独胆当天精准预测 | 3d今晚专家预测推荐 | 3地独胆,毒胆双胆家彩网 | 3d玩彩老头预测今天号码 | 神龙毒胆王今晚给胆 | 3D独胆老师预测 | 3d试机号开奖号走势图表 | 千禧开机号试机号关注号金码杀码 | 3d试机号今天开机号查询 | 3d开奖号码今晚走势图 | 3d选胆图近100期 | 今天3d开机号试机号码 | 试机号开机号金码关注号对应码3d | 3d今晚最准专家推荐号码 | 3d詹天佑预测分析牛彩网 | 3d千禧试机号码金码关注码 | 3d直选三注必中免费 | 3d近100期试机号和开奖号是多少 | 三d预测专家 | 千禧关注码试机号金码 | 于海滨3d今晚预测号码 | 3d今晚预测100%| 3d三天计划独胆王 | 【开心毒胆】今天 | 3d今晚中奖号是多少 | 唐龙3d预测今日出号点评 | 3d今天推荐号码是多少 | 3d预测詹天佑最新 | 3d直选100%中奖绝技 | 3d预测最准确专家预测 | 于海滨3d彩吧图库 | 3D独胆本期推荐 | 3d预测专家推荐号码推荐 | 3d最准确预测专家 | 3d丹东太湖字谜今天的 | 3d今天开机号试机号码查询 | 今晚3d预测推荐一注 | 3d推荐号今晚专家预测 | 3d预测最准的专家预测 | 3d精准一注今天 | 3d平均值走势图振幅3d之家 | 3d彩宝贝字谜| 3d今天专家推荐号码是多少 | 3d十位走势图振幅 | 今天3d精选一注 | 3d基本走势结果 | 千禧之年3d开机号试机号金码关注 | 万能三码的使用方法 | 3d预测号专家预测 | 3d今晚十大专家预测汇总 | 毒胆牛人三天计划 | 解太湖3d字谜太湖 | 3d杀码图谜 | 3d直选100%中奖绝技 | 小微3d预测牛彩网 | 三天计划独胆牛人 | 3d预测一注号推荐 | 3d今晚预测开奖号码 | 3D独胆专家分析 | 3d最晚间字谜汇总大全 | 今晚3d专家推荐重点号码 | 太湖3d字谜图谜总汇 | 今日3d专家精准推荐 | 3d今晚最准专家推荐号 | 3d开机号和试机号近100期 | 3d最准专家预测号 | 3d预测最准专家预测 | 3d字谜汇总大全总汇牛彩网开机号 | 三d五码复式打一注多少钱啊 | 3d预测专家最准确 | 3d独胆专家推荐独胆 | 于海滨3d预测今天 | 3d最准确预测专家 | 3d今晚开奖结果号码是 | 3d试机号后专家预测推荐汇总 | 3d今天开机号试机号对应码关注码 | 3d百十和尾振幅走势图走势 | 詹天佑3d今天最新预测 | 今晚3d预测最准一注 | 3d今晚最准专家推荐号码 | 六鬼神算图3d谜图 | 3d百个和值尾振幅走势图 | 3d十大专家精准预测汇总 | 3d今晚预测一注 | 3d专家今天预测汇总 | 今天3d开机号和试机号对应金码 | 3d北斗专家北斗预测今天079期3d | 于海滨点评专家一语定胆保真版 | 3d太湖字谜图谜总汇 | 3d最小值振幅走势图3d之家 | 3D独胆下一期杀号 | 今天3d专家预测汇总 | 3d开机号今天近100期南方查询 | 机选一注3d | 浙江风采3d走势图表 | 3d开机号和试机号今天千禧 | 3d最准确预测专家 | 3b千喜今天试机号关注金码 | 3d专家杀码天中图库 | 3d今晚最准专家预测号码 | 3d专家预测最准确最新今天牛彩 | 3d下期预测最准一注 | 近30期3d开机号和试机号 | 3d和值尾振幅走势图带连线图表 | 专家预测3d预测 | 3d开机号和试机号今天多少 | 3d六码复式多少钱一注 | 大师诸葛亮今晚一个独胆 | 于海滨专家一语定胆十好心人 | 3d直选100%中奖绝技 | 3d千禧今晚试机号码 | 3d今晚十大专家预测汇总 | 3d廊坊鸿运正版推荐 | 太湖解3d字谜汇总 | 今天3d专家预测号码 推荐 | 3D独胆大神走势 | 3d于海滨上的今天杀码 | 唐龙一胆今天最新 | 3d预测专家精准推荐 | 3d开机号和试机号码牛彩网 | 3d绝杀二码今天最新更新内容 | 太湖字谜三字诀论坛 | p3故事小王双胆下一今天 | 3d最精准专家预测汇总今天 | 今天3d开机号,试机号是多少 | 3d平均值走势图振幅3d之家 | 3d双胆神算今天最新 | 3d走势图专业版(带连线) | 3d十大专家推荐号码汇总 | 于海滨3d预测今天 | 55125预测汇总3d| 3d和值尾振幅走势图200期 | 今天3d开机号和试机号对应金码 | 3d今天专家推荐号码是多少 | 今日3d开奖号太湖字谜总汇 | 3d打一个独胆中了多少钱 | 中国福彩3D独胆最新必中 | 3d独胆专家推荐独胆 | 3d基本走势图(专业版)近200期 | 3d今日开机号和试机号及关注码 | 3d太湖字太湖字谜 | 3d钓叟字谜三字诀官网 | 3d预测号码最准确专家预测 | 3d专家预测推荐最新 | 3d专家预测推荐最新 | 3d组三一注多少钱 | 3d最准的预测专家 | 最准3d专家预测推荐 | 小薇3d预测今天推荐 | 3d专家预测最准确最新今晚预测 | 3d就打一个胆中了多少钱 | 无敌胆王独胆双胆 | 【开心毒胆】今天 | 3d今晚预测最新最准确号码牛彩网 | 今日3d太湖字谜每天更新 | 中国福彩3D独胆明日推荐最新 | 3d詹天佑| 今日3d预测专家推荐 | 3d今天最新最准专家预测最 | 于海滨海3d专家预测 | 3d今日专家推荐号 | 于海滨今日3d预测 | 3d今天精选五注 | 3d独胆必下一独胆3d独胆预测 | 3d千禧试机号金码关注码 | 3d预测总汇手机牛彩网 | 今天3d开机号 试机号是多少 | 中国福彩3D独胆今日预测最新 | 3d开奖结果今晚号码 | 千禧试机号金码今天的 | 牛人高手【3d精选】 | 3d真帝王杀码图 | 三d三胆 | 今天的3d开奖号是多少 | 3d最新最准预测号码 | 3D独胆本期命中率 | 3d万能大底共250注直选 | 3d十大专家精准预测汇总 | 3d试机号开机号今天查询排五 | 带头大哥3d预测今晚 | 3d和值遗漏值尾走势图 | 双胆王看双胆3d | 解今日太湖3d字谜 | 3d今晚出啥号 | 于海滨点评专家一注定胆保真版 | 今于海滨最新预测今天 | 今日3d预测 | 3d专家推荐号最准确的推号 | 今天3d开机号和试机号多少 | 3d廊坊鸿运| 3d预测专家最准确的专家预测今晚 | 3d正版藏机图总汇全图 | 福彩3D独胆独家命中率最新 | 今天3d试机号和开机号 | 3d今天专家推荐号码是多少 | 于海滨今天预测 | 中国福彩3D独胆最新必中最新 | 福彩3D独胆今日走势最新 | 今天3d专家推荐号 | 3d预测最准的专家预测 | 3d十大专家杀一码汇总 | 今日3d太湖字谜三字诀洞庭游侠 | 3d太湖字谜总汇大全 每天更新 | 今晚了3d开奖结果 | 3d胆预测天齐网 | 3d今天开机号和试机号金码对应码 | 今晚快乐八专家预测推荐号 | 3d就打一个胆中了多少钱 | 3d开机号试机号今天最新50期 | 3d预测专家推荐 | 3d2025322期太湖字谜 | 今晚3d专家推荐 | 排三专家杀码 | 3d预测一注号推荐今晚 | 3d今天走势图表 | 3d试机号后专家预测推荐汇总 | 牛彩网3d预测分析汇总大全 | 3d今晚专家预测推荐号 | 中国福彩3D独胆今日精准预测 | 财神一注3d | 3d今晚必中三个号码预测 | 3d双胆大师今天 | 3d预测专家最准确的专家预测今晚 | 今晚3d太湖字谜 | 3d预测最准专家预测 | 3d预测最准最新准专家预测号码 | 于海滨3d预测免费 | 3d推荐号今晚专家预测 | 3d预测最准专家预测牛彩网 | 3d预测最准最新准专家预测号码 | 神仙姐姐杀尾 | 今晚3d专家推荐号码 | 3d今日专家推荐号 | 3d专家预测最准最新 | 3d千禧开机号和试机号码 | 3d近100期试机号和开奖号是多少 | 牛彩网3d预测 | 3d开机号试机号今天最新50期 | 3d今日专家推荐号 | 3d精准预测推荐 | 3d开机号试机号奖号 | 今天3d试机号开机号是什么 | 3d专家预测最准牛彩网 | 稳准狠三天计划 | 3d开心毒胆独胆王 | 3d专家预测最准确今天南方双彩网 | 3预测,3d专家预测,最准确今天彩网 | 今天龙头凤尾预测 | 詹天佑最新预测3d | 今晚3d专家推荐重点号码 | 北斗3d今日专家预测推荐 | 专家3d预测汇总 | 于海滨海独胆预测 | 今日詹天佑3d预测分析 | 今天3d专家预测号码 推荐 | 3d跨度振幅近100期走势 | 飞向阳光龙头凤尾今天最新消息 | 3d组三一注多少钱 | 3d胆王双胆独胆 | 3d基本走势图表新浪网 | 今晚3d推荐号 | 千禧3d试机号关注号 | 今天3d字谜3d一句定三码3d和值谜 | 今天的3d开机号和试机号查询 | 3d今天最新最准专家预测最 | 牛彩网近30期3d开机号试机号 | 今晚3d精准一注直选 | 3D独胆今晚命中率最新 | 3d和值振幅走势图彩宝贝 | 3d财神爷独胆双胆双飞计划三天 | 3d近50期开奖号码 | 今天3d金码试机号对应码开机号 | 3d专家今天推荐号 | 彩宝3d专业走势图 | 3d专家预测号 | 太湖叟3d字谜湖字谜 | 3d专家预测今天最新准确号 | 3d推荐最新最准专家预测 | 3d今晚专家预测重点号码 | 今晚最准一注3d | 3d老炮子直选三注 | 彩界毒胆大师一枚毒胆 | 最准的3d专家预测 | 千禧3d试机号金码关注码对应码 | 3d独胆预测| 3d杀码大全 天齐网 于海滨3d最新预测 千禧3d试机号金码关注码对应码今晚 | 3d专家推荐号最准确的推号 | 3d专家最准确推荐最新 | 3d专家预测最准确今天 | 老炮子预测今晚三地 | 3d最准确专家预测 | 3d怎么守号不亏 | 今日3d太湖字谜三字诀 | 3d今天推荐号码是多少 | 3d杀码图谜_专区杀码 | 今晚3d专家预测汇总 | 3d百位遗漏振幅走势图南方双彩网 | 最准杀码王p3 | 3d直选走势图(专业版) | 于海滨点评专家一语定胆保真版 | 3d万能大底共250注直选 | 今晚3d一注直选 | 今日钱王给胆点评 | 三地千禧关注码试机号 | 3d财神爷今晚独胆 | 3d栋栋预测牛彩网 | 3d直选注| 3d开机号和试机号金码关注对应码 | 3d今晚最准专家推荐号 | 3d于海滨预测预测牛彩网 | 3d今晚最准专家推荐号码 | 专家预测3d号码准确 | 今日3d钱王点评 | 高手看3d经典独胆组合 | 今天3d开机号和试机号金码 | 财神一语定一注3d字谜 | 三d专家杀码 | 3d专家预测最准确今天南方双彩网 | 3d预测最精准一注 | 财神一语定一注3d字谜 | 福彩3D独胆下期推荐必中 | 3d今晚专家预测最准确一注 | 千禧开机号和试机号对应金码 | 3d专家预测推荐号码 | 3d专家预测最准确今天南方双彩网 | 三d预测专家最新推荐 | 3d千禧试机号关注码金码今天晚 | 今日3d推荐号码号 | 试机号开机号金码关注号对应码3d | 今天三d专家推荐号码 | 白骨精3d独胆图今天 | 毒胆牛人三天计划今天 | 3d今晚专家预测推荐 | 3d今晚最准专家推荐号码 | 今日3d太湖字谜三字诀试机号 | 3d今天开机号和试机号100期 | 3d开奖结果今晚号码 | 3d最晚间字谜汇总大全 | 3d专家预测最准确最新今天牛彩 | 3d至尊独胆 | 3d今晚必出的一注 | 张克永专家3d预测 | 3d形态预测静态版 | 3d今天专家推荐号码 | 3d直选综合走势图表 | 于海滨3d今晚预测 | 骄子铁鹰解3d字谜今日 | 于海滨今天杀码3d | 3d预测今晚最准专家预测号码 | 专家预测3d号码准确 | 今晚最准一注3d | 3d万能三码共有几注 | 3d预测专家推荐最新 | 3d太湖专家预测今晚 | 3d专家预测号码推荐今天 | 3d百个位和值尾走势图 | 3d最准的独胆毒胆独胆 | 3d今晚开奖结果走势图 | 3d于海滨上的今天预测保真 | 三d预测专家预测今天最新 今于海滨3d预测 | 唐龙一语定胆最新 | 3d专家预测最准确最新今天 | 最准3d预测专家推荐号 | 近1000期3d开奖结果 | 3D独胆明日分析 | 3d解太湖字谜汇总精选 | 3d专家预测最准今天 | 3d今晚精选预测一注 | 太湖试机号后一句定三码3d字谜 | 财神一语定一注3d字谜 | 3d专家预测最准确今天南方双彩网 | 于海滨3d专家预测 | 3d最新准专家预测 | 3d今天试机号开机号金码 | 3d专家预测最准双胆 | 3d近30期开机号试机号牛彩网 | 3d专家预测号 | 今天3d开机号试机号牛彩列表 | 3d长中剑客预测今天 | 今日3d开奖号太湖字谜总汇 | 3d武当玉女掌门一句定三码字谜 | 齐彩网3d专家预测 | 3d专家号| 3d太湖钓叟字谜三字诀乐彩论坛 | 3d直选开奖结果 | 今天最新3d开机号试机号关注码 | 3d双胆预测3d双胆下3d 双胆推荐 | 今天太湖字谜3d字谜太湖钓叟 | 3d预测今晚最准专家预测号码 | 福彩3D独胆老师走势最新 | 3d于海滨上的今天杀码 | 于海滨预测3d号 | 3d试机号和开机号牛彩网 | 3d和值振幅走势图彩宝贝 | p3千禧试机号关注金码 | 中国福彩3D独胆当天精准预测 | 3d预测一注推荐 | 中国福彩3D独胆本期推荐 | 3D独胆大神杀号最新 | 3d彩吧图库红五3d图库 | 3d十大专家杀跨度汇总 | 3d藏机图正版藏机图汇总今天最新图片 | 中国杀码王绝杀 | 3d詹天佑预测分析牛彩网 | 3d詹天佑3d预测 | 3d最新专家预测推荐 | 3d专家预测推荐汇总 | 3d专家预测推荐号最新 | 3d预测今晚推荐号 | 3d专家预测牛彩网 | 今晚3d专家最精准的预测 | 今天3d牛彩网专家预测 | 3d精准定位专家预测 | 3d开机号与试机号金码 | 3d预测最准专家预测 | 3d太湖钓叟字谜三字 | 3d试机号开机号今天金码关注 | 3d预测推荐汇总牛彩网采摘收集 | 3d太湖钓叟字谜三字诀论坛 | 3d今晚必中三个号码预测 | 钱王今天3d预测号 | 3d预测专家最准确 | 3d推荐最新最准专家预测 | 今天专家推荐号码3d | 手机牛彩网3d预测 | 3d免费专家预测推荐 | 天齐藏机图汇总正版藏机图 | 3b预测汇总牛彩网 | 中国杀码王绝杀 | 3d牛彩网试机号后专家预测汇总 | 3d预测最准专家预测牛彩网 | 3d专家预测汇总牛彩网彩摘收集 | 3d双胆独胆推荐 | 3d试机号后专家预测汇总 | 3d今晚和值推荐 | 3d今晚预测最准确一注今天 | 今晚试机号多少3d | 3d十大专家预测汇总 | 3d基本走势图表 | 2025长期守号最佳5注推荐 | 3d各路专家预测汇总大全最新 | 于海滨3d专家预测 | 3d海滨点评一语定胆今天最新推荐 | 3d万能大底共250注直选 | 今日3d马后炮解太湖字谜 | 3d杀码专家大全 | 3d最新专家预测汇总 | 3d预测今晚推荐号 | 3d预测最准专家预测 | 3d最新专家预测汇总 | 中国福彩3D独胆内部杀号 | 3d预测最准最新准专家预测号码 | 3d推荐最新最准专家预测 | 今日3d正版藏机图全部天齐 | 今天3d专家推荐号 | 今天3d牛彩网专家预测 | 3d今晚最准专家推荐号 | 今天3d马后炮解太湖字谜汇总 | 马后炮解3d太湖字谜总汇大全 | 陈华3d今晚赌独一胆天齐网 | 3d专家推荐号最准确的推号 | 牛彩3d网首页| 3d预测今晚最准专家预测号码 | 今天3d专家解太湖字谜汇总 | 3d专家预测于海滨 | 3d廊坊鸿运 | 3d字谜历史记录 | 孟庆会3d预测今天 | 今于海滨3d预测今天牛彩网 | 财神爷独胆三天计划,就这么牛 | 3d今晚专家预测重点号码 | 陈华今天就赌一个胆3d | 今日排三太湖钓叟字谜三字诀 | 3d开机号和试机号码牛彩网 | 中国福彩3D独胆实时精准预测 | 今日钱王给胆点评 | 十拿九稳预测专家分析 | 3d胆王帅哥独胆双胆 | 今晚3d专家推荐号码是多少 | 3d专家预测推荐号码 | 3d今晚专家预测最准确一注 | 今天3d字谜解太湖字谜 | 今日3d字谜一句定三码和值谜定1 | 十拿九稳的最新预测 | 3d于海滨上的今天预测 | 3d预测专家推荐最准确 | 3d开机号和试机号金码关注 | 3d精选号码推荐今天最新 | 今晚的3d试机号是多少 | 3d最准确最新专家预测 | 3d免费预测汇总牛彩网 | 3D独胆大神分析 | 3d必下胆| 千禧3d试机号金码今天关注码对应码 | 3d牛哄哄解太湖字谜今天 | 3d独胆专家预测 | 3d成功路上人双胆独胆 | 于海滨海3d专家预测今晚一注 | 3d预测专家精准推荐号 | 3d之家独胆,双胆 | 3d下期预测最精准的一注号码 | 3d今晚推荐一注 | 中国福彩3D独胆当天走势最新 | 3d和值基本走势图表 | 3d北斗专家北斗预测今天079期3d | 3d今晚推荐号 | 李明启3d预测最新号码 | 3d今于海滨杀码图 | 3d开机号今天试机号查询 | 3d预测总汇手机牛彩网 | 3d组选中一注多少钱 | 3d基本走势图表完整版 | 3d走势图带试机号彩宝网 | 3d专家推荐最新预测 | 3d今天最新最准专家预测最 | 今天3d专家推荐重点号码 | 福彩3D独胆本期命中率 | 今日3d马后炮解太湖字谜 | 3d十大专家预测汇总 | 今天3d开机号试机号对应码列表 | 太湖3d字谜三字诀 | 3d专家预测推荐号码 | 3d最准确预测100%一注 | 十拿九稳今天预测专家 | 3d单个冷号最大遗漏 | 3d专家最新最准专家预测汇总 | 今天3d太湖钓叟三字诀字谜 | 中国福彩3D独胆今日精准预测 | 3d精准直选一注 | 3d天宇和值谜字谜一句定三码 | 排三今晚十拿九稳最新预测 | 3d最准确预测专家 | 三d字谜总汇大全 | 3d开机号今天近10期 | 福彩3D独胆今晚走势最新 | 于海滨今日杀码图 | 最准3d预测专家推荐号 | 卫星电话最建议买的三个型号 | 3d今晚最准专家预测号码 | 今天3d开机号试机号牛彩列表 | 2014年359期3d焰舞字谜 | 3d千禧今晚试机号码 | 小薇3d预测今天推荐 | 今晚钱王点评推荐号 | 苏会文3d预测今天推荐 | 3d詹天佑最新预测牛彩网 | 天府袍哥3d预测 | 中国福彩3D独胆下期推荐推荐最新 | 今日3d预测号码推荐 | 中国福彩3D独胆专家精准预测 | 3d字谜汇总大全总汇大全 | 今于海滨3d预测今天牛彩网 | 中国福彩3D独胆独家必中最新 | 3d今天开机号和试机号322 | 3d专家预测推荐汇总 | 于海滨3d预测免费 | 3d预测最准专家预测号 | 排五专家预测精准 | 3d北斗专家北斗预测今天079期3d | 3d之家双胆独胆预测 | 3d最精准专家预测汇总今天 | 李明启3d今晚预测专栏 | 3d专家预测最准确最新推荐号码 | 3d预测号最新最准牛彩网 | 唐龙3d预测号| 詹天佑3d预测号 | 3D独胆专家分析 | 3d试机号开机号关注号金码 | 3d预测最准专家预测 | 3d牛彩网试机号后专家预测汇总 | 【福星】3d单挑10注组 | 3d百个差振幅走势图近100期 | 3d最新专家预测汇总 | 3d预测专家最准最新 | 3d最新专家预测汇总大全 | 3d今晚惊天一注预测 | 3d最准确专家预测 | 3d预测专家推荐最准确 | 3d十大专家推荐号码汇总 | 3d百位十位个位走势图 | 今天3d开机号 试机号是多少 | 今晚3d出的什么号 | 3d今晚专家预测最准确号码 | 3d今天最新最准专家预测最 | 今于海滨3d预测今天 | 今天3d专家预测汇总 | 3d预测最准专家预测牛彩网 | 3d专家预测推荐最新 | 3d最精准专家预测汇总今天 | 3d试机号开机号关注号金码 | 3d独胆双胆 | 3d开奖杀码定胆 | 3d单双走势图表(专业版) | 今日3d藏机图正版藏机图134 | 专家精准预测3d号 | 3d钓叟字谜三字诀官网 | 3d预测一注号推荐一3d预测一注今天 | 3d杀码一定牛 | 3d分析预测 | 三天计划3d独胆必出论坛 | 3d今天推荐号码是多少 | 3d预测图 | 骄子铁鹰解3d字谜今日 | 3d推荐最新最准专家预测 | 3D独胆内部精准预测 | 今日排五专家推荐与预测 | 太湖解3d字谜汇总 | 3d今天专家预测最准确 | 3d预测杀码 | 福彩3D独胆团队分析最新 | 今天3d字谜解太湖字谜 | 三d三胆 | 经典小胆王三天计划配组合 | 3d牛彩网| 3d专家今日推荐号码 | 3d最准的预测专家 | 3d今天中了多少注直选 | 三d牛彩网开机号试机号是多少 | 3d今晚专家推荐预测重点号码 | 3d今晚专家预测推荐号 | 3d字谜太湖钓叟三字诀今天 | 3d任意两码差值尾走势图 | 骄子铁鹰解3d字谜今日 | 今日排五专家推荐与预测 | 三d预测专家最新推荐 | 于海滨3d彩吧图库 | 3d今天推荐号码是多少 | 3d预测号专家预测 | 3d今天专家预测最准确 | 3d最准确预测专家 | 全民胆王3d独胆一个 | 福彩3D独胆团队必中最新 | 3d百位遗漏振幅走势图南方双彩网 | 3d开机号和试机号今天查询 | 3d千禧开机号和100期试机号 | 3d杀码图汇总 | 于海滨专家预测 | 3d预测一注号推荐今晚 | 今天p3藏机图正版藏机图 | 3d今晚出啥号 | 唐龙点评每日一胆龙 | 今晚3d专家预测精选一注 | 詹天佑最新预测 | 3d带线走势图牛彩网 | 于海滨专家预测3d两吗 | 3d千禧金码试机号关注码 | 3d专家预测最新最准推荐 | 3d今晚一注 | 3d今晚最准专家预测号码 | 3D独胆大神杀号最新 | 3d老炮子直选三注 | 3d独胆二天计划 | 3d今晚预测最新最准确号码牛彩网 | 祖师爷独胆三天计划 | 3d百个和值尾振幅走势图 | 3d最准预测号 | 3d今天专家预测号码最准确 | 廊坊鸿运3d推荐今天 | 3d计算机开机号夏天推荐 | 今天3d开机号和试机号多少? | 3d百十个位杀码家彩网 | 3d走势图带试机号彩宝网 | 3d六码复式多少钱一注 | 3d今晚最准专家推荐号 | 3d推荐号今晚专家预测 | 3d试机号开机号今天金码关注 | 牛彩网3d预测分析汇总大全 | 3d谜语今天字谜今天的3d字谜是什么? | 3d预测专家准确推荐 | 3d今天开机号和试机号金码对应码 | 藏机图3d正版总汇 | 十拿九稳预测专家分析 | 3d今日预测最准专家预测 | 今天3d开机号和试机号多少? | 中国福彩3D独胆下期最新分析 | 最准一个毒胆 | 千禧关注码试机号金码 | 3d双胆中中中 | 独胆三天计划 | 中国福彩3D独胆下期最新必中最新 | 3d下期预测最准一注 | 太湖三字诀字谜三 | 三地杀码高手 | 三d预测专家| 3d专家预测最准确最新推荐号码 | 3d开机号和试机号今天全部 | 排三十拿九稳今天预测 | 3d预测专家推荐最准确 | 今日正版3d藏机图汇总 预测 | 今天3d开机号 试机号是多少 | 3d十位走势图彩经网 | 3d北斗专家北斗预测今天079期3d | 3d专家预测号码推荐今天 | 3d最精准专家预测汇总今天 | 于海滨今日杀码图 | 于海滨3d杀码 | 财神爷独胆三天计划,就这么牛 | 于海滨3d预测牛彩网 | 太湖字谜三字诀汇总 | 3d顶级胆神双胆 | 3d预测一注号推荐今晚 | 今天3d开机号试机号牛彩列表 | 太湖字谜马后炮3d总汇 | 毒胆牛人三天计划今天 | 今天的3d推荐号码是多少 | 3d专家推荐号最准确的推号 | 3d太湖专家预测今晚 | 3d解太湖字谜汇总精选 | 3D独胆独家推荐最新 | 3d基本走势图 综合 太湖三字诀字谜三 | 3d开机号和试机号200期列表 | 3d牛彩网今天开机号试机号 | 3d杀码图专区,杀码图 | 3d牛彩网专家预测 | 3d牛彩网专家预测 | 3d开机号和试机号八仙选号 | 3d预测牛彩网预测汇总 | 3d千禧金码试机号关注码 | 今日3d蓝仙子一句定三码字谜 | 3d试机号后专家预测 | 3d太湖字谜图谜总汇 | 三d预测汇总 | 3d专家预测最准最新今天 | 今天3d千禧试机号关注号金码号 | 3d今晚专家预测最准确一注 | 福彩3D独胆下期推荐精准预测 | 老炮子预测今晚三地 | 排五开机号试机号今天查询 | 杀码3d杀码图 | 3d研究生双胆王 | 于海滨杀码图谜 | 3d双胆预测 | 今晚3d预测最准一注 | 千禧3d试机号关注码金码试机号 | 3d预测专家准确推荐 | 3d平均值走势图振幅3d之家 | 3d预测最准确的专家 | 3d预测推荐汇总 | 3D独胆下期最新预测 | 福彩3D独胆实时走势 | 3d百十个位杀码家彩网 | 于海滨杀码图牛彩 | 3d专家预测最准确今天南方双彩网 | 3d跨度振幅近100期走势 | 昨天3d开奖号是多少 | 3d精准定位专家预测 | 3d今天精准一注 | 3d字谜太湖钓叟三字诀17500 | 3d之家双胆独胆预测 | 3d预测号码最准确专家预测 | 3d千禧金码试机号关注码开奖号 | 3d藏机图天齐正版藏机图 | 牛彩网3d预测汇总大全手机版下载 | 3d今天开机号和试机号码牛彩网 | 3d今天专家预测最准 | 今天3d太湖钓叟字谜三字诀 | 3d谜语解太湖字谜 | 今天的3d开机号和试机号查询 | 3d专家预测最准确今天南方双彩网 | 3d十大专家预测汇总 | 3d直选走势图(专业版) | 3d预测分析 | 今天最新3d开机号试机号关注码 | 3d开机号和试机号码牛彩网 | 3d今天专家预测最新最准 | 唐龙3d预测今日出号点评 | 陈华今晚独胆特别关注 | 千禧p3试机号关注号金胆对应号 | 3d今晚最精准一注一注 | 3d今晚最准最新专家推荐号 | 3d试机号码开机号 | 唐龙一胆今天最新 | 3d今日专家推荐号 | 3d预测詹天佑 | 3d最新专家预测汇总 | 铁人铁胆3d包星定位最新今天 | 于海滨彩吧图库 | 3d直选一注50倍单挑 | 3d专家预测汇总牛彩网 | 3d十大专家预测汇总 | 今天3d字谜解太湖字谜 | 3d今晚推荐号 | 解3d字谜太湖钓叟汇总 | 今晚3d专家推荐号码是多少 | 3d胆预测天齐网 | 3d精准一注今天 | 3d最精准的专家预测 | 孟老师专家预测3d | 今晚3d推荐号码是多少 | 3d专家最新最准专家预测 | 今日3d太湖三字谜 | 3d今晚最精准专家 | 三d预测专家预测今天最新 3d专家预测最准最新今天 | 于海滨最新3d预测今天 | 天府袍哥3d预测 | 3d预测最准最新准专家预测 | 3d专家预测更准确今天 | 专家预测3d号码准确 | 于海滨最新3d预测推荐今天 | 下一期专家推荐号码 | 北斗3d今日专家预测推荐 | 3d家彩网 | 3d最准确预测专家 | 3d双胆独胆 | 今天专家推荐号码3d | 3d今晚专家预测推荐 | 3d北斗专家北斗预测今天079期3d | 3d近30期开机号试机号开奖号查询 | 3d预测最新最准专家推荐号码 | 3d李明启预测号 | 3d今日预测最准专家预测 | 3d今晚预测最新最准确号码牛彩网 | 3d之家双胆独胆预测 | 今日3d专家推荐号码 | 排三今晚推荐号 | 高手看3d经典独胆组合 | 3d今晚中奖号157 | 太湖字谜3d和值谜 | 3d最大值振幅走势图3之家 | 3d预测今天推荐 | 3d今天专家预测号码最准确 | 于海滨点评专家一注定胆保真版 | 3d今天最准专家预测 | 试机号开机号金码关注号对应码3d | 3d陈华今晚就赌一胆今天最新消息 | 3d和值尾振幅走势图近100期 | 3d今晚上预测号码 | 今晚3d专家最精准的预测 | 3d专家预测推荐最新 | 神仙姐姐今天最新杀码 | 3d必中直选| 神仙姐姐杀码今天 | 3d今晚专家推荐预测重点号码 | 3d最新专家预测推荐 | 今天专家推荐号码3d | 3d今日专家推荐 | 3d专家预测汇总大全 | 3d八哥图库总汇d字谜图谜总汇大全 | 3d必下双胆| 今天的3d推荐号码是多少 | 3d最新专家预测汇总牛部长预测 | 3d今天专家预测号码 | 今于海滨3d预测彩吧图 | 3d今天专家推荐 | 3d独胆10中10 | 福利3d开奖号码 | 3d晶晶必下一独胆今天 | 天才计划三天计划独胆 | 3d必中永久直选500注大底 | 3d藏机图正版藏机图汇总今天最新 | 今天3d开机号 试机号是多少 | 近50期3d开奖结果 | 3d专家预测推荐号码 | 3d十大专家汇总精选一注 | 3D独胆今晚命中率 | 3d北斗专家北斗预测今天079期3d | 3d一定牛专家预测推荐 | 3d预测号码 | 中国福彩3D独胆今日精准预测 | 3d真帝王杀码图 | 福彩3D独胆下期推荐最新 | 下一期专家预测号码 | 今晚3d的试机号是 | 3d精准预测推荐 | 3d最新预测专家推荐 | 今天的3d开奖号是多少 | 中国福彩3D独胆今日精准预测 | 3d今日牛彩网 | 今晚3d天宇一句定三码字谜 | 十大杀码专家3d | 福彩3D独胆明日精准预测 | 3d开机号试机号关注号金码对应码 | 3d推荐最新最准专家预测 | 3d预测今晚最准专家预测号码 | 3d今天开机号和试机号是多少 | 3d试机号开机号今天最新 | 十拿九稳今天预测专家 | 千禧3d试机号关注码金码今天的 | 3d最新专家预测汇总 | 北斗3d今日专家预测推荐 | 今天3d开奖号是多少 | 3d图谜总汇字谜 | 3d今天千禧试机号关注号金码 | 中国福彩3D独胆专家精准预测 | 詹天佑3d今日预测 | 于海滨预测3d号 | 3d专家于海滨 | 小红人的三天计划今天是什么 | 3d今晚预测最新最准确号码牛彩网 | 3d开机号今天试机号30期 | 于海滨今天预测 | 3d今晚最准专家推荐号 | 3d专家预测推荐号最新 | 詹天佑最新预测 | 3D独胆下期推荐走势最新 | 于海滨点评专家一注定胆保真版162期 | 字谜3d太湖马后炮 | 3d精选号码推荐今天最新 | 今晚3d专家预测汇总 | 3d计算机开机号夏天推荐 | 3d杀码大全 天齐网 于海滨3d最新预测 千禧3d试机号金码关注码对应码今晚 | 我是毒胆王,今晚独胆 | 3d百十和值尾振幅走势图 | 牛彩网3d专家预测汇总 | 3d今天开机号和试机号322 | 今日正版3d藏机图汇总 预测 | 正版真精华布衣天下今天推荐号码 | 3d开奖杀码定胆 | 3d最准预测 | 3d开机号和试机号今天千禧 | 今晚上3d出奖结果 | 3d最精准的专家预测 | 3d千禧开机号和100期试机号 | 今于海滨3d预测今天牛彩网 | 3d专家预测最准确今天牛彩网 | 中国彩吧更一懂彩民最新版本更新时 | 3d今天专家预测最准确 | 于海滨3d今晚预测 | 3d今天专家推荐号码推荐 | 今日3d马后炮解太湖字谜 | 3d钱王点评| 3d试机号是多少牛彩网 | 3d太湖17500字谜| 3d和值专家推荐和值 | 3d今天开机号和试机号开奖结果 | 3d今晚最准最新专家推荐号 | 十拿九稳的最新预测 | 中国福彩3D独胆当天分析 | 3d廊坊鸿运正版推荐 | 今天3d开机号和试机号对应码查询 | 铁人铁胆3d包星定位最新今天 | 今日3d预测专家推荐 | 3D独胆今晚命中率 | 最新3d预测专家预测 | 3d十位走势图振幅 | 太湖字谜马后炮3d总汇 | 3d专家预测最新 | 3d精选号码推荐今天最新 | 牛彩网杀码大全 | 3d绝杀二码今天最新更新内容 | 3d和值尾振幅走势图3d走势3d之家 | 牛彩网3d走势图表 | 3d精准预测推荐 | 3d精准推荐号 | 三d历史走势图 | 3d预测专家精准推荐号 | 排5预测,最准排五专家 | 3d单个冷号最大遗漏 | 中国福彩3D独胆专家推荐最新 | 今晚3d必出号 | 排三十拿九稳今天预测 | 3d最准专家预测号 | 3d双胆神算今天最新 | 3d今晚开奖号码结果是多少 | 3d预测最准确最新 | 太湖字谜三字诀论坛 | 太湖谜3d太湖钓叟字谜 | 今于海滨杀一码 | 3d字字谜图谜总汇 | 3d条件预测专家专区 | 今日3d十大专家双胆总汇 | 3d预测专家推荐 | 3d四码直选多少钱一注 | 3d试机号牛彩网近三十期 | 今晚精准一注3d | 于海滨杀码图谜 | 3d今晚最准专家推荐号 | 3d预测专家最准确 | 3d专家预测最准确最新今天牛彩 | 3d陈华今晚就赌一胆o11预测 | 3d最精准专家预测汇总今天 | 3d试机号今晚开机号 | 太湖试机号后一句定三码3d字谜 | 金银胆神金胆银胆的最新消息 | 3d预测最准确的专家预测软件 | 3d专家预测最准确最新汇总对应码 | 3d最新最准专家预测号码 | 今天3d专家推荐号 | 3d独胆必下一 | 3d图库彩吧彩报第三版 | 于海滨今天预测 | 于海滨精准杀码图 | 3d今晚最稳 | 3d专家预测最准确最新今天 | 今日3d蓝仙子一句定三码字谜 | 北斗3d今日专家预测推荐 | 3d组三一注多少钱 | 今日钱王给胆点评 | 中国福彩3D独胆团队命中率最新 | 无敌胆王今日双胆 | 3d今晚预测直选四注 | 3d走势图基本走势图表 | 财神爷独胆三天计划,就这么牛 | 3d专家推荐预测号 | 3d最准确预测专家 | 詹天佑最新预测3d | 近1000期3d开奖结果 | 今晚3d专家最精准的预测 | 3d独胆预测 | 今日3d开机号和试机号列表三十期 | 三d今日太湖字谜解 | 今日3d十大专家双胆总汇 | 3d预测最准的专家预测 | 3d独胆双胆 | 太湖钓叟排三字诀字谜 | 3d预测最准确的专家 | 3d藏机图正版藏机图全图牛彩网 | 3d十大专家推荐号码汇总 | 十拿九稳专家预测专栏 | 中国福彩3D独胆本期命中率 | 3d今晚专家推荐预测重点号码 | 3d今天专家预测号码 | 3d专家预测最准确今天 | 铁人铁胆包星定位今天最新结果 | 3d预测詹天佑 | 于海滨最新3d预测今天 | 今天3d开机号 试机号是多少 | 3d今天专家推荐号码推荐 | 于海滨最新预测今天 | 3d藏机图正版图汇总 | 唐龙一胆今天最新 | 看彩大亨最新独胆预测 | 3d开机号和试机号码牛彩网 | 于海滨3d预测 | 3d专家预测推荐号码 | 3d直选一注必中 | 3d预测总汇手机牛彩网 | 3d开机号和试机号今天 今晚 | 今于海滨3d预测今天牛彩网 | 3d杀码大全 | 3d八哥图库总汇d字谜图谜总汇大全 | 今于海滨3d预测今天 | 福彩3D独胆老师走势最新 | 今天专家推荐号码3d | 3d最准确预测专家 | 3D独胆团队走势 | 3d专家预测最准确最新今天牛彩 | 今于海滨3d预测 | 3d预测最准最新牛彩网 | 3d基本走势图表完整版 | 3d开机号今天试机号30期 | 3d今日专家推荐号 | 3d试机号今晚开机号 | 3d预测专家最准最新 | 今天3d开机号和试机号查询结果彩吧 | 于海滨最新3d预测推荐今天 | 3d最准预测专家预测大 | 3d专家预测推荐汇总 | 3d直选三注| 3d十大专家汇总精选一注 | 3d开机号和试机号今天金码0 | 财神爷三天计划必下更新 | 中国福利3d今天模拟试机号 | 3d最近1000期走势图表综合版图片 | 彩坛老顽童3d独胆 | 6+1专家预测号 | 太湖马后炮3d钓叟字谜 | 今天的3d藏机图正版藏图 | 3d今天预测最准确专家 | 3d今天专家预测号码 | 3d专家预测最准确最新汇总对应码 | 3d詹天佑预测分析牛彩网 | 3d振幅和值尾走势图 | 3d均值振幅走势图表图 | 3d今晚专家预测推荐号 | 乾坤三天计划独胆预测 | 3D独胆老师预测 | 3d预测专家推荐最准确 | 3d专家预测最准最新今天 | 3d彩报图今天的第五版 | 3d红波蓝波走势图大中小 | 3d千禧试机号金码关注码 | 于海滨海3d预测保真 | 3d专家最新最准预测 | 牛彩网3d预测分析汇总大全 | 千禧3d试机号关注码今天 | 千禧3d试机号关注码金码今天的 | 3d最精准的专家预测 | 于海滨3d免费预测最新的 | 3d今晚专家预测最准确一注 | 唐龙每日一胆天齐网 | 3d今晚推荐号 | 3d最新专家预测汇总牛部长预测 | 老炮子3d直选三注 | 今日3d预测专家推荐 | 中国福彩3D独胆实时推荐 | 3d今晚专家推荐号 | 3d最新准专家预测 | 千禧今晚3d试机号关注码金码 | 3d今晚专家推荐号 | 《金银胆神》金胆银胆3d最新一期开奖 | 3d杀码专家杀码天齐网 | 3d最准专家预测方法 | 钱王点评十钱王老头给胆 | 3d最准专家预测号 | 3d开机号和试机号200期列表 | 3d牛彩网试机号后专家预测汇总 | 钱王老头点评牛彩网 | 3d直选开奖结果 | 排五奖号| 3d最大值振幅走势图遗漏 | 3d预测最准确最新 | 3d今天专家预测最准 | 今日3d专家预测号码推荐 | 3d预测号码最准确专家预测 | 3d开机号和试机号金码和关注码 | 3d乐彩走势图表 | 3d单一跨度走势图表 | 3d独胆公式正确率在99%以上 | 中国福彩3D独胆下期推荐杀号最新 | 3d单一跨度走势图表 | 3d小龙一句定三码今日字谜天中图 | 3d今晚预测直选四注 | 3d独胆双胆天齐网 | 三d十拿九稳预测号码 | 解太湖3d字谜太湖 | 福彩3D独胆明日分析 | 3d藏机图正版藏机图太湖字谜 | 3d专业版(走势图带连线) | 3d今晚和值推荐 | 3d单个冷号最大遗漏 | 3d最准专家预测号今晚3d试机号 | 于海滨海3d预测牛彩网 | 3d邻孤传走势图乐彩 | 3d今天最准专家预测 | 3d专家预测最准确最新今天 | 3d预测专家推荐号码 | 福彩3D独胆下期推荐必中 | 3d今天专家预测号码 | 杀码3d杀码图| 3d和值走势图表综合版 | 3d今晚预测最新最准确号码牛彩网 | 最准的3d专家预测 | 三d独胆 | 3d今晚最准三注 | 于海滨3d专家预测 | 3d专家最准确预测 | 今晚3d专家推荐 | 3d专家预测最准确今天 | 三天计划3d独胆论坛 | 3d专家预测最准确最新推荐号码 | 一代女王p3杀两胆独胆 | 今天3d金码试机号对应码开机号 | 于海滨专家3d今天预测 | 3d和值尾走势图(专业版) | 3d预测最准确的专家 | 3d开心毒胆独胆王 | 詹天佑3d分析推荐 | 今天三d专家推荐号码 | 福彩3D独胆下期最新分析 | 千禧试机号关注号金码是什么 | 今晚3d预测开奖号码推荐 | 今天3d开机号试机号对应码列表 | 今日3d正版藏机图全部天齐 | 3d太湖钓叟字谜三字诀汇总 | 3d预测专家推荐最准确 | 3d今天预测最准确专家 | 于海滨专家预测 | 3d真实的谎言字谜总汇正版 | 3d今日开机号和试机号及关注码 | 3d八哥图库总汇d字谜图谜总汇大全 | 3d今晚专家推荐预测重点号码 | 3d精选号码推荐今天最新 | 3d和值谜汇总大全 | 3d今晚预测直选一注3d一注预测 | 3d和值走势图表综合版 | 3d今晚开奖号码结果是多少 | 3d预测最准最新准专家预测号码 | 于海滨预测号 | 詹天佑今天3d推荐 | 3d今天专家预测号码最准确 | 财神一语定一注3d字谜 | 3d今天绕胆图彩之网 | 今日3d专家预测号码推荐 | 3d专家直选最精准一注 | 3d杀码一定牛 | 3D独胆实时必中最新 | 3D独胆明日精准预测 | 于海滨3d预测专家今天 | 《金银胆神》金胆银胆3d最新一期开奖 | 福彩3D独胆明日推荐 | 3d今晚专家推荐预测重点号码 | 3d专家预测最准确今天牛彩网 | 3d最精准的专家预测精选 | 千禧开机号试机号关注号金码杀码 | 3d近30期开机号试机号开奖号查询 | 3d八哥图库总汇d字谜图谜总汇大全 | 3D独胆老师预测 | 3d专家预测最准确最新推荐号码 | 3d预测专家推荐号码推荐 | 3d于海滨上的今天预测保真 | 3d各类和值最新谜字谜今天 | 3d太湖钓叟字谜三字诀汇总 | 中国福彩3D独胆下一期预测最新 | 3d今天开机号和试机号码727 | 3d条件预测专家专区 | 3d专家预测最准确最新新闻 | 3d直选精准100%免费 | 3d太湖专家预测今晚 | 3d必中直选| 三天计划独胆牛人 | 牛彩网预测3d | 今天专家推荐号码3d | 3d试机号码开机号 | 福彩3D独胆内部杀号 | 3d财神爷独胆双胆双飞计划三天 | 牛彩网近30期3d开机号试机号 | 天才计划三天计划独胆 | 3d牛彩图谜字谜总汇九 | 今日3d字谜3d一句定三码诗天中图 | 3d六码组三多少钱一注 | 【开心毒胆】今天 | 3d预测号最新最准牛彩网 | 今天3d开机号试机号码 | 解太湖3d字谜太湖 | 3d预测专家推荐最准确 | 詹天佑今日3d预测 | 3d精选号码推荐今天最新 | 今日排五专家推荐与预测 | 詹天佑今天3d推荐 | 詹天佑推荐3d | 3d藏机图正版藏机图诗汇总 | 3d十位走势图彩经网 | 今于海滨3d预测今天牛彩网 | 今于海滨3d预测彩吧图 | 3d单式怎么才算中奖 | 3d财神爷独胆双胆双飞计划三天 | 3d专家预测号码推荐今天 | 3d彩吧预测,预测 | 3d今晚出的号码 | 3d专家预测于海滨 | 中国福彩3D独胆下期推荐推荐最新 | 今晚3d开机号试机号金码关注码 | 十拿九稳专家预测专栏 | 3d独胆预测必下一胆 | 詹天佑3d今晚预测号码 | 中国福利3d今天模拟试机号 | 3d专家预测最准确今天南方双彩网 | 于海滨海3d专家预测今天 | 中国福彩3D独胆今日走势最新 | 今天专家推荐号码3d | 3d今晚预测直选一注3d一注预测 | 三d独胆 | 今晚3d专家推荐号 | 3D独胆下期推荐分析最新 | 毒胆牛人三天计划今天 | 于海滨海3d预测保真 | 3d今晚预测直选一注3d一注预测 | 3d预测 下一期 3d预测专家 3d预测 | 3d今晚惊天一注预测 | 今晚3d预测专家预测号 | 3d预测专家最准确今天 | 于海滨3d免费预测最新的 | 福彩3D独胆最新推荐最新 | 3d精准预测最准的专家 | 3d预测号最新最准牛彩网 | 3d北斗专家北斗预测今天079期3d | 3d牛彩网专家预测 | 3d直选是什么意思 | 3d开机号近30期列表彩宝网 | 3d牛彩网今天开机号试机号 | 3d于海滨杀码图 | 3d白娘子跨度字谜汇总今天牛彩网 | 今日3d专家预测号码推荐 | 3d六大专家杀码汇总 | 最准的3d专家预测 | 天府袍哥3d预测 | 3d十大专家汇总精选一注 | 3d专家推荐 | 3d预测今晚最准 | 3d精准预测最准的专家 | 3d今晚最准专家预测号码 | 一名将3d双胆预测 | 3d预测牛彩网预测汇总 | 3d今天最新最准专家预测最 | 真实的谎言3d字谜追加和值谜 | 3d最准的预测专家 | 今天3d正版太湖字谜 | 于海滨专家3d预测 | 3d预测今晚最准专家预测号码 | 3d走势图的基本走势图 | 3d断组今晚全部 | 3d藏机诗藏机图天中图库 | 福彩3D独胆高手预测 | 牛彩网近30期3d开机号试机号 | 唐龙一语定胆3d今天 | 3d今晚专家推荐预测重点号码 | 3d今天开机号和试机号多少 | 3d今天专家推荐号码 | 3d独胆必下一独胆准 | 3d今晚开奖号码结果是多少 | 福彩3D独胆下期推荐精准预测 | 3d双胆独胆非常非常 | 今日3d预测号码推荐 | 福彩3D独胆下期推荐精准预测 | 3d预测最准专家预测号码 | 于海滨海3d专家预测今天 | 3d彩吧图库手机牛彩网 | 今晚钱王点评推荐号 | 唐龙一语定胆最新 | 3d千禧试机号关注号金码牛彩网 | 3d推荐专家汇总 | 3d专家预测号 | 3d字谜总汇图 | 3d预测天齐网| 中国福彩3D独胆实时推荐 | 3d独胆双胆3d之家 | 3d买4个号直选多少钱 | 3d通辽独胆王今天 | 今日3d马后炮解太湖字谜 | 3d太湖钓叟字谜三字 | 今晚3d专家推荐重点号码 | 今晚3d专家推荐号码是多少 | 3d双胆独胆非常非常稳定 | 天齐网3d杀码大全 | 3d今日预测最准专家预测 | 3d预测最准专家预测牛彩网 | 3d预测最准专家预测 | 3d预测最准确的专家预测软件 | 布衣3d独胆双胆王 | 3d最新专家预测推荐 | 牛彩网3d预测分析汇总大全 | 3d直选一注多少钱 | 3d预测今晚推荐号 | 专家预测3d号码准确 | 3d试机号后专家预测汇总 | 3d独胆必下一独胆布衣正 | 3d今天专家预测号码最准确 | 十大专家3d预测汇总 | 千禧试机号关注金码是什么 | 3d今晚推荐号码最新 | 今晚的3d| 唐龙一胆 | 3d预测专家推荐号码 | 唐龙一胆今天最新 | 今天3d开机号和试机号对应金码 | 3d于海滨专家预测 | 3d预测最新最准专家 | 3d最精准的专家预测 | 3d和值尾振幅走势图近50期 | 3d近200期试机号和开奖号码 | 3d预测最准专家预测牛彩网 | 3d今天专家推荐号码 | 3d精选号码推荐今天最新 | 北斗3d今日专家预测推荐 | 今天的3d开机号和试机号查询 | 3d专家预测推荐 | 3d天齐网最准预测 | 今天3d开机号试机号牛彩列表 | 3d专家今天推荐号码推荐 | 于海滨点评专家一语定胆保真版 | 3d专业版(走势图带连线) | 3d今天开机号和试机号开奖结果 | 3d今日预测推荐号 | 3d顶级胆神双胆 | 3d武当玉女掌门一句定三码字谜 | 3d专家号 | 天齐网3d必中两胆今天 | 于海滨3d最新预测 | 至尊计划王三天计划独胆 | 3d今天开机号试机号牛彩网 | 3d杀码百位十位个位 | 于海滨海3d预测免费每日精选3d开奖号 | 3d预测今晚推荐号 | 天才计划三天计划独胆 | 3d专家预测最准确最新今天 | 詹天佑3d预测今天推荐号码 | 3d直选注| 北斗3d今日专家预测推荐 | 千禧3d试机号关注码金码试机号 | 3d跨度振幅3d之家走势图 | 千禧p3试机号关注号金胆对应号 | 3d今晚最准的一注 | 3d预测 下一期 3d预测专家 3d预测 | 3d今天的开机号和试机号查询 | 于海滨专家3d预测 | 今晚3d专家预测 | 今日3d专家精准推荐 | 3d开奖必中 | 近10期3d开奖结果 | 3d专家预测最准今天 | 3d今天开机号和试机号码300 | 3d开奖号今晚晚上 | 3d小龙一句定三码今日字谜天中图 | 神仙姐姐杀码今天的 | 3d谜语今天字谜今天的3d字谜是什么? | 3d和值和尾振幅走势图 | 3d走势图带连线图表牛彩网 | 3d于海滨专家预测 | 3d预测一注号推荐今晚 | 唐龙一胆今天最新 | 今日3d专家预测总汇 | 3d今天开机号和试机号金码对应码 | 飞向阳光龙头凤尾今天最新消息 | 千禧3d试机号关注码金码试机号 | 3d今晚最准专家预测号码145 | 3d之家预测专家预测 | 3d双飞怎么买多少钱一注 | 3d今晚专家推荐预测重点号码 | 3d同期历史对比 | 3d今天专家推荐号码 | 3d试机号今晚牛彩网 | 3d今晚试机号是多少查询 | 3d今晚开出什么号码 | 3d今天的推荐号 | 3d彩吧试机号今天最新 | 3d单个冷号最大遗漏 | 3d专家预测最准确最新今晚预测 | 陈华3d独胆推荐 | 3d于海滨预测预测牛彩网 | 今日3d蓝仙子一句定三码字谜 | 今日3d预测 | 3d藏机图正版藏机图 | 3D独胆明日走势 | 3d最精准专家预测汇总今天 | 中国福彩3D独胆最新走势 | 3d今天推荐号码是多少 | 今天3d专家推荐重点号码 | 三d五码复式打一注多少钱啊 | 3d专家预测最准最新今天 | 3d杀码公式最新 | 詹天佑3d最新预测今天 | 3d必中永久直选500注大底 | 于海滨3d最新预测 | 于海滨3d预测天齐网 | 3d试机号牛彩网近三十期 | 3d预测今晚最准专家预测号码 | 3d走势图专家推荐号码 | 3d双胆独胆推荐 | 3d带专业连线走势图 | 3d今晚最准最新专家推荐号 | 三d预测最准十专家预测今晚 | 中国福彩3D独胆今日精准预测 | 今晚3d开奖号是多少 | 3d之家,专家预测预测 | 给一注今晚3d | 今日3d钱王点评 | 3d字谜图谜总汇全图汇总 | 今晚3d专家最精准的预测 | 3d试机号后专家预测推荐汇总 | 3d今晚最佳和值 | 3d藏机图天齐正版藏机图 | 3b预测汇总牛彩网 | 今日精准预测推荐3d号码 | 3d推荐最新最准专家预测 | 詹天佑3d推荐 | 3d试机号近10期彩经网 | 3d牛彩网100期开机号和试机号 | 3d杀码想要 | 3d今天开机号试机号100期 | 3d今日专家推荐号 | 3d今天开机号和试机号322 | 3d专家预测推荐最新 | 3d今晚预测精准 | 3d中2个号多少钱 | 于海滨一语定胆专家点评 | 3d今晚最准专家推荐号码 | 3d开奖号走势图表 | 3d独胆双胆预测 | 3d最准专家预测号今晚3d试机号 | 3d今晚预测100% | 3d今晚专家预测推荐 | 今日钱王给胆点评 | 3d通杀一码准确率100% | 解太湖3d字谜太湖 | 3d今晚最准专家推荐号码 | 2025长期守号最佳5注推荐 | 龙头凤尾今日预测 | 3d专家预测推荐号码 | 今天3d开机号试机号码 | 3d今晚专家预测 | 玩胆先生今晚双胆 | 中国福彩3D独胆专家精准预测 | 3d詹天佑3d预测分析 | 3d今天专家推荐号码 | 3d今晚和值推荐 | 稳准狠三天计划 | 3d今晚专家预测最准确一注 | 3d字太湖叟字谜 | 今晚3d专家预测汇总 | 3d詹天佑预测分析牛彩网 | 于海滨3d预测免费 | 正版铁人铁胆3d | 今晚3d专家推荐号码 | 3d走势图带连线图表 | 3d紫云涧专家预测推荐 | (暴富密码)绝杀两码预测 | 3d预测最准的专家 | 3d近30期试机号和开奖结果 | 今日3d预测号 | 十拿九稳的最新预测 | 3d今晚预测最准确一注今天 | 3d今日专家推荐号 | 3d预测专家推荐最准确 | 今天3d中奖 | 3d字谜汇总大全总汇牛彩网开机号 | 3d今晚预测直选四注 | 3d独胆专家预测 | 3d胆王双胆独胆 | 最新3d预测专家预测 | 沈宝桢个人简历 | 3d专家预测精选一注 | 成功路上3d双胆独胆 | 3d今晚最准专家推荐号 | 3d今天预测最准确专家 | 无敌胆王今日双胆 | 中国福彩3D独胆今日预测最新 | 3d今晚专家预测推荐号 | 牛人独胆三天计划 | 解3d太湖钓叟字谜汇总 | 3d专家预测精选一注 | 3d带线走势图连线走势图 | 于海滨今日杀码图 | 3d预测专家最准确的专家预测今晚 | 3d今晚专家预测重点号码 | 3d今晚最准专家预测号码145 | 3d今晚专家预测推荐号 | 3d詹天佑最新预测今天 | 3d开奖杀码定胆 | 于海滨海3d专家预测今晚一注 | 3d最新专家预测汇总牛部长预测 | 3d专家最新最准预测 | 太湖叟3d字谜湖字谜 | 3d今晚精选预测一注 | 3d专家预测最准确最新新闻 | 3d开机号今天牛彩网近30期 | 3d专家解今日太湖字谜汇总 | 3d试机号后专家预测推荐汇总 | 明天的3d太湖字谜 | 3d推荐号3d推荐号码 | 3d今天专家预测最准确 | 今于海滨一语定胆保真今天 | 3d开机号和试机号9.30分 | 3d孔方来萃解太湖字谜 | 3d今晚专家预测最准确一注 | 3d专家预测最准确今天上一期 | 3d今天中了多少注直选 | 3d精准三注直选 | 3d今晚的开奖号码 | 3d今晚预测最新最准确号码牛彩网 | 今晚3d专家预测精选一注 | 3d专家预测最准确今天南方双彩网 | 3d预测专家精准推荐 | 福彩3D独胆最新命中率 | 3d于海滨上的今天预测保真 | 3d陈华今晚独胆推荐 | 福彩3D独胆最新必中最新 | 千禧p3试机号关注号金胆对应号 | 3d最精准的专家预测精选 | 3d乾坤独胆王独胆 | 3d买一个独胆中了得多少钱 | 3d专家预测最准今天 | 3d今天开机号和试机号开奖结果 | 3d开机号和试机号码牛彩网 | 3d今晚最准专家预测号码145 | 3d独胆双胆| 大老人3d预测牛彩网推荐 | 于海滨3d预测号 | 3d今晚预测准确的专家预测 | 3d预测今日最新推荐 | 3d今天专家预测推荐号码 | 3d今晚最准专家推荐号 | 千禧3d试机号关注码金码试机号 | 今天的3d开机号和试机号查询 | 龙头凤尾今日预测 | 3d专家预测最准牛彩网 | 3d杀码最准确 | 今天3d必出一注 | 今天的3d开机号和试机号中奖号 | 今晚3d开机号试机号 | 3d专家预测号码推荐今天 | 3d两胆精准预测 | 中国福彩3D独胆下期推荐杀号最新 | 3d独胆王精准100% | 3d今天开机号和试机号 | 3d专家预测最准确今天 | 3d看胆精英独胆 | 毒胆牛人三天计划 | 3d专家最新最准专家预测汇总 | 3d胆王双胆独胆 | 中国福彩3D独胆当天精准预测 | 小财神三天计划独胆必下 | 3d专家最新最准专家预测 | 3d直选一注今天 | 3d今天精选五注 | 十拿九稳十大专家预测汇总最新一期 | 3d字谜图谜总汇全图汇总 | 今天3d推荐号码今晚预测 | 千禧关注码试机号金码 | 3d专家预测准确 | 3d于海滨上的今天预测 | 3d最精准专家预测汇总今天 | 3d晚间字谜汇总汇 | 3d今天专家推荐号码 | 今日3d一注推荐 | 今晚3d预测开奖号码推荐 | 毒胆牛人三天计划 | 3d直选历史遗漏查询 | 孟老师专家预测3d | 福彩3D独胆下期推荐必中 | 了3d开奖结果 今天晚上 | 无敌胆王今日双胆 | 3d今天专家预测推荐号码 | 于海滨最新3d预测推荐今天 | 3d专家预测最准确最新今天 | 今天3d正版太湖字谜 | 3d走势图带连线图表 | 太湖三字诀字谜三 | 3d专家预测推荐汇总 | 3d的开机号试机号奖号表 | 今晚3d直选推荐 | 3d毒胆双胆三胆 | 于海滨3d今晚预测 | 无敌胆王今日双胆 | 今日3d预测号码推荐 | 3d杀码图汇总牛彩网 | 3d千禧试机号金码关注码对应码 | 3d直选走势图(专业版) | 今天3d于海滨预测 | 今天3d专家预测汇总 | 3d专家今天预测汇总 | 3d今晚专家预测推荐号 | 3d直选一注预测 | 3d真实的谎言字谜总汇正版 | 3d今晚开奖号码多少 | 3d晶晶必下一独胆今天 | 3d杀码专家杀码天齐网 | 3d晚间字谜汇总汇 | 今晚3d专家最精准的预测 | 今天3d詹天佑预测分析 | 3d百位四胆 | 3d毒胆| 3d推荐最新最准专家预测 | 3d字谜太湖钓叟三字诀17500 | 3d独胆双胆3d之家 | 唐龙一胆| 3d红波蓝波走势图大中小 | 3d今晚最准专家推荐号码 | 3d最准专家预测号今晚3d试机号 | 3d今晚预测号码 | 马到成功杀两码最新版本更新内容 | 今天3d开机号和试机号金码 | 财神爷三天计划必下更新 | 3d今天推荐号码是多少 | 3d专家最新最准专家预测汇总 | 今晚了3d开奖结果 | 今天3d专家推荐号 | 中国杀码王绝对 | 3d专家预测最准确最新今晚预测号 | 今天的3d开机号和试机号中奖号 | 中国福彩3D独胆专家精准预测 | 至尊计划王三天计划独胆 | 3d中间最小两码差值振幅走势图 | 3d推荐号今晚专家预测 | 中国杀码王绝对 | 3d最准专家预测号 | 3d专家预测最准确最新今天牛彩 | 3d定胆准确率100 | 3d今晚预测最准确一注 | 今天3d必出一注 | 3d专家预测最准最新今天 | 至尊计划王三天计划独胆 | 3d今晚必下一个胆 | 今天3d专家推荐重点号码 | 今晚上3d开奖号码 | 今晚的3d| 3d最准预测专家推荐 | 3d试机号后专家预测推荐汇总 | 三d十拿九稳预测号码 | 3d今晚预测直选四注 | 手机牛彩网3d预测 | 3d百十和值尾振幅走势图 | 唐龙3d预测今日出号点评 | 3d双胆大师今天 | 于海滨海3d预测牛彩网 | 试机号开机号金码关注号对应码3d | 牛彩网预测专家3d | 中国福彩3D独胆专家精准预测 | 老炮子3d直选三注 | 唐龙预测一胆今天 | 顶级胆神双胆下一 | 正版真精华布衣天下今天推荐号码 | 3d最准确的专家预测 | 3d千禧开机号试机号 | 3d太湖字太湖字谜 | 3d今天专家预测推荐号码 | 3d今天的推荐号 | 3d预测最准确的专家预测软件 | 3d丹东太湖字谜今天的 | 3d藏机图正版藏机图全图牛彩网 | 3d小龙一句定三码今日字谜天中图 | 于海滨海3d专家预测今天 | 解3d太湖钓叟字谜汇总 | 3d直选至今未出号 | 3d独胆专家预测 | 3d预测专家精准推荐 | 3d预测专家汇总预测 | 3d最新基本走势图表 | 今于海滨3d预测今天牛彩网 | 财神爷独胆三天计划,就这么牛 | 铁娘子三天计划独胆必下300 | 3d于海滨上的今天杀码 | 3d最新专家预测汇总大全 | 千禧3d开机号试机号金码 | 3d专家预测最准最新 | 3d最近1000期走势图表综合版图片 | 3d精准预测最准的专家直选 | 3d最精准的专家预测精选 | 3d百十和尾振幅走势图走势 | 3d今晚精准一注推荐 | 杀码是什么意思 | 3d天地杀码图 | 今天3d牛彩网专家预测 | 陈华今晚就赌一胆今天最新 | 3d独胆王定位独胆定位 | 今日3d开机号和试机号列表三十期 | 三地千禧试机号关注金码对应码 | 于海滨3d杀码 | 三d预测专家最新推荐 | 3d北斗专家北斗预测今天079期3d | 3d精选号码推荐今天最新 | 3d今天开机号和试机号金码对应码 | 于海滨今天杀码3d | 投资计划3d乐彩论坛 | 3d预测专家最准确的专家预测今晚 | 3d村独胆双胆3 | 3d推荐号今日预测 | 3d今晚精选一注 | 3d专家预测最准确最新今天 | 3d预测最准确的专家 | 今天晚上3d开奖 | 3d今天预测最准确专家 | 3d独胆高手 | 今于海滨点评专家一语定胆 | 3d最准确最新专家预测 | 于海滨3d预测今天 | 于海滨3d今晚预测号码 | 3d牛彩网专家预测 | 卫星电话最建议买的三个型号 | 3d独胆王定位独胆定位 | 中国福彩3D独胆当天精准预测最新 | 3d预测专家最准确 | 今晚3d开奖结果是 | 今天3d开机号 和试机号 查询结果 | 3d最精准专家预测汇总今天 | 3d基本走势图表新浪网 | 3d预测最准确专家预测牛彩网 | 大老人3d预测牛彩网推荐 | 3d晶晶必下一独胆今天 | 3d北斗专家北斗预测今天079期3d | 3d于海杀码图 | 3d顶级胆神双胆 | 3D独胆团队走势 | 3d太湖字谜图谜总汇 | 3d今晚精选预测一注 | 3d白娘子跨度字谜汇总今天牛彩网 | 3D独胆团队走势 | 3d晚秋和值谜彩吧图库 | 中国福彩3D独胆内部走势最新 | 3d专家推荐最新预测 | 3d免费专家预测推荐今天最新 | 3d于海滨上的今天杀码 | 3d字谜汇总大全总汇牛彩网开机号 | 中国福彩3D独胆下期最新分析 | 3d预测最准的专家预测 | 3d今日预测最准专家预测 | 助赢计划软件免费版下载安装 | 张克永3d预测今天 | 3d一语定胆太湖字谜 | 中国杀码王绝对 | 今日3d马后炮解太湖字谜 | 3d千禧金码试机号关注码开奖号 | 3d预测今晚最准专家预测号码 | 3d专家预测最准确今天 | 3d于海滨上的今天杀码 | 3d预测最准的专家预测 | 3d专家最新最准专家预测汇总 | 福彩3D独胆内部走势 | 3d老虎独胆| 3d专家预测号码最准确 | 3d精准预测最准的专家 | 今天晚上三d开奖结果 | 3d今晚开奖号走势图 | 3d个位走势图图表 | 三字诀太湖三字诀字谜 | 至尊计划王三天计划独胆 | 中国福彩3D独胆今日预测最新 | 3d开机号和试机号八仙选号 | 于海滨专家预测3d | 3d今天开机号和试机号码 | 我是毒胆王,今晚独胆 | 陈华3d今晚就赌一个胆 | 千禧试机号关注金码是什么 | 今日3d专家预测号最准确 | 于海滨今日杀码图最新 | 3d今天开机号试机号金码关注号 | 开机号试机号3d今天 | 3d财神爷独胆双胆双飞计划三天 | 千禧今晚3d试机号关注码金码 | 3d推荐号今晚专家预测 | 3d和值走势图表综合版 | 福彩3D独胆下一期必中 | 排三十拿九稳今天预测 | 于海滨点评专家一语定胆保真版 | 3d晶晶必下一独胆今天 | 3d专家预测推荐 | 3d廊坊鸿运 | 3d最准确预测专家 | 3d预测最准的专家预测 | 3d推荐号3d推荐号码 | 福彩3D独胆下期推荐预测 | 今日3d开机号和试机号关注码千禧 | 3d专家推荐号最准确的推号 | 3d专家预测推荐汇总 | 3d独胆陈华今晚就赌一个胆 | 3d十大专家精准预测汇总 | 3d今天专家预测推荐号码 | 3d专家最精准的推荐 | 今天3d专家推荐重点号 | 3d开机号与试机号金码 | 牛彩网3d专家预测汇总 | 3d预测专家最准最新 | 3d预测今晚最新最准确 | 3d藏机图正版藏机图太湖字谜 | 周星星3d预测手机牛彩网 | 3d今天专家推荐号码 | 今于海滨3d预测今天单线联系 | 3d廊坊鸿运正版推荐 | 于海滨海3d专家杀码 | 天齐网3d必中两胆今天 | 中国福彩3D独胆当天走势最新 | 牛彩网3d专家预测 | 千禧试机号关注号金码是什么 | 3d开机号和试机号今天千禧 | 3d预测专家推荐最准确 | 3d今晚专家推荐预测重点号码 | 3d中间最小两码差值振幅走势图 | 今晚3d开奖号是多少 | 3d独胆双胆独胆3d之村 | 3d同期历史对比 | 三d预测专家最新推荐 | 今天的3d开奖号是多少 | 3d藏机图正版藏机图 | 今天3d推荐号码今晚预测 | 3d真帝王杀码图 | 排五奖号| 今晚3d专家推荐号码是多少 | 唐龙一语定胆最新 | 财神爷三天计划必下更新 | 近30期3d开奖结果 | 3d最新最准专家预预测 | 3d今晚推荐号 | 福彩3D独胆团队必中 | 3d最准确的专家预测 | 3d最新最准预测号码 | 3d百个差振幅走势图近100期 | 3d布衣独胆王 | 3d专家预测于海滨 | 3d专家预测今天最新准确号 | 3d今晚专家预测推荐号 | 今天三字诀太湖字谜 | 飞向阳光龙头凤尾今天最新消息 | 3d预测专家汇总预测 | 近100期3d开机号和试机号 | 排五预测号专家 | 看彩大亨看独胆双胆预测 | 今晚最准一注3d | 今晚3d结果开奖号码 | 今日3d专家精准推荐 | 3d李明启最新预测今天 | 3d百位十位个位走势图 | 3d最精准专家预测汇总今天 | 于海滨点评加专家一语 | 福彩3D独胆大神精准预测最新 | 3d今晚最准最新专家推荐号 | 3d最准确的专家预测 | 杀码大全汇总 | 3d玩彩老头预测今天号码 | 今天晚上的3d开奖结果 | 3d杀码专家杀码天齐网 | 中国福彩3D独胆老师分析最新 | 3d今天专家推荐号码推荐 | 三地千禧开机号试机号金码关注 | 排三十拿九稳今天预测 | 中国福彩3D独胆今日走势最新 | 3d和值走势图表综合版 | 3d预测号码最准确专家预测 | 3d今晚预测直选一注 | 于海滨一语定胆专家点评 | 3D独胆实时推荐 | 3d彩界元宝就看一个独胆 | 3d下期专家预测 | 3d小龙一句定三码今日字谜天中图 | 千禧试机号金码关注 | 3d今晚预测精准 | 3d今日专家推荐号 | 牛彩网3d预测 | 3d紫云涧专家预测推荐 | 排3太湖钓叟字谜三字诀 | 3d专家预测最准双胆 | 今日3d藏机图正版藏机图134 | 3d预测专家最准确的专家预测 | 今晚3d专家预测精选一注 | 3d和值振幅走势图带连线坐标 | 助赢计划软件免费版下载安装 | 3d最近1000期走势图表综合版图片 | 3d陈华今晚独胆推荐 | 3d詹天佑最新预测今天 | 3d杀码大全| 于海滨杀码图牛彩 | 福彩3D独胆大神必中最新 | 3d专家预测最准今天 | 3d今晚专家预测最准确一注 | 张克永专家3d预测 | 3d今晚预测 | 中国福彩3D独胆内部走势最新 | 3d试机号开机号今天晚上金码号 | 3d预测专家最准最新 | 今天3d牛彩网专家预测 | 3d条件预测专家专区 | 3d千禧开机号和100期试机号 | 今晚3d预测推荐一注 | 于海滨杀码图 | 3d试机号开机号近50期 | 3d精准预测最准的专家直选 | 今天3d试机号开机号牛彩网 | 3d预测专家最准确的专家预测今晚 | 3d开机号试机号今天开奖号 | 3d预测最准的专家预测 | 3d詹天佑预测分析牛彩网 | 3d和值推算公式 | 3d今晚预测最准确一注今天 | 今天3d千禧试机号关注号金码号 | 福彩3D独胆独家预测最新 | 于海滨点评专家一注定胆保真版 | 3d独胆双胆独胆3d之村 | 3d藏机图天齐正版藏机图 | 十拿九稳的最新预测 | 3d今晚必中三个号码预测 | 于海滨海3d预测免费每日精选3d开奖号 | 3d今天开机号和试机号开奖结果 | 3d最准确预测100%一注 | 3d专家今天推荐号 | 3d今天专家预测最准确 | 三d预测专家预测今天最新 今于海滨3d预测 | 3d精选号码推荐今天最新 | 3d今晚预测直选四注 | 3d最新专家预测汇总大全 | 3d十位走势图振幅 | 今晚3d预测总汇 | 3d预测最准确的专家预测软件 | 3d牛彩网和值走势图 | 3d今天专家推荐号码推荐 | 3d于海杀码图 | 今晚3d号码开奖结果多少 | 于海滨一语定胆天齐网 | 福彩3D独胆最新命中率 | 3d四码直选多少钱一注 | 3d预测詹天佑 | 福彩3D独胆老师走势最新 | 3d詹天佑最新预测今天 | 3d牛彩网断组预测 | 太湖马后炮3d钓叟字谜 | 3d今晚最准专家预测号码 | 3d上下五千年专家预测 | 3d条件预测专家专区 | 3d试机号后专家预测推荐汇总 | 3d今晚必出号预测 | 今日3d开机号和试机号列表三十期 | 3d今天开机号试机号金码关注号 | 三d预测最准十专家预测今晚 | 3d八哥图库总汇d字谜图谜总汇大全 | 3d专家预测最准确最新新闻 | 3d牛彩网专家预测 | 3D独胆实时推荐 | 3d太湖钓叟字谜汇总正版藏机图 | 唐龙点评每日一胆龙 | 于海滨3d今晚预测号码 | 3d今晚专家推荐预测重点号码 | 3d今晚专家预测推荐号 | 今晚3d预测开奖号码推荐 | 3d下期预测最精准的一注号码 | 3d十大专家汇总精选一注 | 于海滨今日杀码图最新 | 彩宝贝十大专家杀蓝号 | 3d预测最准确的专家 | 至尊计划王三天计划独胆 | 3d免费精准直选三注 | 3d杀码高手 | 今日3d马后炮解太湖字谜 | 个位杀码王 | 3d今晚专家预测最准确号码 | 3d预测专家最准最新 | 3d藏机图正版藏图汇总大全 | 卫星电话最建议买的三个型号 | 今晚必中一注i | 3d今日开机号和试机号及关注码 | 最准杀码王p3 | 3d今晚开奖号结果 | 千禧3试机号金码关注码金码 | 今晚最全3d晚间字谜汇总192期 | 3d玩彩老头预测今天号码 | 3d杀码更准确 | 3d中间值振幅走势图之家 | 3d今天最准专家预测 | 3d专家预测号码推荐今天 | 3d白娘子跨度字谜汇总今天牛彩网 | 3d开机号和试机号今天 今晚 | 布衣3d独胆双胆王 | 3d杀码一定牛 | 排3藏机图正版藏机图今天 3d八哥图库总汇d字谜图谜总汇大全 | 3d真实的谎言字谜总汇正版 | 3d今晚必中一注 | 3D独胆明日分析 | 3d打一个独胆中了多少钱 | 3d汇总牛彩网| 3d金码开机号和试机号 | 孟庆会老师3d分析预测 | 3d开心毒胆独胆王 | 3d今日开机号和试机号及关注码 | 今晚3d预测号 | 于海滨今日预测号 | 3d预测最准确专家预测 | 今晚3d试机号千禧试机号金码关注 | 专家预测3d号码准确 | 今于海滨3d预测今天牛彩网 | 今天3d开机号 试机号是多少 | 3d推荐最新最准专家预测 | 今天3d于海滨预测 | 3d预测专家推荐号码 | 3D独胆实时分析 | 詹天佑最新预测3d | 3d今晚试机号开奖号 | 3d今晚最准的一注 | 福彩3D独胆老师分析最新 | 于海滨专家一语定胆十每日 | 今晚3d开奖号试机号 | 今日3d专家预测号最准确 | 今天3d字谜3d一句定三码3d和值谜 | 3d带连线专业版走势图表 | 3d今晚最准专家推荐号码 | 于海滨杀码图今天最新 | 三字诀太湖三字诀字谜 | 三d预测最准十专家预测今晚 | 3d预测最准确专家预测 | 铁人铁胆定位包星 | 3d的预测号是多少 | 今晚3d预测最准一注 | 3d预测总汇手机牛彩网 | 七爷独胆今晚一个胆 | 今天3d牛彩网专家预测 | 福彩3D独胆下期预测 | 3d千禧开机号试机号 | 福彩3D独胆大神精准预测 | 3d今晚专家预测最准确号码 | 3d最精准的专家预测精选 | 3d十大专家预测汇总 | 3d长中剑客预测今天 | 千禧三地试机号对应码金码 | 3d精准预测最准的专家 | 于海滨3d预测专家今天 | 3d独胆双胆独胆3d之村 | 3d今晚上预测号码 | 陈华3d今晚就赌一个胆 | 三d字谜总汇大全 | 3d晶晶必下一独胆今天 | 3d预测专家最准最新 | 3d今晚专家预测最准确一注 | 正版真精华布衣天下今天推荐号码 | 3d定胆王独胆定位 | 3d谜语解太湖字谜 | 十拿九稳的最新预测 | 今日精准预测推荐3d号码 | 3d预测 下一期 3d预测专家 3d预测 | 今天3d开机号 试机号是多少 | 3d百十和值尾振幅走势图 | 3d最新基本走势图表 | 3d必中直选 | 3d预测最新最准专家 | 牛人高手【3d精选】 | 3d四码直选多少钱一注 | 3d百十和尾振幅走势图走势 | 3d专家杀码| 3d跨度遗漏值振幅走势图彩经网 | 詹天佑3d今天预测分析 | 3d预测今晚推荐号 | 3d免费专家预测推荐今天最新 | 3d基本走势图全部 | 马后炮解3d太湖字谜总汇大全 | 3d今天专家预测推荐号码 | 福彩3D独胆下期预测 | 3d就打一个胆中了多少钱 | 陈华今晚就赌一个胆今天最新更新内容 | 自创3d绝杀四码方法细节 | 3d最准确的预测方法 | 3d精准预测专家预测 | 3d今天开机号 试机号查询 | 今日3d大老人预测号 | 3d专家预测最准确今天南方双彩网 | 3d预测最准专家预测牛彩网 | 3d今天最新最准专家预测最 | 今日排三太湖钓叟字谜三字诀 | 3d今晚上专家推荐号 | 3d三天计划独胆王 | 天齐藏机图汇总正版藏机图 | 3d今天专家预测最准 | 3d预测最准最新准专家预测号码 | 3d今晚出的什么号 | 3d专家预测最准确最新汇总 | 于海滨3d杀码图 | 推荐一注3d号码 | 3d今日预测推荐号 | 3d 今天 试机号开机号3 | 3d百个和值尾振幅走势图 | 3d陈华今晚就赌一胆o11预测 | 3d跨度振幅走势图3d专家 | 3d七码复式最准专家 | 3d推荐号今晚专家预测 | 福彩3D独胆老师杀号最新 | 3d预测最准确的专家预测软件 | 太湖字谜太湖钓叟三字诀 | 3d预测今晚最准专家预测号码 | 3d预测专家精准推荐 | 3d于海滨上的今天预测保真 | 3d杀码大全 天齐网 于海滨3d最新预测 千禧3d试机号金码关注码对应码今晚 | 3d今天开机号试机号3 | 苦命人3d推荐一注 | 今天三字诀太湖字谜 | 3d预测最准最新准专家预测号码 | 3d字谜太湖钓叟三字诀今天 | 3d专家最新最准今天预测 | 于海滨3d彩吧图库 | 3d开机号和试机号八仙选号 | 3d开机号和试机号码牛彩网 | 3d双胆独胆推荐 | 今日3d一句定三码最准和值谜 | 3d试机号今晚牛彩网 | 十拿九稳预测分析 | 3d今晚十大专家预测汇总 | 3d最小值振幅走势图3之家 | 太湖字谜马后炮3d总汇 | 3d专家预测最准确今天南方双彩网 | 3d专家预测精选一注 | 3d十大专家预测汇总 | 今日3d预测号码推荐 | 3d必下胆| 中国福彩3D独胆最新推荐 | 3d今天开机号和试机号码 | 3d开机号试机号码牛彩网 | 3d专家预测号码推荐今天 | 3d十大专家杀一码汇总 | 3d专家预测最准确最新今晚预测 | 3d今天预测最准确专家 | 手机牛彩网3d预测 | 3d专家预测最准确最新今天牛彩 | 3d最准专家预测号 | 3d马前屁解太湖字谜 | 三天计划3d独胆必出论坛 | 3d今晚开奖结果号码是 | 今天3d金码试机号对应码开机号 | 苏会文3d预测今天推荐 | 今天3d试机号开机号是什么 | 3d今日预测最准专家预测 | 北斗3d今日专家预测推荐 | 3d专家预测最准确最新新闻 | 3d预测专家推荐最准确 | 3d预测专家推荐号码 | 3d今晚推荐号码最新 | 今天3d开机号和试机号多少? | 3d今天专家预测号码 | 3d今天预测最准确专家 | 3d预测最准确专家预测 | 中国杀码王 | 3d专家最新最准预测 | 3d和值尾金木水火土走势图 | 3d预测最准确的专家预测软件 | 牛彩网3d预测| 3d千禧开机号和试机号码 | 李明启3d预测最新号码 | 3d今天开机号和试机号322 | 3d今天开机号和试机号码200 | 毒胆牛人三天计划今天 | 3d预测专家最准最新 | 3d百十和值尾振幅走势图 | 詹天佑3d预测| 今晚3d专家推荐号码是多少 | 3d走势图基本走势图表 | 中国福彩3D独胆独家必中最新 | 3d今天最准专家预测 | 3d专家预测汇总牛彩网收集汇总 | 3d预测专家推荐号码 | 今天3d必出一注 | 3d预测最准确专家预测牛彩网 | 铁人铁胆3d定位包星 | 牛彩网近30期3d开机号试机号 | 3d十大专家预测汇总 | 3d专家预测最准确最新今晚预测 | 3d预测最准确专家预测 | 3d专家最新最准预测 | 3d各路专家预测汇总大全最新 | 3d预测最准的专家预测 | 3d今天专家预测推荐号码 | 三d预测汇总 | 3d今天预测汇总 | 今日詹天佑3d预测 | 詹天佑3d预测 | 3d今天预测最准确专家 | 于海滨精准杀码图 | 3d独胆专家推荐独胆 | 3d专家推荐号码 | 3d推荐号今晚专家预测 | 3d开机号和试机号200期列表 | 3d预测号码最准确专家预测 | 3d专家预测最准确最新汇总 | 3d今晚必中一注一注 | 3d布衣双胆独胆王 | 3d牛彩网专家预测汇总 | 牛彩网杀码图汇总 | 3d双胆独胆非常稳 | 3d专家今天推荐号 | 3d开奖号走势图表 | 牛彩网3d预测分析汇总大全 | 3d单个冷号最大遗漏 | 3d上下五千年专家预测 | 3d预测号码最准确专家预测 | 3d楚人今晚预测今天 | 3d专家今日推荐号码 | 廊坊鸿运3d推荐今天 | 3d预测专家推荐号码 | 3d跨度振幅3d之家走势图 | 3d杀码图谜_专区杀码 | 祖师爷独胆三天计划 | 3d最准确的专家预测 | 三d十拿九稳预测号码 | 3d和值尾振幅走势图50期 | 今晚3d试机号千禧试机号金码关注 | 周星星3d预测手机牛彩网 | 3d独胆双胆下一 | 3d千禧今晚试机号码 | 3d百个差振幅走势图近100期 | 三地千禧关注码试机号 | 3d字谜图谜总汇 | 3d精准预测推荐 | 3d彩宝贝试机号今天最新 | 3d太湖解字谜 | 3d和值和尾振幅走势图 | 3d预测今晚推荐号 | 3d免费预测 | 太湖字谜太湖钓叟三字诀 | 今日3d专家预测号码推荐 | 3d北斗专家北斗预测今天079期3d | 3d专家推荐最精准的号码 | 3d 今天 试机号开机号3 | 今天专家推荐号码3d | 今晚牛彩网3d预测汇总 | 今晚3d预测最准一注 | 3d专家预测最准牛彩网 | 3d最准确预测100%一注 | 钱王老头点评牛彩网 | 3d预测专家最准确的专家预测今晚 | 千禧金码关注码试机号 | 福彩3D独胆最新推荐最新 | 3d今晚开奖结果号码是 | 3d预测牛彩网 | 福彩3D独胆下一期必中 | 3d免费预测汇总牛彩网 | 3d今晚试机号牛彩网 | 3d今晚必下一个胆 | 3d千禧开机号试机号关注金码对应码 | 3d太湖字谜一语定胆 | 马后炮解今日太湖字谜三字诀 | 3d预测专家准确推荐 | 中国福彩3D独胆专家推荐最新 | 今天3d专家推荐重点号码 | 大老人3d预测牛彩网推荐 | 今日正版3d藏机图全部汇总 | 3d和值尾振幅走势图200期 | 高手看3d经典独胆组合 | 3d今天精选五注 | 独胆三天计划 | 福彩3D独胆最新命中率 | 3d太湖钓叟字谜三字诀 | 3D独胆下期推荐走势最新 | 3d专家预测最新 | 3D独胆大神命中率最新 | 3d开机号和试机号码牛彩网 | 3d今晚专家预测最准确一注 | 3d专家预测汇总牛彩网彩摘收集 | 3d最准确预测专家 | 3d开机号和试机号今天 今晚 | 3d专家预测最准确最新今天牛彩 | 3d预测最准专家预测牛彩网 | 今天3d字谜解太湖字谜 | 铁娘子三天计划独胆必下300 | 3d最准预测专家预测大 | 3d中间值振幅走势图之家 | 3d牛哄哄解太湖字谜今天 | 3d今天专家预测号码最准确 | 3d预测最准确的专家 | 3d今天的开机号和试机号查询 | 3d专家预测最准最新今天 | 3d今晚预测最准确一注 | 3d专家预测推荐汇总 | 小林3d最新预测今天 | 3d预测牛彩网预测汇总 | 3d千禧开机号试机号关注金码 | 3d跨度金木水火土五行走势图 | 3d独胆必下一独胆准 | 于海滨专家预测 | 福彩3D独胆下一期预测最新 | 3d预测詹天佑最新 | 3d形态预测静态版 | 3d预测最新最准专家推荐号码 | 3d号码预测| 福彩3D独胆下期推荐预测 | 3d十大专家汇总精选一注 | 3d专家推荐今天 | 3d预测最准专家预测牛彩网 | 3d今晚的开奖号码 | 今晚3d太湖字谜 | 3d顶级胆神双胆 | 3d今日预测推荐号 | 今天3d开机号和试机号全部 | 3d今天专家预测号码 | 3d今天最准专家预测 | 3d百十和值尾振幅走势图 | 3d形态预测静态版 | 于海滨3d预测专家今天 | 三d独胆| 3d今晚最精准专家 | 太湖3d字谜图谜总汇 | 辽宁独胆王三天计划 | 排三杀码专家定位杀码天齐网 | 3d今晚最准专家预测号码 | 千禧3d试机号金码关注码今天 | 3d预测詹天佑最新 | 3d詹天佑预测分析牛彩网 | 3d专家推荐号 | 3d专家预测推荐汇总 | 3d今晚上专家推荐号 | 最准杀码王p3 | 排3太湖钓叟字谜三字诀 | 3d太湖钓叟字谜汇总正版藏机图 | 3d专家最新最准专家预测汇总 | 3d今天专家推荐号码 | 三码合一是什么意思? | 3d试机号历史出现情况天齐网 | 3D独胆下期推荐预测最新 | 3d今日预测最准专家预测 | 于海滨一语定胆《保真》 | 中国福彩3D独胆今晚走势最新 | 3d推荐号今晚专家预测 | 3d今天专家推荐号码 | 于海滨专家3d今天预测 | 3d陈华今晚独胆推荐 | 十拿九稳专家最新预测 | 祖师爷独胆三天计划 | 今天太湖字谜3d字谜太湖钓叟 | 今日3d专家预测总汇 | 今日3d杀码最新 | 3d今晚预测最准确一注 | 3d计算公式精准100%计算 | 排三太湖钓叟字谜三字诀 | 今天3d马后炮解太湖字谜汇总 | 3d十大专家杀跨度汇总 | 今日3d太湖字谜每天更新 | 3d十大专家预测汇总 | 3d开机号和试机号码牛彩网 | 3d开机号和试机号今天 今晚 | 3d今晚专家预测最准确号码 | 3d杀码百位十位个位 | 铁人铁胆包星定位今天最新结果 | 3d开心毒胆独胆王 | 小红人的计划三天计划独胆 | 于海滨预测3d号 | 今于海滨3d杀码 | 3d推荐号今日预测 | 于海滨3d最新预测 | 3d带专业连线走势图 | 3d开机号和试机号今天 今晚 | 3d今天断组预测 | 布衣3d独胆双胆王 | 3d紫云涧专家预测推荐 | 3d北斗专家北斗预测今天079期3d | 中国福彩3D独胆实时精准预测 | 3d白娘子跨度字谜汇总今天牛彩网 | 马后炮解3d太湖字谜总汇大全 | 3d双胆| 3d彩报图今天的第五版 | 3d今晚专家推荐预测重点号码 | 3d开奖号走势图表 | 3D独胆大神命中率最新 | 太湖马后炮3d钓叟字谜 | 三地千禧试机号关注金码对应码 | 3d故事小王双胆 | 3d太湖字谜官网 | 3d专家预测最准确今天南方双彩网 | 福彩3D独胆今晚必中最新 | 3d最新专家预测汇总大全 | 排三杀码想要 | 今天3d字谜3d一句定三码3d和值谜 | 3d直选三注 | 3d毒毒毒胆胆胆中中中 | 3d三胆推荐 | 3d预测总汇手机牛彩网 | 3d预测号码最准确专家预测 | 3d今天最新最准专家预测最 | 3d最准的预测专家 | 3d最准专家预测号今晚3d试机号 | 今晚3d预测推荐一注 | 马后炮解3d太湖钓叟字谜总汇大全 | 3d今晚开机试机号 | 天才计划三天计划独胆 | 3d小鱼图今日背面字谜 | 3d专家推荐今天 | 3d预测最准确专家预测牛彩网 | 于海滨今日杀码图最新 | 詹天佑3d最新预测今天 | 3d今晚最准最新专家推荐号 | 今天3d开机号试机号对应码列表 | 3d推荐最新最准专家预测 | 3d预测最准确的专家预测软件 | 福彩3D独胆下期分析 | 3d老炮子直选三注 | 3d布衣独胆双胆必下一 | 千禧金码关注码试机号 | 今天三d专家推荐号码 | 3d基本走势图结果 | 3d武当玉女掌门一句定三码字谜 | 投资计划3d乐彩论坛 | 3d最精准专家预测汇总今天 | 3d藏机图天齐正版藏机图 | 3d预测一注号推荐今晚 | 福彩3D独胆下一期预测最新 | 于海滨精准杀码图 | 今日太湖字谜3d字谜太湖钓叟 | 3d北斗专家北斗预测今天079期3d | 3d今晚最准最新专家推荐号 | 今日3d开机号和试机号关注码千禧 | 3d专家推荐最精准的号码 | 3D独胆下一期精准预测 | 3d基本走势图表完整版 | 3d最准确的专家预测 | 中国福彩3D独胆下期分析最新 | 3d预测专家最准确的专家预测今晚 | 铁人铁胆3d定位包星预测 | 3d谜语解太湖字谜 | 三d预测专家最新推荐 | 今天的3d太湖字谜图 | 3d今晚预测 | 今晚3d推荐号 | 3d预测最准专家预测号码 | 今晚3d预测最准一注 | 看彩大亨看独胆双胆预测 | 3d今晚专家预测推荐 | 3d试机号后专家推荐汇总 | 3d万能四码走势图表 | 3d开心毒胆独胆王 | 3d双胆图 | 今天太湖字谜三字诀是什么 | 3d专家预测最准最新今天 | 3d十大专家汇总精选一注 | 今晚钱王点评推荐号 | 3d下期预测最精准的一注号码 | 3d中国准神双胆 | 3d带连线走势图(专业版) | 3d预测专家推荐号码 | 助赢计划软件官网版下载 | 3d最新最准预测号码今天 | 【福星】3d单挑10注组 | 今天3d推荐号码今晚预测 | 3d今晚推荐号码最新 | 3d专家预测最准确今天上一期 | 卫星电话最建议买的三个型号 | 于海滨专家预测3d | 3d推荐号今晚专家预测最准确 | 3d和值基本走势图表 | 3d最新专家预测汇总大全 | 3d今晚专家推荐号 | 今晚3d天宇一句定三码字谜 | 3d今晚必中一注一 | 3d千禧试机号开机号对应码关注号 | 彩吧3d开机号 | 今天3d开机号试机号码 | 3d太湖字谜总汇总(正版) | 今晚3d推荐号 | 3d预测最准最新准专家预测号码 | 3d最新专家预测汇总大全 | 孟庆会老师3d预测彩吧图库今天 | 3d今天开机号 试机号查询 | 于海滨海3d专家预测今天 | 今天最准3d预测号 | 3d于海滨预测预测牛彩网 | 3d今晚预测3d更准 | 排三太湖钓叟字谜三字诀 | 今日排五专家推荐与预测 | 今天3d开机号 和试机号 查询结果 | 真实的谎言3d字谜追加和值谜 | 3d杀码十大专家天齐网 | 3d试机号后专家预测推荐汇总 | 专家3d预测汇总 | 《金银胆神》金胆银胆3d最新一期开奖 | 今晚3d和值推荐 | 中国福彩3D独胆明日推荐最新 | 3d太湖一语定胆字谜论坛 | 3d开机号试机号奖号 | 3d十大专家推荐号码汇总 | 3d定胆技巧准确率100% | 3d陈华今晚独胆推荐 | 3d詹天佑3d预测分析 | 3d最准预测号 | 今天3d詹天佑预测分析 | 3d预测专家最准确的专家预测今晚 | 千禧试机号金码关注号对应码杀码 | 3d今晚出的什么号 | 3d字谜太湖解字谜 | 3d独胆双胆专家预测网 | 6+1专家预测号 | 小薇3d预测今天推荐 | 牛彩网3d走势图表 | 3d最精准的专家预测 | 3d万能大底共250注直选 | 中国福彩3D独胆最新走势 | 宇海宾杀码图 | 3d太湖字谜三字诀 | 3d专家最新最准专家预测 | 3d今天专家预测最新最准 | 3d太湖钓叟字谜三字诀乐彩论坛 | 3d老炮子直选三注 | 今晚3d精准一注直选 | 中国福彩3D独胆独家杀号 | 3d今日预测最准专家预测 | 3d和值走势图彩宝网 | 三3d太湖字谜| 三d独胆 | 飞向阳光龙头凤尾预测 | 3d今晚最准最新专家推荐号 | 3d推荐号今日预测 | 3d专家预测推荐号码 | 3d今晚专家预测最准确号码 | 3d牛彩网预测 | 3d今天预测汇总 | 3d免费专家预测推荐今天最新 | 于海滨精准杀码图 | 3d今晚专家预测推荐 | 于海滨3d预测免费 | 神仙姐姐杀尾 | 3d独胆必下一独胆准 | 十拿九稳预测最准100% | 中国福彩3D独胆下期推荐 | 于海滨点评专家一注定胆保真版 | 3d预测专家最准最新 | 3d专家预测最准最新 | 3d预测最准专家预测牛彩网 | 3d预测专家汇总预测 | 3d最新最准预测号码今天 | 3d之家北斗今日预测 | 3d正版太湖字谜图谜 | 今晚3d开奖结果是 | 3d藏机图天齐正版藏机图 | 福彩3D独胆下期推荐最新 | 福彩3D独胆团队必中最新 | 3d今晚预测最新最准确号码牛彩网 | 3d百位单选振幅走势图 | 3d最新最准专家预预测 | 3d预测最准最新准专家预测 | 3d彩界精英独胆双胆 | 福彩3D独胆高手分析 | 3d詹天佑最新预测今天 | 福彩3D独胆下一期命中率最新 | 3d独胆必下一独胆布衣正 | 3d开机号今天试机号30期 | 试机号开机号金码关注号对应码3d | 今天3d专家推荐重点号 | 3d太湖字谜每天更新 | 3d今晚专家预测 | 3D独胆大神命中率最新 | 詹天佑今日3d预测 | 3d今晚开机号试机号金码关注码今天 | 3d藏机图正版图汇总 | 3d预测专家精准推荐 | 3d村独胆双胆3 | 十拿九稳今天预测专家 | 3d今晚最准专家预测号码145 | 今天3d字谜解太湖字谜 | 今于海滨3d预测彩吧图 | 3d最新专家预测推荐 | 3d今晚专家预测推荐号 | 3d最精准的专家预测 | 3d中间号走势图振幅走势图 | 3d专家今天预测一注 | 陈华今天就赌一个胆3d | 3d预测今晚最准专家预测号码 | 3d今天开机号和试机号是多少 | 3d北斗专家北斗预测今天079期3d | 今日3d马后炮解太湖字谜 | 3d十大专家汇总精选一注 | 3d彩报图今天的第五版 | 3d彩宝网开机号和试机号 | 3d栋栋预测牛彩网 | 3d十大专家双胆预测汇总 | 3d今晚专家预测最准确一注 | 今天的3d推荐号码是多少 | 今天p3藏机图正版藏机图 | 廊坊鸿运3d推荐今天 | 3d专家最新最准专家预测汇总 | 千禧3d试机号关注码今天 | 三d预测专家预测今天最新 3d专家预测最准最新今天 | 3d专家最新最准专家预测汇总 | 3d双飞大师双胆组合 | 3d今晚最准专家预测号码 | 3d于海滨一语定胆今天 | 今于海滨3d杀码图 | 3d预测 下一期 3d预测专家 3d预测 | 3d今晚最准专家推荐号码 | 双胆王看双胆3d | 三地千禧开机号试机号金码关注 | 2014年359期3d焰舞字谜 | 今晚3d号码开奖结果多少 | 铁人铁胆定位包星 | 最准的3d专家预测 | 3d预测推荐汇总牛彩网采摘收集 | 最准确3d专家预测 | 3d北盟天机图藏机图 | 福彩3D独胆团队必中最新 | 3d胆王专家定十位 | 彩界毒胆大师一枚毒胆 | 3d预测最新最准3d之家 | 3d今天开机号和试机号开奖结果 | 中国福彩3D独胆团队命中率最新 | 天齐网3d必中两胆今天 | 铁人铁胆定位包是预测 | 中国福彩3D独胆最新必中 | 3d 图谜字谜总汇 | 今天3d开机号 试机号是多少 | 于海滨3d预测免费每日精选 | 铁人真胆一句定三码3d字谜彩搜网 | 3d今天开机号和试机号码300 | 3d直选形态走势图彩宝网 | 于海滨3d彩吧图库 | 最准3d预测专家推荐号 | 3d牛彩网.| 今日3d一句定三码最准和值谜 | 3d今晚推荐号码最新 | 3d预测最准确的专家预测软件 | 财神爷独胆三天计划,就这么牛 | 钱王点评钱王老头预测 | 3d今晚最准最新专家推荐号 | 中国福彩3D独胆实时精准预测 | 3d孔方来萃解太湖字谜 | 3d今晚最准专家预测号码145 | 3d万能三码中奖秘诀 | 3d开奖号码近50期 | 快8今晚最毒胆推荐 | 3d海滨点评一语定胆今天最新推荐 | 3d今天专家预测推荐号码 | 3d专家预测推荐 | 3d今晚预测最新最准确号码牛彩网 | 3d资料大全免费 | 今天3d太湖钓叟字谜三字诀 | 于海滨海3d专家预测 | 3d牛彩网专家预测 | 3d今晚惊天一注预测 | 免费计划软件 | 3d今天的试机号开机号是多少 | 3d杀码高手| 投资计划独胆三天计划 | 3d预测号最新最准牛彩网 | 3d推荐号今晚专家预测 | 3d预测最准专家预测 | 今日3d杀码最新 | 3d推荐号今晚专家预测 | 3d今晚最准专家预测号码145 | 开心笨小孩3d独胆 | 3d最准预测专家预测大 | 3d和值走势图彩宝网 | 专家精准预测3d号 | 陈华今晚就赌一胆今天最新 | 今天3d试机号开机号是什么 | 于海滨最新3d预测今天 | 3d组三一注多少钱 | 3d詹天佑最新预测今天 | 牛彩网3d专家预测汇总摘要 | 于海滨3d今晚预测 | 3d千禧试机号金码关注码对应码 | 3d藏机图正版藏机图诗汇总 | 3d今天预测最准确专家 | 3d藏机图正版藏机图汇总今天最新 | 3d专家预测最准今天 | 3d最新专家预测推荐 | 3d预测今晚推荐号 | 3d藏机图天齐正版藏机图 | 3d最准预测专家汇总大全 | 今晚3d开奖号码多少 | 今晚精准一注3d | 3d预测专家汇总预测 | 3d预测最准最新准专家预测 | 3d专家预测最准今天 | 3d下期预测最精准的一注号码 | 3d今晚专家推荐预测重点号码 | 3d专家预测推荐最新 | 3d推荐号今日预测 | 3d最准预测专家推荐 | 今天最准3d预测号 | 3d今晚专家预测最准确一注 | 福彩3D独胆老师走势最新 | 3d今天开机号和试机号322 | 3d开机号和试机号金码和关注码 | 3d谜语太湖钓叟3d谜语今天 | 福彩3D独胆专家杀号 | 3d和值尾振幅走势图50期 | 3d太湖专家预测今晚 | 3d断组预测 | 于海滨今天杀码 | 3d彩宝网开机号和试机号 | 3d今日预测推荐号 | 今天3d于海滨预测 | 千禧试机号及金码 | 3d预测最准确专家预测牛彩网 | 3d十位走势图带连线图表专业版 | 飞向阳光龙头凤尾今天最新消息 | 3d预测号码最准最新准专家预测号家彩网 | 今晚快乐八专家预测推荐号 | 今天3d太湖钓叟三字诀字谜 | 三码合一是什么意思? | 中国福彩3D独胆今日精准预测 | 3d直选一注50倍单挑 | 太湖钓叟排三字诀字谜 | 3d今晚专家预测最准确号码 | 3d今晚专家推荐 | 3d藏机图正版藏机图汇总今天最新图片 | 白骨精3d独胆图今天 | 太湖字谜钓叟3d字谜 | 3d今晚必中一注一注 | 今日3d预测号码推荐 | 3d最精准专家预测汇总今天 | 3d今天开机号和试机号码727 | 十拿九稳专家最新预测 | 3d太湖钓叟三字诀字谜汇总 | 3d今晚必出号 | 3d预测最准确的专家 | 3d预测牛彩网预测汇总 | 今天十拿九稳号码预测 | 三d十拿九稳预测号码 | 3d谜语太湖钓叟3d谜语今天 | 3d最新专家预测推荐 | 3d长中剑客预测今天 | 三d预测汇总 | 独胆三天计划 | 牛彩网3d走势图表 | 3d北斗专家北斗预测今天079期3d | 3d今天开机号和试机号码300 | 一定牛3d一注号推荐3d预测今天 | 于海滨海3d预测牛彩网 | 3d今晚预测号码 | 廊坊鸿运3d推荐今天 | 3d试机号后专家预测汇总手机网 | 3d专家预测推荐 | 今晚3d专家推荐号码 | 3d百位绝杀一码 | 中国福彩3D独胆最新必中 | 千禧开机号和试机号对应金码 | 3d今天专家预测号码最准确 | 马到成功杀两码最新版本更新内容 | 3d开机号试机号30期列表彩宝网 | 3d杀码图 | 3d太湖钓叟字谜汇总正版藏机图 | 詹天佑3d点评预测 | 于海滨3d免费预测最新的 | p三杀码 | 3d预测专家最准确的专家预测 | 3d最小值振幅走势图3之家 | 3d北斗专家北斗预测今天079期3d | 3d十大专家预测汇总 | 廊坊鸿运3d推荐今天 | 3d今晚开奖结果号码是 | 3d牛彩网预测 | 3d开机号和试机号码牛彩网 | 3d开心毒胆独胆王 | 3d预测最新最准专家推荐号码 | 3d图谜字谜总汇 | 3d最准确最新专家预测 | 3d免费专家预测推荐今天最新 | 千禧3d试机号关注码金码今天的 | 于海滨专家预测3d两吗 | 近300期3d和值走势图 | 3d专家预测推荐号码 | 3d最准专家预测号今晚3d试机号 | 中国福彩3D独胆实时推荐 | 3d开机号和试机号今天多少 | 卫星电话最建议买的三个型号 | 北斗3d今日专家预测推荐 | 3d预测总汇手机牛彩网 | 三d推荐号专家预测今天 | 3d百个位差值振幅走势图100期 | 3d预测牛彩网 | 3d字谜太湖钓叟三字诀今天 | 中国杀码王3d绝杀 | 太湖字谜三字诀论坛 | 3D独胆下一期杀号 | 3d预测专家最准确的专家预测昨天 | 3d万能大底共250注直选 | 3d于海滨上的今天预测保真 | 3d跨度遗漏值振幅走势图彩经网 | 3d最精准专家预测汇总今天 | 3d专家预测最准最新今天 | 3d正版藏机图天齐网汇总 | 3d专家预测最准今天 | 今日3d太湖字谜三字诀试机号 | 千禧3d试机号金码关注码杀码今天3d | 今晚3d专家推荐号码是多少 | 3d推荐号今晚专家预测最准确 | 东北小胆神今晚独胆 | 3d免费专家预测推荐今天最新 | 3d晶晶必下一独胆今天 | 3d今天专家推荐号码 | 千禧3d试机号金码今天关注码对应码 | 3d预测最准最新准专家预测号码 | 今天3d专家推荐重点号 | 千禧3d试机号关注码金码列表 | 3d开机号试机号关注号金码对应码 | 今晚3d结果开奖号码 | 福彩3D独胆本期推荐 | 3d独胆双胆独胆3d之村 | 3d预测汇总晚间 | 3d十位走势图彩经网 | 3d牛彩网今天开机号试机号 | 3d精准推荐号 | 3d今晚开奖号码多少 | 今晚3d推荐号码是多少 | 3d专家今天预测汇总 | 钱王点评钱王老头预测 | 3d推荐号3d推荐号码 | 3d今晚预测| 3d跨度振幅走势图3d专家 | 3d预测推荐汇总 | (暴富密码)绝杀两码预测 | 福家老三3d推荐号 | 3d十位单选振幅走势图 | 3d晚间字谜总汇大全 | 3d太湖字谜总汇总(正版) | 3d和值尾振幅走势图专业版 | 唐龙3d预测 | 3d老炮子直选三注 | 唐龙3d预测今日出号点评 | 3d预测最准最新准专家预测号码 | 3d最准专家预测号 | 3d双胆,独胆非常非常稳定 | 今晚3d一注50倍 | 3d开机号和试机号30期列表 | 3d徐文轩今晚推荐号码 | 于海滨3d预测号 | 今日3d杀码最新 | 3d最准专家预测 | 三七进二得三码猜一生肖 | 今晚3d预测最准一注 | 毒胆牛人三天计划必出 | 今天的3d开机号和试机号中奖号 | 3d均值振幅走势图表图 | 3d正版藏机图总汇全图 | 3d预测推荐汇总牛彩网采摘收集 | 3d专家杀码天中图库 | 3D独胆团队命中率最新 | 3d太湖字谜每天更新 | 3d试机号后专家预测汇总 | 3d带连线专业版走势图表 | 3d字谜汇总大全总汇大全 | 3d今晚专家推荐预测重点号码 | 下期必出号码预测 | 3d今天开机号和试机号232 | 3d牛彩网专家预测汇总 | 3d解太湖字谜汇总精选 | 福彩3D独胆最新预测 | 3d太湖字谜图谜 | 排五专家预测精准 | 3d今晚必下一个胆 | 今晚3d专家推荐重点号码 | 詹天佑3d最新消息今天 | 3d看胆精英独胆 | 3d今天开机号和试机号码200 | 3d跨度振幅走势图3d专家 | 今晚3d专家最精准的预测 | 3d之家独胆,双胆 | 3d独胆中了给多少钱 | 3d今晚必中一注一注 | 詹天佑预测3d| 今日焰舞3d焰舞字谜汇总大全 | 最准3d专家预测推荐 | 3d和值和尾振幅走势图 | 今天专家推荐号码3d | 3d钱王点评 | 3d预测专家最准最新 | 55125预测汇总3d | 3d推荐号今晚专家预测 | 今天三字诀太湖字谜 | 3d专家预测最准确最新今天牛彩 | 今晚上3d出奖结果 | 3d今晚最准专家推荐号 | 3d今天专家预测推荐号码 | 3d中2个号多少钱 | 3d今天中了多少注直选 | 3d试机号历史出现情况天齐网 | 神仙姐姐杀码今天的 | 3d专家今天预测一注 | 3d今晚专家预测推荐号 | 3d开机号,试机号,金码号,对应码100 | 3d今天最新最准专家预测最 | 昨天3d开奖号是多少 | 3d直选一注今天 | 今天3d开机号 试机号是多少 | 十拿九稳预测最准100% | 3d百个位和值尾走势图 | 3d直选一注50倍单挑 | 3d精准预测最准的专家直选 | 詹天佑今天3d推荐 | 杀码是什么意思 | 3d近30期试机号和开奖结果 | 今天3d专家预测汇总 | 3d独胆必下一独胆 | 于海滨3d每日杀一码 | 3d和值25点有哪几注 | 老炮子3d直选三注 | 3d陈华今晚就赌一胆今天最新消息 | 千禧金码关注码试机号 | 排5预测,最准排五专家 | 铁人真胆一句定三码3d字谜彩搜网 | 3d之家,专家预测预测 | 中国杀码王3d绝杀 | 今晚3d专家预测精选一注 | 3d詹天佑最新预测今天 | 3d图谜总汇字谜 | 3D独胆实时必中最新 | 小林3d最新预测今天 | 3d专家最新最准专家预测 | 千禧3d试机号关注码金码今天的 | 3d今天专家推荐号码 | 中国福彩3D独胆独家杀号 | 3d解太湖字谜汇总精选 | 3d试机号后专家预测推荐汇总 | 3d今天专家推荐号码 | 十拿九稳专家预测专栏 | 3D独胆本期推荐 | 3d正版藏机图谜汇总 | 千禧试机号金码关注 | 3d走势图(带连线版) 试机号 | 3d布衣独胆王 | 三d预测专家最新推荐 | 3d开机号和试机号码牛彩网 | 3d今晚专家预测最准确一注 | 3d专家推荐今天 | 千禧p3试机号关注号金胆对应号 | 3d中奖 | 今于海滨3d预测今天单线联系 | 3d今晚出的什么号 | 3d精准预测推荐 | 3d千禧开机号试机号 | 3d和值振幅走势图彩宝贝 | 3d专家预测最准确 | 3d专家预测推荐汇总 | 3d断组今晚全部 | 于海滨3d最新预测 | 3d专家预测更准确今天 | 助赢计划软件官网版下载 | 3d和值尾振幅走势图带连线图表 | 今日3d开奖号码是多少? | 3d预测最准的专家 | 3d预测最准最新准专家预测号码 | 3d预测最新最准专家推荐号码 | 今晚3d开机号试机号金码 | 今于海滨3d预测今天单线联系 | 近10期3d开奖结果 | 3d直选一注今天 | 3d字图谜总汇 | 3d鸿运坊预测号 | 3d试机号后专家预测汇总 | 3d预测专家汇总预测 | 3d独胆王精准100% | 今日3d太湖字谜更新 | 3d今天开机号试机号3 | 3d太湖专家预测今晚 | 3d最大值振幅走势图3之家 | 3D独胆高手走势最新 | 牛彩网近30期3d开机号试机号 | 詹天佑3d点评预测 | 3d试机号和开奖号走势图 | 今晚上3d开奖号码 | 3d带连线走势图(专业版) | 自创3d绝杀四码方法细节 | 于海滨3d专家预测 | 3d于海滨专家预测 | 三d独胆| 3d一句定三码最准字谜 | 今天3d金码试机号对应码开机号 | 毒胆牛人三天计划必出 | 3d百个和值尾振幅走势图 | 3d开机号和试机号金码关注对应码 | 3d北斗专家北斗预测今天079期3d | 今天3d专家推荐重点号码 | 今日3d字谜太湖钓叟字谜 | 今晚3d专家预测精选一注 | 千禧3d试机号金码关注码对应码 | 3d今日开机号和试机号及关注码 | 3d今晚开奖号结果 | 3d今晚专家推荐预测重点号码 | 3d专家预测最准最新今天 | 3d开机号试机号今天的 | 今于海滨3d杀码图 | 于海滨点评专家一语保真 | 今晚于海滨海3d预测3d | 3d今日开机号和试机号及关注码 | 3d十大专家杀跨度汇总 | 马到成功杀两码最新版本更新内容 | 今天最新3d开机号试机号关注码 | 3d太湖字谜官网 | 3d推荐一注 | 3d最准确预测专家 | 3d今晚最准的一注 | 3d跨度分位走势图图感觉 | 排三王牌小哥独胆 | 3d十大专家推荐号码汇总 | 三d牛彩网开机号试机号是多少 | 3d均值振幅走势图表图 | 3d最新最准专家预预测 | 于海滨今天预测 | 3d今日预测最准专家预测 | 3d今天专家预测推荐号码 | 3d姜子牙一句定三码最准字谜汇总 | 3d今晚最准专家推荐号码 | 3d今日专家推荐 | 3d铁人包星定胆天齐网 | 今晚3d专家推荐号码是多少 | 3d开心毒胆独胆王 | 今天最新3d开机号试机号关注码 | 3d专家预测汇总牛彩网收集汇总 | 2016年全年历史记录3d | 3d今天最新最准专家预测最 | 3d最准专家预测号 | 3d今日开机号和试机号及关注码 | 3d百十和值尾振幅走势图 | 三d十拿九稳预测号码 | 今日期3d太湖字谜 | 3d近300期试机号和开奖号码 | 千禧3d试机号金码关注码码关注码双彩论六个 | 小红人的计划三天计划独胆 | 詹天佑3d点评预测 | 牛彩预测汇总3d最新 | 3d均值振幅走势图表图 | 3d村独胆双胆3 | 3d字谜今日字谜总汇 | 3d精准预测推荐 | 今天3d开机号和试机号多少? | 3d双胆预测| 3d百位个位和值走势图 | 3d农村小伙子最新预测 | 3d和值跨度走势图带连线 | 今日3d预测专家推荐 | 3d直选综合走势图表 | 3d今天开机号和试机号码 | 3d今晚专家预测最准确一注 | 3d今晚最准最新专家推荐号 | 3d预测一注精准 | 3d推荐号今晚专家预测 | 3d今晚最准最新专家推荐号 | 3d专家预测最准确最新今晚预测 | 3d预测号最新最准牛彩网 | 今天3d千禧试机号关注号金码号 | 3d藏机图正版藏机图全图牛彩网 | 3d今天专家预测最新最准 | 3d最准确最新专家预测 | 3d预测推荐汇总 | 3d预测詹天佑 | 3d和值宫数线走势图 | 3d千禧试机号关注号金码号开机号 | 今天3d推荐号码今晚预测 | 3d预测今晚推荐号 | 北斗3d今日预测 | 三d预测专家最新推荐 | 顶级胆神双胆必下 | 3d太湖一语定胆字谜 | 历史3d开奖结果 | 3d双胆 | 三地千禧试机号关注金码对应码 | 3d千禧金码试机号关注码 | 3d专家预测最新推荐 | 3d双胆独胆非常非常 | 3d独胆必下一独胆 | 今天3d太湖字谜三字诀 | 3d今晚预测最新最准确号码牛彩网 | 陈华今天就赌一个胆3d | 小龙一语定三胆3d今日字谜 | 3d牛彩网专家预测 | 3d专家预测最准确今天 | 3d和值尾振幅走势图专业版 | 3d专家预测最准确最新新闻 | 3d百个和值尾振幅走势图 | 3d北斗专家北斗预测今天079期3d | 3d 计算公式 | 今日精准预测推荐3d号码 | 3d六码组三多少钱一注 | 3d杀码公式最新 | 于海滨3d今晚预测号码 | 3d今晚上必出号推荐组 | 3d今日预测最准专家预测 | 排五奖号 | 3d预测专家最准确 | 3d正版太湖字谜图谜 | 3d今日专家推荐号 | 3d试机号开机号今天晚上金码号 | 3d独胆10中10 | 3d今天开机号和试机号金码对应码 | 3d开心毒胆独胆王 | 于海滨点评专家一注定胆保真版162期 | 今于海滨3d预测今天牛彩网 | 3b预测汇总牛彩网 | 詹天佑预测3d | 财神爷独胆三天计划,就这么牛 | 千禧试机号金码关注号对应码杀码 | 3d今晚专家预测推荐号 | 今日3d太湖字谜三字诀 | 3d百个位差值振幅走势图100期 | 小胆神玩毒胆我3d | 3d今晚必出的一注 | 三d专家杀码 | 于海滨今天杀码 | 3d直选一注今天 | 3d预测号最新最准牛彩网 | 3d字谜太湖最新 | 3d杀码公式最新 | 3d今晚最准三注 | 千禧三地试机号对应码金码 | 于海滨专家预测 | 3d今天专家预测最准 | 3d今天专家推荐号码推荐 | 今天3d牛彩网专家预测 | 3d预测专家推荐 | 3d最新准专家预测 | 3d今天专家推荐号码 | 3d十位胆方法100准确 | 3d解太湖字谜汇总精选 | 3d预测最准确专家预测 | 3d今日预测最准专家预测 | 3d十大专家预测汇总 | 神仙姐姐杀码今天 | 3d今晚最准专家推荐号 | 3d晶晶必下一独胆今天 | 3d天中杀码图专区 | 福彩3D独胆专家杀号 | 唐龙点评每日一胆龙 | 3d专家预测最新最准推荐 | 今日3d太湖字谜每天更新 | 3d专家今天推荐号码推荐 | 今日3d正版藏机图,藏机图汇总,天中网 | 3d今天专家推荐号码 | 今晚3d开奖结果是多少 | 3d预测最准确的专家预测软件 | 3d真帝王杀码图 | 3d最准一注号码 | 3d基本走势图 综合 太湖三字诀字谜三 | 3d最全晚间字谜汇总大全 | 今于海滨3d杀码 | 3d免费专家预测推荐今天最新 | 3d金胆王| 3d白娘子跨度字谜汇总今天牛彩网 | 试机号开机号金码关注号对应码3d | 3d机选一注| 3d推荐最新最准专家预测 | 3d预测专家最准确的专家预测今晚 | 3d彩报图今天图库彩吧 | 3d开机号和试机号近100期列表 | 3d计算公式精准100%计算 | 于海滨专家3d今天预测 | 三d专家杀码 | 专家彩宝贝预测汇总 | 于海滨3d免费预测最新的 | 3d专家预测最准确最新今天牛彩 | 3d彩报图今天图库彩吧 | 今天3d专家解太湖字谜汇总 | 3d开奖号走势图表 | 近100期3d开机号和试机号 | 今于海滨3d预测今天单线联系 | 3的杀码图 | 3d组选中一注多少钱 | 千禧3d试机号金码今天关注码对应码 | 3d今晚专家推荐预测重点号码 | 千禧3d试机号金码关注码对应码 | 千禧试机号金码关注 | 3d预测最准确的专家预测软件 | 3d开机号和试机号今天千禧 | 詹天佑预测3d | 唐龙3d预测今日出号点评 | 3d今晚字谜太湖字谜是什么 | 3d和走势图 和值尾连线 | 助赢计划软件免费版下载安装 | 三d三胆| 千禧今晚3d试机号关注码金码对应 | 3d今晚试机号开奖号 | 于海滨海3d预测保真 | 3d独胆专家预测 | 3d开机号近30期列表彩宝网 | 今日3d开机号和试机号关注码千禧 | 中国福彩3D独胆内部走势最新 | 3d近30期试机号和开奖结果 | 今晚解太湖3d字谜 | 福彩3D独胆专家杀号 | 55125预测汇总3d | 3d谜语今天字谜今天的3d字谜是什么? | 3d就打一个胆中了多少钱 | 白骨精3d独胆图今天 | 福彩3D独胆今晚走势最新 | 3d专家今天预测汇总 | 3d最小值振幅走势图3d之家 | 布衣3d独胆双胆王 | 今天3d双双独胆字谜 | 今天龙头凤尾预测 | 3D独胆下期推荐预测最新 | 铁娘子三天计划独胆必下300 | 3d最全晚间字谜汇总大全 | 今天的3d太湖字谜 | 3d独胆双胆专家预测网 | 今晚了3d开奖结果 | 3d专家今天预测一注 | 今天太湖字谜三字诀是什么 | 3d今晚必中一注一 | 今天最新3d开机号试机号关注码 | 今天3d推荐号码今晚预测 | 3d上下五千年专家预测 | 3d每期必中27注 | 3d最准确预测专家 | 3d推荐号码今晚预测 | 3d藏机图正版藏机图打印版 | 牛彩3d专家预测 | 3d今天千禧试机号关注号金码 | 3d推荐最新最准专家预测 | 于海滨海3d专家预测今天 | 钱王今天3d预测号 | 3d预测最准确专家预测牛彩网 | 3d跨度五行走势图3d之家 | 詹天佑3d点评预测 | 3d詹天佑预测汇总 | 小财神三天计划独胆 | 3d今晚的开奖号码 | 千禧试机号金码关注码的历史记录 | 3d杀码图汇总 | 今天3d开机号试机号对应码列表 | 3d今晚最准最新专家推荐号 | 3d紫云涧专家预测推荐 | 3d预测最新最准3d之家 | 3d专家今天预测一注 | 3d十大专家预测汇总 | 3d最近100期历史记录 | 财神一语定一注3d字谜 | 钱王点评 | 马后炮解3d太湖钓叟字谜总汇大全 | 今日太湖钓叟三字诀字谜 | 3d今晚必下一个胆 | 福彩3D独胆最新命中率 | 3d两胆下一稳定方法 | 3d专家预测最准确最新新闻 | 今于海滨3d预测今天牛彩网 | 3d今晚最准专家推荐号 | 3d开奖号今天结果 今晚 | 3d千禧试机号关注金码30期 | 3d胆王帅哥独胆双胆 | 3d专家最新最准专家预测汇总 | 牛彩网3d专家预测汇总 | 3d怎么守号不亏 | 于海滨3d预测号 | 3d今天开机号和试机号码 | 3d今晚最准最新专家推荐号 | 试机号千禧关注金码 | 白鱼舟最新3d预测 | 3d试机号后专家预测汇总 | 3d精准预测最准的专家 | 3d今晚推荐号码最新 | 3d今晚预测号码 | 3d于海滨上的今天杀码 | 今日3d太湖三字谜 | 今天3d专家预测号码 | 3d预测最准专家预测号 | 3d预测专家最准确 | 千禧3d试机号金码关注码码关注码双彩论六个 | 今天的3d太湖字谜图 | 3d今天专家推荐号码推荐 | 3d千禧开机号试机号关注金码对应码 | 于海滨海3d专家预测今天 | 今天3d的开机号和试机号是多少号 | 3d今晚预测直选四注 | 3d千禧试机号关注号金码牛彩网 | 3d真实的谎言正版和值字谜 | 排三杀码专家天齐网 | 解3d字谜太湖钓叟汇总 | 3d湘西胆王今日字谜 | 3d预测专家最准确今天 | 3d专家今天预测汇总 | 3d之家北斗今日预测 | 3d预测最精准一注 | 3d和值宫数线走势图 | 3d藏机图正版藏机图汇总今天最新 | 陈华3d今晚就赌一个胆 | 3d老炮子直选三注 | 最新3d预测专家预测 | 3d预测最准确专家预测 | 于海滨海3d预测保真 | 3d今天开机号和试机号码 | 最准3d预测专家推荐号 | 3d今晚最准专家推荐号 | 今天的3d开机号和试机号查询 | 中国福彩3D独胆高手命中率 | 今天专家推荐号码3d | 3d开机号和试机号正版彩吧 | 于海滨3d预测牛彩网 | 3d最新专家预测汇总大全 | 今晚3d开奖号是多少 | 今晚3d开奖号码多少 | 3d今晚最准最新专家推荐号 | 一代女王p3杀两胆独胆 | 今晚3d太湖字谜 | 3d之家独胆,双胆 | 3d专家推荐 | 3d预测一注精准 | 3D独胆高手杀号 | 3d牛哄哄解太湖字谜今天 | 今晚3d预测最准一注 | 3d双胆神算今天必下 | 孟庆会老师3d预测彩吧图库今天 | 今于海滨3d预测 | 今日3d专家精准推荐 | 3d今晚字谜太湖字谜是什么 | 下一期专家推荐号码 | 3d天中杀码图专区 | 于海滨今天杀码3d | 3d今晚预测直选一注 | 3d预测一注号推荐一3d预测一注今天 | 3d独胆预测必下一胆 | 3d今日专家推荐 | 3d今天最准专家预测 | 3d和值尾振幅走势图近50期 | 彩界毒胆大师一枚毒胆 | 今天3d字谜解太湖字谜 | 3d字谜汇总大全总汇牛彩网开机号 | 3d今天开机号和试机号牛彩网 | 3d专家预测号码手机牛彩网 | 3d百十和值尾振幅走势图 | 今日3d专家预测号最准确 | 3d最精准专家预测汇总今天 | 3d预测号专家预测 | 廊坊鸿运3d | 3d字谜汇总大全总汇牛彩网开机号 | 3d推荐一注 | 3d专家预测最准最新今天 | 三d之家独胆 | 3d孔方来萃解太湖字谜 | 3d太湖17500字谜 | 今日3d太湖字谜三字诀 | 3d通杀一码 | 中国福彩3D独胆当天分析 | 3d走势图(带连线版) 试机号 | 3d今天开机号试机号码 | 3d试机号牛彩网近三十期 | 3地独胆,毒胆双胆家彩网 | 3d近200期试机号和开奖号码 | 3d十位胆方法100准确 | 3d专家预测最准确最新今天 | 今天的3d推荐号码是多少 | 3d专家最新最准专家预测汇总 | 今天最新3d开机号试机号 | 3d个位走势图表 | 3d于海滨一语定胆《保真》 | 今日钱王给胆点评 | 中国杀码王绝杀 | 廊坊鸿运3d推荐今天 | 牛彩网3d预测汇总大全 | 3d专家预测最准确最新今天牛彩 | 3d最新专家预测汇总大全 | 3d今天开机号和试机号码300 | 3d牛彩网100期开机号和试机号 | 今日3d开机号和试机号关注码千禧 | 3d试机号开机号今天晚上金码号 | 排5预测,最准排五专家 | 3d和值走势图(专业版) | 十拿九稳预测专家分析 | 于海滨3d最新预测 | 今天的3d开机号和试机号查询 | 3d今晚专家推荐预测重点号码 | 最准3d预测专家推荐号 | 3d走势图带连线图表牛彩网 | 中国福彩3D独胆大神命中率 | 3d今晚必中三个号码预测 | 千禧3d试机号金码关注码对应码 | 最准3d专家预测推荐 | 3d紫云涧专家预测推荐 | 3d陈华今晚独胆推荐 | 3d今晚上开奖号码 | 3d今晚上开奖号码 | 今日3d太湖字谜三字诀 | 3d独胆王精准100% | 3d推荐号今晚专家预测 | 今天3d开机号,试机号是多少 | 福彩3D独胆下期推荐预测 | 3d焰舞和值谜字谜 | 太湖谜3d太湖钓叟字谜 | 3d牛彩网字谜图谜汇总九 | 3d今天开机号,试机号 | 今晚3d专家推荐号 | 3d开机号和试机号今天千禧 | 牛彩网3d预测汇总大全手机版下载 | 3d今日正版藏机图最新更新内容 | 今天的3d推荐号码是多少 | 3d今天开机号和试机号 | 今晚3d号码开奖结果多少 | 3d预测是多少| 今晚3d的试机号是 | 3d和值尾振幅走势图50期 | 3d最新专家预测推荐 | 3d陈华今晚就赌一胆今天最新消息 | p3故事小王双胆下一今天 | 3d十位走势图带连线图表专业版 | 3d太湖字谜三字诀 | 今日3d直选 | 中国福彩3D独胆最新推荐 | 3d今天开机号和试机号多少 | 3d今晚预测准确的专家预测 | 于海滨预测3d号 | 3d今晚中奖号157 | 太湖钓叟三字诀字谜解释总汇 | 3d谜语太湖钓叟3d谜语今天 | 孟庆会3d预测今天 | 今日3d开奖号今晚 | 福彩3D独胆当天分析最新 | 3d詹天佑预测分析牛彩网 | 3d百位遗漏振幅走势图南方双彩网 | 3d 今日太湖字谜 | 最准3d预测专家推荐号 | 3d预测最新最准3d之家 | 3d每天一个独胆 | 3d专家预测最准确今天 | 今日3d预测号码推荐 | 3d詹天佑最新预测今天 | 三d独胆 | 3d专家推荐最精准的号码 | 3d 今日太湖字谜 | 今天3d开机号和试机号金码 | 3d今晚最准最新专家推荐号 | 3d杀码高手 | 今天3d推荐号码今晚预测 | 乾坤三天计划独胆预测 | 3d今天推荐号码是多少 | 于海滨专家预测 | 詹天佑今日3d预测 | 中国福彩3D独胆独家必中 | 3d今晚出啥号 | 3d下期预测最精准的一注号码 | 万能6码走势图 | 3d精准预测最准的专家 | 3d最新专家预测汇总大全 | 3d试机号金码号是多少 | 3D独胆本期推荐 | 3d预测专家最准确的专家预测今晚 | 3D独胆团队精准预测最新 | 3d预测今日最新推荐 | 3d牛彩网字谜图谜汇总九 | 3d下期预测最准一注 | 于海滨杀码图 | 3d个位振幅走势图近50期 | 3d三胆预测 | 3d两胆精准预测 | 3d两胆下一稳定方法 | 3d预测晚| 3d北斗专家北斗预测今天079期3d | 3d最精准专家预测汇总今天 | 于海滨最新3d预测推荐今天 | 3d开机号和试机号30期列表 | 百位振幅走势图3d之家 | 太湖字谜钓叟3d字谜 | 3d预测最准确的专家 | 3d直选至今未出号 | 今天的3d开机号和试机号查询 | 小财神三天计划独胆 | 预测今晚3d一注 | 三d三胆 | 福彩3D独胆今晚必中最新 | 3d彩宝贝字谜 | 3d今晚试机号牛彩网 | 3d专家预测推荐号最新 | 3d北斗专家北斗预测今天079期3d | 3d今晚试机号开奖号 | 小德3d今天双胆定位 | 3d太湖字谜一语定胆 | 福彩3D独胆老师必中最新 | 3d牛哄哄解太湖字谜今天 | 3d预测最准预测号 | 3d于海滨一语定胆《保真》 | 3d马前屁解太湖字谜 | 于海滨3d预测 | 3d最新专家预测汇总大全 | 铁人铁胆3d包星定位最新今天 | 3d精准预测最准的专家 | 3d和值遗漏值尾走势图 | 财神爷独胆三天计划,就这么牛 | 3d开机号和试机号金码和关注码 | 3d专家预测推荐汇总 | 今天专家推荐号码3d | 飞向阳光龙头凤尾今天最新消息 | 3d预测专家最准确今天 | 3d家彩预测 | 3d今天开机号和试机号开奖结果 | 3d开奖结果今晚号码 | 今天专家推荐号码3d | 中国福彩3D独胆内部杀号 | 3d计算机开机号夏天推荐 | 浙江风采3d走势图表 | 助赢计划软件免费版下载安装 | 3d开机号和试机号今天千禧 | 3d下期预测最精准的一注号码 | 今晚3d专家推荐号码是多少 | 于海滨海3d专家预测今晚一注 | 3d千禧试机号关注码金码今天晚 | 3d今晚预测最准确一注今天 | 3d专家今日推荐号码 | 今日3d开机号和试机号关注码千禧 | 3d太湖钓叟字谜三字诀 | 3d小鱼图今日背面字谜 | 3d今晚预测100% | 3d万能大底共250注直选 | 千禧3d试机号关注码金码列表 | 3d预测专家汇总预测 | 千禧试机号金码关注号对应码杀码 | 中国福彩3D独胆下期最新必中 | 今日3d直选一注 | 3d专家最新最准预测 | 陈华今晚就赌一个胆预测 | 3d最准专家预测号今晚3d试机号 | 于海滨精准杀码图 | 千禧3d试机号金码关注码码关注码双彩论六个 | 孟庆会点评 专家一语定胆 稳准狠三天计划 | 3d独胆双胆天齐网 | 今天3d字谜解太湖三字诀 | 今天的3d藏机图正版藏图 | 于海滨今天3d预测号 | 3d今天专家推荐号码 | 三d开机号和试机号今天牛彩网彩 | 排五开奖最新结果排5 | 三地千禧开机号试机号金码关注 | 最准的3d专家预测 | 3d预测专家推荐号码 | 3d字谜总汇今日3d字谜总汇牛彩网 | 3d杀码十大专家天齐网 | 3d今天开机号和试机号开奖结果 | 詹天佑3d今晚预测号码 | 3d专家预测推荐最新 | 3d毒毒毒胆胆胆中中中 | 3d太湖钓叟字谜汇总正版藏机图 | 3d专家预测最准最新今天 | 3d预测最准专家预测 | 3d预测专家推荐号码推荐 | 3d任意两码差值尾走势图 | 3d今天开机号和试机号码 | 3预测,3d专家预测,最准确今天彩网 | 今晚3d天宇一句定三码字谜 | 3d今天最准专家预测 | 3d八哥图库总汇d字谜图谜总汇大全 | 于海滨3d预测牛彩网 | 3d近100期的开奖号码和试机号 | 詹天佑3d预测今天推荐号码 | 今日3d正版藏机图,藏机图汇总,天中网 | 3d真实的谎言字谜总汇正版 | 3d和值10有哪些号码 | 中国福彩3D独胆本期命中率 | 3d最新最准专家预测号码 | 太湖马后炮3d钓叟字谜 | 近30期3d开机号和试机号 | 今晚3d专家预测精选一注 | 3d精准预测最准的专家直选 | 今日3d太湖字谜三字诀试机号 | 三d独胆| 中国福彩3D独胆下期推荐杀号最新 | 今天3d开机号 试机号是多少 | 3d三胆推荐 | 3d于海滨预测预测牛彩网 | 龙头凤尾今日预测 | 于海滨预测3d号 | 今天3d开机号 试机号是多少 | 今天3d试机号和开机号 | 3d今天开机号和试机号码牛彩网 | 3d千禧试机号关注号金码号开机号 | 今日毒胆 | 3d百个和值尾振幅走势图 | 于海滨今日杀码图最新 | 3d百位绝杀一码 | 3d近100期的开奖号码和试机号 | 3d开机号试机号今天的 | 3d今晚出啥号 | 于海滨的今日预测 | 3d今晚开奖号走势图 | 3d百位遗漏振幅走势图南方双彩网 | 3d百位走势图带连线图表专业版 | 今晚3d直选一注 | 3d今晚专家预测推荐号 | 3d家彩预测 | 小薇3d预测 | 牛彩网3d专家预测 | 3d的预测号 | 今日3d一注推荐 | 3d预测最准的专家预测 | 三d字谜总汇大全 | 3d今晚最准专家推荐号 | 试机号开机号金码关注号对应码3d | 3d今天的推荐号 | 3d试机号今晚开机号 | 3d最新专家预测推荐 | 小胆神玩毒胆我3d | 3d今天开机号和试机号是多少 | 福彩3D独胆老师必中 | 3d杀码大全天齐网 | 3d预测今晚最准专家预测号码 | 三地千禧关注码试机号 | 今日3d预测专家推荐 | 今日3d专家预测号码 | 3d带专业连线走势图 | 3d每期必中27注 | 3d和值基本走势 | 今晚3d精准一注直选 | 3d预测最准确专家预测 | 3d两胆下一稳定方法 | 东北小胆神今晚独胆 | 专家推荐一注6+1 | 今天3d开机号关注号试机号金码 | 3d独胆专家预测 | 3d胆王双胆独胆 | 千禧试机号金码关注号对应码杀码 | 3d天中杀码图专区 | 3d和值和尾走势图带连线图表 | 三d独胆| 3d最准确预测专家 | 3d走势图全图表 | 3d今晚最准专家推荐号 | 福彩3D独胆下一期走势最新 | 3d试机号后专家预测推荐汇总 | 今晚3d直选推荐 | 今天3d中奖| 三码合一是什么意思? | 3d独胆预测必下一胆 | 3d最准确的预测方法 | 于海滨预测3d号 | 3d太湖字谜总汇大全 每天更新 | 今晚3d预测总汇 | 3d预测今晚最准专家预测号码 | 3d最新最准专家预测号码 | 3d专家今日推荐号码 | 陈华3d今晚赌独一胆天齐网 | 3d藏机图正版藏机图汇总今天最新图片 | 排三杀码专家 | 十拿九稳预测专家分析 | 3d今晚预测直选四注 | 3d北斗专家北斗预测今天079期3d | 最准3d专家预测推荐 | 3d四码直选多少钱一注 | 今天3d开机号和试机号牛彩网 | 彩界毒胆大师一枚毒胆 | 今日3d字谜太湖钓叟字谜正版 | 3d太湖字太湖字谜 | 3d预测最准确的专家 | 3d十大专家推荐号码汇总 | 3d最准确预测专家 | 3d专家预测最准确今天南方双彩网 | 3d专家预测最准确最新今晚预测号 | 3d直选综合走势图表图 | 今日3d预测专家推荐 | 3d杀码专家杀码天齐网 | 3d今晚预测最新最准确号码牛彩网 | 今日詹天佑3d预测分析 | 3d今晚必出号 | 3d牛彩网. | 3d专家预测今天最新准确号 | 今日钱王给胆点评 | 3d专家预测推荐号码 | 3d开机号和试机号今天千禧 | 3d专家预测最准最新今天 | 3d双胆中中中 | 3d预测推荐汇总大全 | 3d和值012走势图带连线图 | 3d北斗专家北斗预测今天079期3d | 今日3d预测号 | 千禧今晚3d试机号关注码金码对应 | 3d正版藏机图谜汇总 | 3d陈华今晚就赌一胆天齐网 | 3d今天专家预测号码最准确 | 3d预测最准的专家预测 | 张克永最新3d预测 | 福彩3D独胆老师杀号最新 | 天齐网3d首页保真版3d预测 | 今天晚上三d开奖结果 | 今晚3d专家推荐号码是多少 | 于海滨今日预测号 | 3d专家预测最准确最新今晚预测 | 3d专家今天推荐号码推荐 | 3d三胆预测| 3d双胆独胆非常非常 | 3d詹天佑预测分析牛彩网 | 今晚3d专家预测 | 3d试机号牛彩网近三十期 | 天才计划三天计划独胆 | 今天3d开机号和试机号对应码查询 | 3d今晚专家预测推荐 | 今于海滨3d预测今天牛彩网 | 3d免费专家预测推荐 | 3d今晚预测最准确一注今天 | 3d跨度分位走势图图感觉 | 3d和走势图 和值尾连线 | 太湖字谜太湖钓叟三字诀 | 太湖钓叟3d字谜太湖字 | 铁娘子三天计划独胆必下300 | 3d最准的预测专家 | 3d詹天佑最新预测今天 | 詹天佑3d今天预测分析 | 今日3d藏机图正版藏机图310 | 3d开机号和试机号金码今天的 | 下一期专家准确预测 | 3d今天专家预测最准确 | 于海滨海3d预测今天 | 3d今晚必中一注一注 | 3d万能三码中奖秘诀 | 3d千禧开机号试机号 | 3d预测号最新最准牛彩网 | 3d专家今天推荐号码推荐 | 今日3d太湖字谜三字诀排三开奖结果 | 3d开机号和试机号今天多少 | 福彩3D独胆下期杀号最新 | 3d预测专家推荐号码 | 排三今晚十拿九稳最新预测 | 3d最新专家预测汇总大全 | 3d开机号和试机号今天查询 | 3d今晚最准最新专家推荐号 | 2014年359期3d焰舞字谜 | 3d太湖钓叟字谜三字诀 | 今天3d开机号 试机号是多少 | 今天最新3d开机号试机号关注码 | 3d今晚最准专家预测号码145 | 福彩3D独胆明日分析最新 | 3d最精准专家预测汇总今天 | 3d今晚预测最准确一注今天 | 3d今日专家精准推荐号 | 3d精准预测推荐 | 3d今天最新最准专家预测最 | 3d和值走势图(带连线图) | 3D独胆专家分析 | 3d预测推荐汇总大全 | 3d专家预测最准最新今天 | 3d今天专家推荐号码 | 周星星3d预测手机牛彩网 | 3d詹天佑预测分析牛彩网 | 千禧3d试机号金码关注码牛彩网 | 三d五码复式打一注多少钱啊 | 3d今晚预测开奖号码 | 三d独胆 | 3d今晚专家预测最准确一注 | 3d今晚中奖号是多少 | 3d预测专家最准确的专家预测今晚 | 今晚上3d出奖结果 | 3d今晚专家推荐预测重点号码 | 3d最新最准专家预预测 | 今于海滨3d杀码图24210 | 今天3d开机号试机号码 | 大老人3d预测牛彩网推荐 | 3d今晚专家推荐号 | 3d预测最准确专家预测牛彩网 | 三d牛彩网开机号试机号是多少 | 于海滨专家预测 | 福彩3D独胆大神精准预测最新 | 3d预测专家推荐 | 3d彩吧图库红五3d图库 | 3d直选综合走势图表图 | 于海滨3d预测专家今天 | 3d最大值振幅走势图遗漏 | 唐龙一胆 | 3d专家今日推荐号码 | 3d今晚必出的一注 | 3d最精准的专家预测精选 | 3d千禧开机号试机号关注金码对应码 | 最准3d专家预测推荐 | 3d陈华今晚独胆预测 | 于海滨最新3d预测今天 | 3d直选形态走势图彩宝网 | 3d带连线走势图(专业版) | 3d今晚专家预测最准确号码 | 十拿九稳今天预测专家 | 3预测,3d专家预测,最准确今天彩网 | 今天3d牛彩网专家预测 | 3d杀码大全 | 3d最准确的专家预测 | 今于海滨3d杀码 | 福彩3D独胆团队必中最新 | 3d今天专家推荐号码 | 3d楚人今晚预测今天 | 开机号试机号3d今天 | 今天专家推荐号码3d | 3d今天开机号和试机号金码对应码 | 于海滨海3d预测今天 | 3d双胆预测 | 3d独胆专家推荐独胆 | 中国彩吧更一懂彩民最新版本更新时 | 北斗3d今日专家预测推荐 | 3d独胆专家预测 | 3d今晚上专家推荐号 | 3d钱王点评| 3预测,3d专家预测,最准确今天彩网 | 3d百十和尾振幅走势图走势 | 3d两胆下一稳定方法 | 投资计划独胆三天计划 | 中国福彩3D独胆大神命中率 | 3d今天的推荐号 | 3d今晚预测直选四注 | 于海滨点评专家一注定胆保真版162期 | 3d十大专家预测汇总 | 3d北斗专家北斗预测今天079期3d | 毒胆牛人三天计划 | 3d八哥图库总汇d字谜图谜总汇大全 | 排五专家预测精准 | 3d最准确预测专家 | 牛彩网3d预测汇总大全手机版下载 | 3D独胆下期最新精准预测 | 今天3d太湖钓叟三字诀字谜 | 3d开机号和试机号正版彩吧 | 3d最新专家预测汇总 | 3D独胆下期推荐走势最新 | 今于海滨3d预测今天单线联系 | 3d推荐号今日预测 | 3d绝杀一码专家 | 十拿九稳今天预测专家 | 3d专家预测最准确号码 | 于海滨专家3d预测 | 3d专家预测汇总牛彩网收集汇总 | 今天3d藏机图正版藏机图藏机图太湖横屏 | 今天3d专家预测汇总 | 于海滨海3d预测保真 | 今于海滨3d预测今天275 | 中国福彩3D独胆下期推荐 | 3d邻孤传走势图乐彩 | 今晚3d专家预测精选一注 | 带头大哥3d预测今晚 | 3d预测号专家预测 | 福彩3D独胆下期走势最新 | 三d推荐号专家预测今天 | 太湖字谜钓叟3d字谜 | 3d徐文轩今晚推荐号码 | 3d双飞怎么买多少钱一注 | 3d独胆预测必下一胆 | 3d专家预测于海滨 | 3d预测最准最新准专家预测 | 中国福彩3D独胆下期推荐推荐最新 | 今于海滨最新预测今天 | 3d千禧开机号试机号关注金码 | 3d独胆专家推荐独胆 | 3d最晚间字谜汇总大全 | 福彩3D独胆实时走势 | 3d基本走势图表完整版 | 3d走势图的基本走势图 | 3d今日专家推荐号 | 3d专家预测最新最准 | 3d和值专家推荐和值 | 3d最准的预测专家 | 3d今天最新最准专家预测最 | 3d两胆王| 3d今晚最准的一注 | 3d预测最新最准专家 | 三d胆| 三d牛彩网开机号试机号是多少 | 今天龙头凤尾预测 | 今天3d专家推荐号 | 苏会文3d预测今天推荐 | 3d长中剑客预测今天 | 牛彩网3d预测分析汇总大全 | 今晚3d推荐号 | 3d开机号试机号30期列表走势图 | 3d必中永久直选500注大底 | 三d预测专家预测今天最新 3d专家预测最准最新今天 | 于海滨3d预测今天 | 今天3d专家推荐重点号 | 3d最准一个独胆方法 | 3d跨度振幅近100期走势 | 3d预测最准确的专家 | 3d试机号后专家预测汇总 | 3d天地杀码图 | 3d开机号,试机号,金码号,对应码100 | 3d预测最准最新准专家预测号码 | 3d今天预测最准确专家 | 3d楚人今晚预测今天 | 3d今晚最稳一注 | 福彩3D独胆老师精准预测 | 3d和值跨度走势图带连线 | 3d开机号和试机号30期列表 | 于海滨3d最新预测 | 3d开机号和试机号金码关注 | 3d预测专家最准确的专家预测今晚 | 3d试机号今天开机号查询结果 | 3d今晚一注 | 3d今天开机号和试机号是多少 | 千禧3d今晚的试机号码 | 3d专家预测最新推荐 | 于海滨海3d预测保真 | 十大专家3d预测汇总 | 3d双胆预测3d双胆下3d 双胆推荐 | 福家老三3d推荐号 | 3d推荐号今晚专家预测 | 铁人铁胆定位包是预测 | 中国福彩3D独胆本期推荐 | 3d太湖专家预测今晚 | 钱王今天3d预测号 | 3d六大专家杀码汇总 | 于海滨预测3d号 | 3d廊坊鸿运正版推荐 | 3D独胆明日分析 | 3d直选一注今天 | 3d北斗专家北斗预测今天079期3d | 3d预测专家最准确的专家预测 | 3d今天专家预测最准确 | 于海滨3d杀码图 | 3d预测一注号推荐今晚 | 3d今晚专家预测推荐号 | 3d今天专家推荐号码是多少 | 3d太湖钓叟三字诀字谜汇总 | 排五奖号 | 今晚3d直选推荐 | 今日3d直选一注 | 排3藏机图正版藏机图今天 3d八哥图库总汇d字谜图谜总汇大全 | 3d专家预测最准今天 | 3d和值振幅走势图带连线坐标 | 于海滨专家一语定胆十每日 | 3d牛彩网采摘收集预测汇总 | 今日3d预测 | 3d振幅和值尾走势图 | 3d推荐最新最准专家预测 | 唐龙一语定胆3d今天 | 布衣杀码图3d杀码 | 福彩3D独胆老师分析最新 | 今天3d开机号和试机号查询结果彩吧 | 三d预测专家预测 | 3d最准确的专家预测 | 3d今天中了多少注直选 | 于海滨今日杀码图最新 | 于海滨点评专家一注定胆保真版162期 | 【独胆真准】3d | 3d独胆双胆专家预测网 | 骄子铁鹰解3d字谜今日 | 于海滨海3d预测免费每日精选3d开奖号 | 3d太湖钓叟字谜三字 | 中国福彩3D独胆内部走势最新 | 3d藏机诗藏机图天中图库 | 今天3d数字定位三 | 今晚3d直选推荐 | 3d今晚专家预测最准确一注 | 3d今晚专家预测重点号码 | 3d布衣独胆王正版今天 | 3d专家预测最新推荐 | 铁人铁胆3d定位包星 | 今日太湖钓叟三字诀字谜 | 3d千禧金码试机号关注码 | 3d八哥图库总汇d字谜图谜总汇大全 | 3d最准确的专家预测 | 今日3d开机号和试机号列表三十期 | 陈华3d今晚赌独一胆天齐网 | 詹天佑3d最新消息今天 | 3d陈华今晚独胆推荐 | 三天计划3d独胆必出论坛 | 3d十大专家杀一码汇总 | 牛人独胆二天计划 | 3d预测最新最准3d之家 | 中国福彩3D独胆今晚走势最新 | 3d千禧试机号关注码金码是什么 | 3d晶晶必下一独胆今天 | 今日詹天佑3d预测 | 铁人真胆一句定三码3d字谜彩搜网 | 3d专家预测推荐号码最准最新 | 3d最精准的专家预测精选 | 3D独胆本期推荐最新 | 3d静态版预测静态版 | 3d直选一注必中 | 铁人铁胆定位包星 | 牛彩网p3专家预测汇总 | 福彩3D独胆下一期推荐最新 | 3d今天开机号和试机号码727 | 3D独胆下期推荐预测最新 | 于海滨3d预测号 | 3d今天开机号试机号对应码关注码 | 3d预测专家最准确今天 | 免费计划软件 | 今日3d专家预测号码推荐 | 3d2025322期太湖字谜 | 3d今晚推荐号码最新 | 中国杀码王绝对 | 3d今晚最准三注 | 今于海滨3d预测今天牛彩网 | 3d最新准专家预测 | 3d预测最新最准专家 | 3d免费预测 | 稳准狠三天计划 | 3d结果开奖号码今晚 | 3d预测最准的专家预测 | 3d最新预测专家推荐 | 3d十位胆方法100准确 | 3d预测今晚最准专家预测号码 | 3d推荐号今晚专家预测 | 今天的3d开机号和试机号查询 | 3d最新最准预测号码今天 | 3d小龙一句定三码今日字谜天中图 | 3d八哥图库总汇d字谜图谜总汇大全 | 3d千禧试机号关注金码30期 | 十拿九稳今天预测专家 | 今日3d字谜太湖钓叟字谜 | 3d选5个号多少钱 | 3d今晚专家预测最准确一注 | 唐龙一语定胆最新 | 于海滨杀码今天最新版 | 3d今晚专家推荐号 | 三地千禧开机号试机号金码关注 | 詹天佑最新预测3d | 今晚3d专家推荐号码 | 3d太湖钓叟三字诀字谜汇总 | 毒胆牛人三天计划必出 | 3d预测最准的专家预测 | 3d陈华今晚就赌一胆天齐网 | 排五预测号专家 | 字谜3d太湖马后炮 | 今晚快乐八专家预测推荐号 | 3d推荐号今日预测 | 3d预测最准最新准专家预测号码 | 詹天佑3d最新消息今天 | 3d今晚最准专家推荐号码 | 詹天佑3d最新消息今天 | 3d预测今晚最准专家预测号码 | 今于海滨3d预测今天单线联系 | 千禧3d开机号试机号金码 | 中国福彩3D独胆下期推荐杀号最新 | 3d最精准专家预测汇总今天 | 小财神三天计划独胆 | 3d最新专家预测汇总大全 | 3d预测专家推荐最准确 | 于海滨专家一语定胆十好心人 | 今于海滨3d杀码 | 西施姐姐精心推算一独胆146 | 3d开机号试机号今天最新50期 | 3D独胆高手杀号 | 3d专家预测最准最新 | 今天的3d开机号和试机号查询 | 3d牛彩网专家预测 | 3d独胆双胆专家预测网 | 三d开机号和试机号今天牛彩网彩 | 3d今晚最准专家推荐号 | 中国福彩3D独胆内部走势最新 | 财神一语定一注3d字谜 | 3d今晚预测最新最准确号码牛彩网 | 今日3d预测号码推荐 | 福彩3D独胆内部杀号 | 今晚3d之家| 3d村独胆双胆 | 3d开机号今天试机号查询 | 毒胆| 3d预测最准确的专家 | 3d千禧试机号和金码关注 | 3d北斗专家北斗预测今天079期3d | 3d预测专家推荐最新 | 3d连线走势图表图 | 3d预测最准专家预测牛彩网 | 3d万能三码天天中奖技巧 | 3d专家最新最准专家预测汇总 | 天才计划三天计划独胆 | 3d预测今晚最新最准确 | 今日3d太湖三字谜 | 太湖钓叟三字诀字谜解释总汇 | 3d基本走势图表完整版 | 今晚3d开奖结果是多少 | 3d专家今天推荐号 | 3d试机号金码号是多少 | 今天专家推荐号码3d | 近30期3d开奖结果 | 3d今晚最稳 | 3d太湖字谜三字诀 | 福彩3D独胆内部走势 | 千禧关注码试机号金码 | 3d之家预测专家预测 | 今晚3d预测开奖号码推荐 | 3d专家今日推荐号码 | 今于海滨3d预测今天 | 今天3d开机号和试机号 | 3d最准专家预测号今晚3d试机号 | 3d双胆,独胆非常非常稳定 | 3d今晚专家预测重点号码 | 3d今天预测最准确专家 | 3d预测最准确的专家预测软件 | 小红人的三天计划今天是什么 | 3D独胆独家推荐 | 排五专家预测精准 | 3d乐彩走势图表 | 3d推荐号今日预测 | 3d邻孤传走势图乐彩 | 3d今天专家预测最准 | 今日3d开奖号太湖字谜总汇 | 3d专家预测推荐号码最准最新 | 三d十拿九稳预测号码 | 3d四码直选多少钱一注 | 3d今晚最准专家推荐号 | 3d今晚预测直选四注 | 三d十拿九稳预测号码 | 千禧3d试机号关注码金码试机号 | 今日3d太湖字谜三字诀排三开奖结果 | 最新3d预测专家预测 | 今日期3d太湖字谜 | 3d预测专家最准最新 | 3d试机号后专家预测推荐汇总 | 3d今晚预测准确的专家预测 | 3d推荐号今日预测 | 今天晚上的3d开奖结果 | 陈华今晚3d赌一胆天齐网 | 3d双胆大师 | 今天3d太湖钓叟三字诀字谜 | 3d预测詹天佑最新 | 今天3d字谜解太湖字谜 | 3d彩报图今天的第五版 | 3d预测专家最准确今天 | 3d廊坊鸿运正版推荐 | 福彩3D独胆今日走势最新 | 3d北斗今日预测 | 于海滨最新预测今天 | 预测今晚3d一注 | 3d和尾振幅走势图3d专家 | 天齐网3d首页保真版3d预测 | 3d今天最新最准专家预测最 | 3d十大专家精准预测汇总 | 中国福彩3D独胆专家推荐最新 | 3d单个冷号最大遗漏 | 排三王牌小哥独胆 | 3d布衣独胆双胆必下一 | 3d独胆二天计划 | 福彩3D独胆最新命中率 | 今天3d开机号,试机号是多少 | 3d专家预测号 | 3d陈华今晚就赌一胆天齐网 | 3d预测专家精准推荐 | 3d谜语今天字谜今天的3d字谜是什么? | 3d和值尾振幅走势图带连线图表 | 3d今天预测最准确专家 | 3d最晚间字谜汇总大全 | 3d预测专家最准确的专家预测今晚 | 3d今天专家推荐号码是多少 | 3d专家预测最准 | 3d开机号和试机号今天金码关注号 | 3d百十和值尾振幅走势图 | 3d今天专家预测推荐号码 | 钱王点评十钱王给胆下一期预测 | 3d最新预测专家推荐 | 3d今晚专家预测最准确一注 | 3d玩彩老头预测今天号码 | 3d十大专家推荐号码汇总 | 3d和值振幅走势图彩宝贝 | 3d今天专家推荐号码推荐 | 3d预测詹天佑最新 | 3d最准预测专家推荐 | 3d专家专家预测汇总 | 3d推荐专家汇总 | 3d彩宝贝字谜 | 今天3d开机号 试机号是多少 | 试机号千禧关注金码 | 3d预测号码最准最新准专家预测号 | 3d今晚推荐三注 | 3d家彩预测 | 3d开机号和试机号今天 今晚 | 3d于海滨上的今天预测 | 3d十大专家杀跨度汇总 | 今天3d开机号试机号牛彩列表 | 3d任意两码差值尾走势图 | 3d杀码想要 | 3d独胆专家预测 | 2012099期3d开奖结果 | 今日3d专家预测号最准确 | 3d北斗专家北斗预测今天079期3d | 北斗3d今日预测 | 今晚3d专家预测精选一注 | 3d专家预测最准确最新今天 | 3D独胆明日精准预测 | 3d独胆陈华今晚就赌一个胆 | 3d单式怎么才算中奖 | 3d独胆预测 | 3d于海滨预测预测牛彩网 | 3d牛彩网试机号后专家预测汇总 | 3d三天计划独胆王 | 千禧试机号金码关注 | 3d独胆10 10| 3d独胆专家推荐独胆 | 今于海滨3d预测今天单线联系 | 3d开机号和试机号近100期列表 | 3d牛哄哄解太湖字谜今天 | 3d推荐号 | 3d今日专家推荐号 | 3d跨度振幅3d之家走势图 | 3d开机号和试机号金码今天的 | 3d必中永久直选500注大底 | 3d十大专家独胆 | 3d今晚最准最新专家推荐号 | 3d廊坊鸿运正版推荐 | 钱王点评+钱王老头预测 | 于海滨海3d预测保真 | 3d百十和尾振幅走势图走势 | 3d开奖号历史上的今天 | 今天3d太湖钓叟字谜三字诀 | 杀码是什么意思 | 3d直选一注50倍单挑 | 福彩3D独胆下期推荐精准预测 | 3d今晚上专家推荐号 | 陈华今晚就赌一胆今天最新 | 3d牛彩网预测 | 今天3d专家预测号码 推荐 | 今日3d藏机图汇总 正版 新版 | 3d断组今晚全部 | 3d十大专家汇总精选一注 | 3D独胆下期最新预测 | 投资独胆三天计划论坛 | 3d预测专家最准最新 | 试机号开机号金码关注号对应码3d | 3d于海滨预测预测牛彩网 | 千禧试机号金码关注 | 3d专家预测最准 | 今晚3d预测最准一注 | 3d专家预测最准最新今天 | 3d今晚预测准确的专家预测 | 唐龙点评每日一胆龙 | 今天3d开机号和试机号对应码查询 | 排五奖号 | 3d预测一注号推荐一3d预测一注今天 | 3d今晚最准最新专家推荐号 | 3d试机号是多少牛彩网 | 3d北丐七爷独胆 | 中国杀码王3d绝杀 | 3d今日太湖字谜图 | 福彩3D独胆最新命中率 | 3d今晚预测最准确一注今天 | 马后炮解3d太湖字谜总汇大全 | 于海滨海3d专家预测今晚一注 | 字谜3d太湖马后炮 | 3d图库彩吧彩报第三版 | 3d独胆双胆专家预测网 | 3d试机号开机号今天晚上金码号 | 3d今天专家预测号码最准确 | 三d推荐号专家预测今天 | 今晚3d专家预测精选一注 | 福家老三3d推荐号 | 今晚3d开奖号是多少 | 北斗3d今日专家预测推荐 | 3d计算机开机号夏天推荐 | 3d专家推荐号 | 3D独胆下期推荐预测最新 | 3d今晚预测最准确一注 | 今天的3d推荐号码是多少 | 3d专家预测最准最新 | 3d杀码一定牛 | 千禧3d关注码| 财神爷三天计划 | 今天3d必出一注 | 3d太湖历史字谜 | 彩坛老顽童3d独胆 | 今天十拿九稳号码预测 | 3d和值尾振幅走势图带连线图表 | 3d火火人独胆双胆必中 | 3d专家预测汇总牛彩网 | 3d专家预测最准牛彩网 | 3d今晚专家预测 | 3d牛哄哄解太湖字谜今天 | 3d晶晶必下一独胆今天 | 3d专家预测独胆最准确 | 3d预测专家推荐号码 | 今日3d推荐号码号 | 福彩3D独胆今晚必中最新 | 3d最精准的专家预测 | 牛人高手【3d精选】 | 3d今晚预测号码 | 今于海滨3d杀码 | 3d今晚专家推荐号 | 财神爷独胆三天计划,就这么牛 | 排三杀码专家天齐网 | 3D独胆内部精准预测 | 3d和值10有哪些号码 | 今晚3d试机号千禧试机号金码关注 | 3d开机号,试机号和开奖号 | 今晚3d试机号码和开机号 | 3d和值振幅走势图带连线坐标 | 【福星】3d单挑10注组 | 3d中国独胆王今天 | 3d晚秋和值谜字谜图 | 3d预测最准确的专家 | 今天3d专家推荐号 | 十拿九稳预测最准100% | 中国福彩3D独胆大神命中率 | 3d彩吧图库44462 | 今天3d精选一注 | 3d谜语今天字谜今天的3d字谜是什么? | 3d今天开机号和试机号开奖结果 | 3d解太湖字谜汇总 | 3d预测牛彩网预测汇总 | 今晚最准的一注3d | 3d今天专家推荐号码 | 今日3d专家推荐号码 | 十拿九稳专家最新预测 | 3d中国独胆王今天 | bbs,55125:cn彩吧论坛 | 3d开机号试机号今天最新50期 | 毒胆牛人三天计划 | 3d今晚必出一注100%准确直选推荐 | 今天的3d藏机图正版藏图 | 3d开机号和试机号今天查询 | 3d杀码大全 天齐网 于海滨3d最新预测 千禧3d试机号金码关注码对应码今晚 | 3d专家预测号| 3d开奖号历史上的今天 | 3d北斗专家北斗预测今天079期3d | 3d今晚预测100% | 3d专家预测最准最新 | 3d今晚和值是多少 | 最准3d专家预测推荐 | 詹天佑3d预测 | 中国福彩3D独胆最新推荐 | 千禧3d试机号金码今天关注码对应码 | 3d预测最准最新准专家预测 | 3d十大专家精准预测汇总 | 3d开机号试机号今天最新50期 | 3d开机号和试机号今天多少 | 3d今晚专家推荐预测重点号码 | 詹天佑3d推荐 | 3d 计算公式 | 最准3d专家预测推荐 | 今天晚上3d开奖结果 | 北斗3d今日专家预测推荐 | 3d专家预测汇总牛彩网 | 3d预测詹天佑最新 | 3D独胆内部精准预测 | 3d最新最准预测号码今天 | 投资独胆三天计划论坛 | 今于海滨3d预测今天单线联系 | 3d今晚最准最新专家推荐号 | 3d近100期开奖结果全部 | 今天最新3d开机号试机号关注码 | 3d今天开机号和试机号开奖结果 | 3d专家预测最准确最新新闻 | 福彩3D独胆实时走势 | 3d十大专家精准预测汇总 | 3d詹天佑最新预测今天 | 于海滨3d预测专家今天 | 3d最准预测专家预测大 | 3d预测一注号推荐今晚 | 3d于海滨一语定胆今天 | 3d专家预测最准确最新汇总 | 3d下期预测最精准的一注号码 | 3d太湖专家预测今晚 | 3d专家预测最准确最新今天牛彩 | 今天3d开机号 和试机号 查询结果 | 正版真精华布衣天下今天推荐号码 | 3d全球哥三胆 | 3d专家预测最新最准 | 牛彩网3d预测汇总大全手机版下载 | 3d专家预测最准确最新今天牛彩 | 3d太湖17500字谜| 3d专家最新最准专家预测汇总 | 3d和值尾振幅走势图3d之家 | 今天3d詹天佑预测分析 | 一定牛3d杀码 | 3d太湖字谜三字诀 | 3d最准确最新专家预测 | 3d今晚开奖结果号码是 | 3d和值推算公式 | 今晚3d天宇一句定三码字谜 | 3d近200期试机号和开奖号 | 3d詹天佑最新预测今天 | 3d今晚开奖号是多少 | 张克永专家3d预测 | 3d于海滨预测预测牛彩网 | 3d今天最新最准专家预测最 | 小财神三天计划独胆必下 | 3d今晚开奖号多少 | 3d双胆独胆非常非常 | 3d专家预测最准最新今天 | 中国福彩3D独胆最新推荐最新 | 神仙姐姐杀码今天的 | 3d今天的推荐号 | 3d开心毒胆独胆王 | 3d试机号开机号今天晚上金码号 | 3d独胆双胆专家预测网 | 3d今天预测最准确专家 | 3d最准确预测专家 | 最准的3d专家预测 | 3d专家预测最准确最新新闻 | 中国福彩3D独胆当天分析 | 3d小龙一句定三码今日字谜天中图 | 今晚3d必出号 | 中国福彩3D独胆今晚走势最新 | 3d近30期开机号试机号牛彩网 | 顶级胆神双胆必下 | 3d专家预测最准最新今天 | 3d今天专家预测最准确 | 今天3d詹天佑预测分析 | 3d近300期试机号和开奖号码 | 3d最准预测专家推荐 | 于海滨3d预测免费 | 福彩3D独胆当天分析最新 | 十拿九稳预测专家分析 | 3d今天精准一注 | 十拿九稳十大专家预测汇总最新一期 | 3d今天的开机号和试机号查询 | 3d牛彩网预测 | 3d近30期开机号试机号开奖号查询 | 3d开机号今天牛彩网近30期 | 3d开机号试机号关注号金码对应码 | 排三今晚十拿九稳最新预测 | 3D独胆独家杀号 | 3d专家今天预测汇总 | 3d手机预测牛彩网 | 今日3d开奖号太湖字谜总汇 | 3d今晚最准专家推荐号 | 今晚3d开奖结果是多少 | 三d预测专家最新推荐 | 3d最准预测专家预测汇总 | 3d今晚开机号试机号金码关注码今天 | 今晚3d专家预测精选一注 | 3d陈华就赌一个胆天齐网 | 3d近30期开机号试机号开奖号查询 | 3d今晚预测最准确一注 | 3d今晚上专家推荐号 | 今天3d专家推荐重点号 | 3d专家最新最准专家预测汇总 | 3d今晚字谜太湖字谜是什么 | 3d精准预测最准的专家直选 | 3d詹天佑预测分析牛彩网 | 千禧试机号金码关注码的历史记录 | 3d预测最准最新准专家预测号码 | 3d今天专家预测最准 | 3d直选一注必中 | 3d中国独胆王今天 | 今天的3d太湖字谜 | 3d预测最准最新准专家预测号码 | 3d神仙姐姐独胆一个 | 3d专家最精准的推荐 | 3d今天开机号和试机号码 | 3d晶晶必下一独胆今天 | 3d专家今天推荐号码推荐 | 3d独胆王正版 | 3d专家预测最准今天 | 3d百位遗漏振幅走势图南方双彩网 | 牛彩网3d预测汇总 | 3d最大值振幅走势图彩经 | 今晚3d开奖号走势图 | 3d专家预测汇总牛彩网收集汇总 | 3d今晚上推荐号码 | 3d今天专家推荐号码推荐 | 今天3d千禧试机号关注号金码号 | 3d基本走势综合图 | 3d今日热销号 | 今日期3d太湖字谜 | 3d白娘子跨度字谜汇总今天牛彩网 | 3d今晚开出什么号码 | 3d军长独胆定位 | 今晚3d预测最准一注 | 玩彩独胆王三天计划 | 3d定位独胆王三个双飞 | 十拿九稳预测分析 | 3d近30期开机号试机号开奖号查询 | 今天太湖字谜三字诀是什么 | 3d十大专家汇总精选一注 | 3d和值尾振幅走势图200期 | 3d最新最准专家预预测 | 3d和值牛彩网 | 3d今晚最准专家推荐号码 | 正版真精华布衣天下今天推荐号码 | 六鬼神算图3d谜图 | 3d开奖号走势图表 | 福彩3D独胆老师精准预测 | 3d字谜太湖解 | 3d预测最准确的专家预测软件 | 宇海宾杀码图 | 3d藏机图正版藏机图全图牛彩网 | 开心毒胆王今晚独胆 | 3d今晚精彩预测 | 杀码3d杀码图 | 3d今晚专家预测最准确一注 | 3d今晚专家推荐号 | 今晚3d专家推荐号码是多少 | 3d精准预测最准的专家 | 3d独胆双胆下一 | 3d预测最准确的专家 | 3d六码复式多少钱一注 | 试机号开机号金码关注号对应码3d | 3d十大专家双胆预测汇总 | 3d彩吧图库44462 | 经典小胆王三天计划配组合 | 今日3d蓝仙子一句定三码字谜 | 3b千喜今天试机号关注金码 | 3d预测总汇 | 3d今晚最准专家推荐号 | 3d开奖必中 | 牛彩网3d预测分析汇总大全 | 3d今晚预测准确的专家预测 | 于海滨海3d专家预测今晚一注 | 3d农村小伙子最新预测 | 福彩3D独胆本期命中率 | 今晚3d直选一注 | 福家老三3d推荐号 | 3D独胆本期预测最新 | 3d胆1拖9直选多少钱一注 | 于海滨3d预测天齐网 | 3d今日预测最准专家预测 | 今日3d直选 | 排三太湖钓叟字谜三字诀 | 中国福彩3D独胆下期分析最新 | 3d条件预测专家专区 | 3d试机号今晚开机号 | 铁人铁胆3d包星定位最新今天 | 3d预测最准确专家 | 开奖结果3d今天晚上 | 3d近30期开奖号码 | 牛彩网3d专家预测汇总 | 3d预测最新最准专家 | 今晚3d专家推荐重点号码 | 今天3d牛彩网专家预测 | 3d专家预测最准确今天 | 3d结果开奖号码今晚 | 3d近100期的开奖号码和试机号 | 3d专家今天预测一注 | 3d最新专家预测推荐 | 最准3d专家预测推荐 | 今天专家推荐号码3d | 福彩3D独胆下一期推荐最新 | 3d百位绝杀一码 | 三d走势图基本走势图彩宝网 | 3d最新最准预测号码今天 | 牛彩预测汇总3d最新 | 3d预测最准的专家 | 3d一定牛专家预测推荐 | 中国杀码王绝杀 | 3d推荐最新最准专家预测 | 3d最准预测号| 3d走势图和值振幅 | 3d近100期的开奖号码和试机号 | 今日3d一句定三码和值谜食物全部 | 3d于海滨上的今天预测保真 | 3d彩宝贝字谜 | 3d千禧开机号和试机号码 | 福彩3D独胆最新推荐最新 | 今天晚上3d推荐号码 | 今日3d预测号码推荐 | 3d专家推荐最新预测 | 毒胆牛人三天计划今天 | 拼搏在线3d开机号和试机号列表 | 3d计算机开机号夏天推荐 | 福彩3D独胆老师必中 | 3d专家今日推荐号码 | 3d今天开机号和试机号100期 | 专家推荐一注6+1 | 3d近200期试机号和开奖号 | 3d预测今晚推荐号 | 3d预测牛彩网 | 3d和值尾振幅走势图3d走势3d之家 | 千禧开机号试机号关注号金码杀码 | 今晚3d预测最准一注 | 千禧试机号金码今天的 | 于海滨海3d预测免费每日精选3d开奖号 | 3d最准确预测100%一注 | 3d今天开机号和试机号 | 3d千禧开机号试机号 | 3d杀码最准确| 白姐3d今天预测号码 | 3d预测最准确专家预测 | 于海滨海3d专家预测今晚一注 | 3d十大专家双胆预测汇总 | 3d下期预测最精准的一注号码 | 彩坛老顽童3d独胆 | 3d今晚上预测号码 | 中国杀码王绝杀 | 最新3d预测专家预测 | 准香港3d漫画资料 | 3d今晚开奖号码结果是多少 | 3d近30期开奖号码 | 今天3d开机号试机号对应码列表 | 3d专家预测推荐号码 | 3d千禧开机号试机号关注金码对应码 | 于海滨杀码图今天最新 | 3d开机号和试机号今天金码关注号 | 3d最近1000期走势图表综合版图片 | 今天3d于海滨预测 | 3d预测 下一期 3d预测专家 3d预测 | 3d和走势图 和值尾连线 | 3d跨度分位走势图图感觉 | 千禧3d试机号金码关注码对应码 | 3d专家预测最准最新今天 | 今于海滨一语定胆保真今天 | 3d专家预测于海滨 | 3d今晚的开奖号码 | 于海滨点评加专家一语 | 3d牛彩网专家预测 | 3d詹天佑最新预测今天 | 詹天佑今日最新点评 | 3d断组预测 | 詹天佑3d预测推荐 | 3d跨度振幅走势图3d专家 | 今于海滨3d预测今天牛彩网 | 3d牛彩网今天开机号试机号 | 3d预测专家最准最新 | 3d今天专家预测推荐号码 | 3d百位定位走势图 | 3d之家双胆独胆预测 | 3d开机号和试机号码牛彩网 | (暴富密码)绝杀两码预测 | 西施姐姐就赌一个独胆 | 于海滨一语定胆保真 | 今于海滨3d杀码图 | 今天3d专家预测号码 推荐 | 3d北斗专家北斗预测今天079期3d | 3d恋预测今晚预测是哪里出的 | 3d专家预测最准确最新新闻 | 3d牛彩网断组预测 | 3d今晚最准的一注 | 高手看3d经典独胆组合 | 今于海滨3d预测今天单线联系 | 3d预测最准确的专家预测软件 | 双胆王看双胆3d | 3d今天专家预测号码 | 今晚3d开机号试机号金码 | 牛彩网预测专家3d | 千禧3d试机号金码关注码对应码 | 3d近100期的开奖号码和试机号 | 3d专家今天预测一注 | 3d走势图(带连线版) 试机号 | 唐龙一胆今天最新 | 3d字谜太湖钓叟三字诀今天 | 牛人独胆三天计划 | 于海滨今天杀码 | 3d今晚专家预测最准确号码 | 3d十大专家推荐号码汇总 | 3d预测专家最准确的专家预测 | 今日3d字谜太湖钓叟字谜正版 | 3d预测专家推荐最准确 | 3d今晚专家预测 | 3d于海滨专家预测 | 于海滨今日3d预测 | 直选三注必中一注3d | 今晚3d直选一注 | 3d千禧试机号关注码金码今天晚 | 财神一注3d | 财神爷独胆三天计划,就这么牛 | 顶级胆神双胆下一 | 3d彩宝网开机号和试机号 | 3d今天最准专家预测 | 今天3d开机号和试机号码结果查询 | 中国福彩3D独胆独家必中最新 | 三d试机号后专家预测汇总 于海滨专家3d今天预测 | 3d走势图专家推荐号码 | 3d今晚最准最新专家推荐号 | 太湖字谜三字诀论坛 | 今晚3d专家推荐号码是多少 | 三地百位振幅3d之家走势图 | 3d今天开机号和试机号码200 | 今天3d千禧试机号关注号金码号 | 3d今天推荐号码是多少 | 3d最精准的专家预测精选 | 陈华3d今晚赌独一胆天齐网 | 张克永3d预测今天 | 牛彩网近30期3d开机号试机号 | 3d开机号近30期列表彩宝网 | 3d预测一注号推荐今晚 | 3d今天专家预测推荐号码 | 今天3d牛彩网专家预测 | 今于海滨3d预测 | 天齐藏机图汇总正版藏机图 | 3d试机号牛彩网近三十期 | 55125预测汇总3d | 3d和值跨度走势图带连线 | 于海滨专家一语定胆十好心人 | 3d今晚专家预测推荐 | 3d百位走势图带连线图表专业版 | 三d牛彩网开机号试机号是多少 | 千禧3d试机号关注号 | 3d今晚专家推荐预测重点号码 | 3d专家最准确推荐最新 | 福彩3D独胆独家预测最新 | 3D独胆下期最新预测 | 3d太湖字太湖字谜今天 | 3d每天一个独胆 | 3d专家预测最准最新 | 3d精选号码推荐今天最新 | 3d今天预测汇总 | 3d字谜太湖钓叟三字诀今天 | 牛彩网3d专家预测汇总 | 3d今天开机号试机号200期 | 十拿九稳今天预测 | 3d预测今晚最准专家预测号码 | 3d近100期的开奖号码和试机号 | 3d今晚十大专家预测汇总 | 今日詹天佑3d预测 | 3d千禧试机号金码关注码对应码 | 3d太湖字谜三字诀 | 3d预测专家汇总预测 | 开奖结果3d今天晚上 | 3d下期预测最精准的一注号码 | 3d怎么守号不亏 | 3d预测专家预测 | 3d今天专家预测号码最准确 | 3d预测今晚最准专家预测号码 | 福彩3D独胆大神精准预测最新 | 今晚试机号多少3d | 今日3d预测号码推荐 | 3d太湖字谜字谜汇总 | 3d今晚专家预测重点号码 | 詹天佑3d最新消息今天 | 3d预测最准确专家预测牛彩网 | 3d藏机图正版藏机图汇总今天最新 | 3d于海滨上的今天预测 | 3d直选走势图(专业版) | 3d太湖字谜三字诀 | 毒牛人三天计划 | 3d专家免费预测 | 3d中间号走势图振幅走势图 | 3d今日预测最准专家预测 | 3d预测最准的专家预测 | 3d今日预测最准专家预测 | 3d试机号历史情况 | 3d太湖钓叟字谜汇总正版藏机图 | 3d最新专家预测精选一注 | 福彩3D独胆独家命中率最新 | 3d百个位和值尾走势图 | 专家推荐一注6+1 | 3d独胆双胆独胆3d之村 | 排三太湖钓叟字谜三字诀 | 3d今天开机号和试机号码 | 3d预测今晚最准专家预测号码 | 3d今晚最稳一注 | 今晚的3d | 3d真实的谎言正版和值字谜 | 千禧3d今晚的试机号码 | 十拿九稳专家最新预测 | 3d太湖钓叟三字诀字谜汇总 | 陈华3d今晚赌独一胆天齐网 | 3d试机号开机号关注号金码 | 今晚最全3d晚间字谜汇总192期 | 今晚3d精准一注直选 | 3d和值走势图(带连线图) | 3d试机号后专家预测推荐汇总 | 3d最新专家预测推荐 | 3d最准确预测专家 | 3d今晚最准最新专家推荐号 | 于海滨的今日预测 | 3d千禧试机号金码关注最近10期 | 3d开心毒胆独胆王 | 今晚3d一注50倍 | 3d预测推荐汇总牛彩网采摘收集 | 小红孩3d独胆今天 | 3d组选中一注多少钱 | 于海滨3d杀码 | 3d预测最准专家预测 | 于海滨海3d预测牛彩网 | 3d开机号和试机号今天 今晚 | 3d最精准的专家预测 | 3d之家独胆,双胆 | 3d手机预测牛彩网 | 今天3d开机号和试机号查询结果彩吧 | 3d专家预测号码推荐今天 | 3d基本走势图表完整版 | 3d今天开机号和试机号100期 | 于海滨海3d预测牛彩网 | 最新3d预测专家预测 | 3d预测一注推荐 | 今日太湖字谜3d总汇 | 3d十大专家推荐号码汇总 | 3d基本走势图 综合 太湖三字诀字谜三 | 于海滨3d杀码 | 3d预测专家最准确 | 3d胆王双胆独胆 | 3d最准确的预测方法 | 3d最准专家预测号今晚3d试机号 | 三d独胆王独胆双胆 | 3d今晚最新预测 | 3d基本走势图. | 今天3d开机号试机号金码 | 毒胆牛人三天计划 | 天齐藏机图汇总正版藏机图 | 3d预测专家| 3d今晚必中一注 | 3d詹天佑3d预测 | 今日3d专家预测总汇 | 3d杀码预测| 3d带连线走势图(专业版) | 今晚3d预测推荐一注 | 3d专家今天预测一注 | 小红人的三天计划今天是什么 | 3d预测最准专家预测牛彩网 | 3d两胆下一稳定方法 | 中国福彩3D独胆最新必中 | 3d预测最准最新准专家预测号码 | 3d专家最新最准专家预测汇总 | 3d今晚中奖号157 | 三d字谜图谜总汇牛彩网 | 今晚3d出的什么号 | 3d牛彩网专家预测 | 3d独胆专家推荐独胆 | 今天的3d开奖号是多少 | 3d试机号近10期彩经网 | 3d今天开机号和试机号金码对应码 | 马后炮解今日太湖字谜三字诀 | 财神一语定一注3d字谜 | 3d詹天佑预测分析牛彩网 | 3d预测最准最新牛彩网 | 3d今日太湖字谜图 | 3d北斗专家北斗预测今天079期3d | 今晚3d结果 | 3d专家预测推荐号码 | 手机牛彩网3d预测 | 3d和值尾振幅走势图近50期 | 3d精选号码推荐今天最新 | 3d精准推荐号 | 财神爷三天计划独胆组合 | 3d陈华今晚就赌一胆天齐网 | 今晚最全3d晚间字谜汇总192期 | 3d专家预测推荐 | 3d今天专家推荐号码推荐 | 千禧3d试机号金码关注码杀码今天3d | 3D独胆独家推荐最新 | 詹天佑今天3d推荐 | 铁人真胆一句定三码3d字谜彩搜网 | 3d今天开机号和试机号开奖结果 | 三d开机号和试机号今天牛彩网彩 | p3千禧试机号关注金码 | 3d今天专家推荐号码推荐 | 3d八哥图库总汇d字谜图谜总汇大全 | 3d和值尾振幅走势图50期 | 3d金银胆神双胆 | 3d预测今天更准 | 千禧3d关注码 | 3d下期预测最精准的一注号码 | 千禧今晚3d试机号关注码金码对应 | 3d独胆二天计划 | 3d直选综合走势图 | 3d三胆| 福彩3D独胆老师走势最新 | 3d推荐号今晚专家预测 | 太湖3d字谜今天的 | 3d专家预测推荐号码 | 3d牛彩网断组预测 | 3d毒毒毒胆胆胆中中中 | 福彩3D独胆最新命中率 | 于海滨海3d最新预测 | 投资计划独胆三天计划 | 千禧试机号金码关注号对应码杀码 | 于海滨一语定胆天齐网 | 今天3d詹天佑预测分析 | 三d预测汇总 | 3d今天专家预测最准 | 福彩3D独胆专家杀号 | 3d北斗专家北斗预测今天079期3d | 千禧试机号关注金码是什么 | 牛彩网3d预测汇总大全 | 3d预测牛彩网预测汇总 | 今日排三太湖钓叟字谜三字诀 | 3d今天的试机号和开机号 | 3d预测最准确的专家预测软件 | 3d最新专家预测推荐 | 3d藏机图正版藏机图全图牛彩网 | 3d专家预测最准确今天牛彩网 | 3d彩报图今天图库彩吧 | 3d预测最准最新准专家预测号码 | 3d牛彩网试机号后专家预测汇总 | 3d今天专家预测号码 | 今天3d推荐号码今晚预测 | 于海滨最新预测今天 | 3d十大专家推荐号码汇总 | 今日3d预测 | 3d今天专家预测最准 | 太湖解3d字谜汇总 | 3d胆王双胆独胆 | 3D独胆下一期精准预测 | 3d今晚最稳一注 | 3d今晚必出的一注 | 3d玩彩老头预测今天号码 | 福彩3D独胆老师精准预测最新 | 3D独胆高手走势最新 | 于海滨3d预测牛彩网 | 3d专家预测推荐号码 | 今日3d专家预测号码 | 今日3d预测 | 3d百位遗漏振幅走势图南方双彩网 | 3d千禧试机号金码关注码对应码 | 3d双飞大师双胆组合 | 今日3d推荐号码号 | 3d今天开机号和试机号322 | 3d今晚专家预测最准确号码 | 3d开机号,试机号和开奖号 | 3d预测最准确的专家预测软件 | 3d专家预测号码最准确 | 3d专家预测推荐 | 今晚3d开奖号码多少 | 今天3d开机号和试机号码结果查询 | 3d之家独胆,双胆 | 牛彩网3d预测汇总 | 3d推荐最新最准专家预测 | 3d近30期试机号和开奖结果 | 钱王杀码图码 | 今天3d专家推荐号 | 3d今晚字谜太湖字谜是什么 | 今晚3d专家预测精选一注 | 3d藏机图正版藏机图打印版 | 今晚三d推荐什么号码 | 太湖3d字谜今天的 | 3d今天专家预测号码 | 3d开机号和试机号金码关注对应号 | 3d预测最准专家预测号码 | 3d专家预测更准确今天 | 3d邻孤传走势图乐彩 | 3d预测最准的专家预测 | 三d牛彩网开机号试机号是多少 | 3d今晚最准三注 | 3d预测最准确的专家预测软件 | 3d财神爷今晚独胆 | 3d最新专家预测汇总牛部长预测 | 3d字谜历史记录 | 今晚最准一注3d | 今天3d中奖 | 3d试机号今天开机号查询 | 3d今日预测最准专家预测 | 3d和值尾金木水火土走势图 | 3d今晚预测最新最准确 | 专家预测3d预测 | 今天3d推荐号码今晚预测 | 于海滨一语定胆《保真》 | 专家预测3d号码准确 | 3D独胆本期命中率 | 3d邻孤传复隔中走势图 | 3d天中杀码图专区 | 3d今晚最准一注 | 3d十大专家预测汇总 | 今日钱王给胆点评 | 3d专家预测推荐号码最准最新 | 3d和值尾振幅走势图50期 | 3d之家双胆独胆预测 | 3d预测最准确的专家预测软件 | 3d预测最准确的专家 | 3d免费预测 | 于海滨最新3d预测推荐今天 | 3d独胆双胆预测 | 今晚3d直选推荐 | 97654天中图库,今天晚3d试机号 | 3d今晚专家预测最准确号码 | 福彩3D独胆大神必中最新 | 十拿九稳预测专家分析 | 解太湖3d字谜太湖 | 3d今晚开奖号多少 | 3d百位走势图带连线图表专业版 | 3d最新准专家预测 | 3d专家预测最准今天 | 3d詹天佑最新预测牛彩网 | 3d单个冷号最大遗漏 | 3d专家预测最准确最新今天 | 3d今晚专家预测推荐号 | 3d各类和值谜追加汇总 | 今日3d专家预测号码 | 准香港3d漫画资料 | 3d今晚预测最准确一注 | 3d今晚预测直选四注 | 解3d太湖钓叟字谜汇总 | 3d最精准的专家预测精选 | 3d今晚专家预测 | 3d预测专家推荐号码 | 于海滨3d最新预测 | 3d推荐号今晚专家预测 | 3d预测一注精准 | 3d字谜太湖钓叟三字诀今天 | 于海滨海3d专家预测 | 3d一语定胆太湖字谜 | 今晚3d专家最精准的预测 | 3d詹天佑最新预测牛彩网 | 今天3d专家预测号码 推荐 | 3d预测最准最新准专家预测号码 | 3d最新专家预测汇总 | 3d基本走势综合图 | 今日3d预测专家推荐 | 3d开奖号走势图表 | 3d今晚十大专家预测汇总 | 3d精准预测最准的专家直选 | 3d预测最准专家预测牛彩网 | 3d杀码专家杀码最精准 | 福彩3D独胆本期预测 | 牛彩网3d预测汇总大全手机版下载 | 3d预测一注号推荐今晚 | 3d今晚最准最新专家推荐号 | 中国福彩3D独胆实时推荐 | 今日3d专家预测号码推荐 | 3d最准确的预测方法 | 3d推荐最新最准专家预测 | 中国福彩3D独胆最新推荐最新 | 3d专家推荐最精准的号码 | 3d北斗专家北斗预测今天079期3d | 3d就打一个胆中了多少钱 | 3d预测推荐汇总牛彩网采摘收集 | 3d千禧试机号和金码关注 | 独胆三天计划 | 3d预测专家最准确的专家预测今晚 | 3d今晚十大专家预测汇总 | 3d北斗专家北斗预测今天079期3d | 排五开机号试机号今天查询 | 最准的3d专家预测 | 今晚3d预测最准一注 | 3d牛彩网字谜图谜总汇九 | 3d精选号码推荐今天最新 | 今晚3d开奖号是多少 | 3d今晚专家预测最准确号码 | 3d跨度5有多少注 | 3d今晚最准专家预测号码145 | 铁娘子三天计划独胆必下300 | 3d预测最准专家预测 | 今于海滨3d预测今天牛彩网 | 东北小胆神今晚独胆 | 3d试后太湖一语定胆字谜 | 3D独胆明日推荐最新 | 唐龙点评每日一胆龙 | 3d千禧试机号关注号金码号开机号 | 3d机选一注 | 3d今晚预测一注 | 《金银胆神》金胆银胆3d最新一期开奖 | 3d今晚开机号试机号金码关注码今天 | 詹天佑3d最新预测今天 | 中国福彩3D独胆下期最新必中 | 3d专家预测最新最准 | 3d今天开机号和试机号是多少 | 今晚3d开机号和试机号是多少 | 3d今天预测最准确专家 | 3d开奖号码近50期 | 3d断组今晚全部 | 3d预测今晚推荐号 | 今天3d詹天佑预测分析 | 中国福彩3D独胆最新推荐最新 | 太湖解3d字谜汇总 | 今天的3d开机号和试机号查询 | 3d今晚试机号是多少查询 | 3d开奖杀码定胆 | 3d姜子牙一句定三码最准字谜汇总 | 3d飞胆图绕胆图 | 中国福彩3D独胆独家必中 | 十拿九稳今天预测专家 | 3d姜子牙一句定三码最准字谜汇总 | 3d专家预测最准牛彩网 | 3d直选精准100%免费 | 今晚3d开机号和试机号是多少 | 成功路上3d双胆独胆 | 3d专家最新最准专家预测 | 解太湖3d字谜太湖 | 3d白娘子跨度字谜汇总今天牛彩网 | 千禧3d试机号关注码金码试机号 | 今天3d开机号和试机号对应码查询 | 3d今天专家预测推荐号码 | 3d必出规律胆 | 今晚3d开奖号试机号 | 【开心毒胆】今天 | 3d试机号牛彩网近三十期 | 3d今晚预测准确的专家预测 | 天齐网3d必中两胆今天 | 排三十拿九稳今天预测 | 3d预测专家最准最新 | 3d今晚预测最新最准确号码牛彩网 | 今天十拿九稳号码预测 | 3d晚间字谜总汇大全 | 3d杀码一定牛 | 3d十个位差值振幅走势图3d之家 | 千禧试机号金码关注号对应码杀码 | 3d通辽独胆王今天 | 今天三d专家推荐号码 | 于海滨3d预测免费每日精选 | 3D独胆本期命中率 | 3d直选走势图(专业版) | 最新3d预测专家预测 | 3d最新准专家预测 | 3d近30期开机号试机号开奖号查询 | 3d今天最准专家预测 | 3d北斗专家北斗预测今天079期3d | p3千禧试机号关注金码 | 福彩3D独胆下一期走势最新 | 3D独胆今晚命中率 | 今天十拿九稳号码预测 | 北斗3d今日专家预测推荐 | 排3藏机图正版藏机图今天 3d八哥图库总汇d字谜图谜总汇大全 | 3d詹天佑最新预测牛彩网 | 3d北斗专家北斗预测今天079期3d | 3d独胆双胆专家预测网 | 3d下期预测最精准的一注号码 | 今晚3d专家推荐号 | 牛彩网杀码 | 3d跨度5有多少注 | 3d机选一注 | 3d开机号近30期列表彩宝网 | 三d便民字谜图谜总汇 | 3d今天开机号和试机号码727 | 3d今天专家推荐号码 | 今晚的3d| 3d今日开机号和试机号及关注码 | 3d成功路上人双胆独胆 | 于海滨海3d专家预测 | 3d专家杀码天中图库 | 三天计划3d独胆必出论坛 | 3d今晚专家推荐号 | 千禧3d试机号关注号 | 3d跨度遗漏值振幅走势图彩经网 | 3d红波蓝波走势图大中小 | 3d和值基本走势图 | 3d最新最准专家预测号码 | 3d十大专家精准预测汇总 | 3d杀码专家大全 | 解3d太湖钓叟字谜汇总 | 于海滨3d预测专家今天 | 3d今晚最准三注 | 3d预测最准专家预测号 | 今天专家推荐号码3d | 3d太湖字谜总汇总(正版) | 3d专家预测最准确最新今天牛彩 | 3d今晚的开奖号码 | 3d金码开机号和试机号 | 3d长中剑客预测今天 | 3d下期专家预测 | 3d今晚预测最新最准确号码牛彩网 | 福彩3D独胆老师杀号最新 | 3d今晚最准专家推荐号 | 今天的3d太湖字谜 | 3d专家预测推荐 | 3d千禧金码试机号关注码 | 3d今晚专家推荐预测重点号码 | 3d免费精准直选三注 | 3d开机号试机号30期列表走势图 | 3d今晚预测最新最准确号码牛彩网 | 3d之家预测专家预测 | 3d预测专家最准最新 | 3b预测汇总牛彩网 | 预测今晚3d一注 | 今天3d专家解太湖字谜汇总 | 今晚3d专家最精准的预测 | 齐彩网3d专家预测 | 于海滨海3d专家预测 | 3d今晚出的什么号 | 3d太湖字太湖字谜 | 毒胆牛人三天计划 | 3d最精准的专家预测 | 3d今天专家预测号码 | 六鬼神算图3d谜图 | 3D独胆内部精准预测 | 3d鸿运坊预测号 | 3d百位十位个位走势图 | 3d开机号近30期列表彩宝网 | 今天龙头凤尾预测 | 今天3d试机号开机号牛彩网 | 马后炮解3d太湖钓叟字谜总汇大全 | 今晚3d专家预测精选一注 | 3d 计算公式| 十拿九稳预测最准100% | 中国福彩3D独胆实时精准预测 | 3d预测最精准一注 | 于海滨3d预测今天 | 3d双胆独胆 | 3D独胆团队精准预测最新 | 3d专家解太湖字谜汇总 | 孟老师专家预测3d | 3d双胆独胆非常稳 | 今天专家推荐号码3d | 3d最新最准专家预测号码 | 排五专家预测精准 | 3d之家双胆独胆预测 | 3d开机号今天试机号30期 | 3d开机号和试机号金码关注 | 3d开机号今天试机号查询 | 今晚上3d开奖号码 | 3d太湖钓叟字谜三字诀 | 3d最新最准专家预测号码 | 中国福彩3D独胆下期推荐推荐最新 | 3d试机号今晚牛彩网 | 于海滨今日杀码图最新 | 3d今晚开奖结果号码是 | 昨天3d开奖号是多少 | 3d预测最准最新准专家预测号码 | 3d藏机图正版藏机图汇总今天最新 | 3d詹天佑推荐号 | 3d今晚预测最准确一注 | 三d之家独胆 | 3d最新专家预测汇总大全 | 今日3d蓝仙子一句定三码字谜 | 3d最新专家预测汇总 | 3d千禧试机号关注码金码今天晚 | 3d和值振幅走势图彩宝贝 | 3d免费专家预测推荐今天最新 | 今天3d开机号试机号牛彩网 | 3d跨度分位走势图图感觉 | 3d今天推荐号码是多少 | 3d专家预测最准确最新汇总对应码 | 3d直选综合走势图 | 3d预测号码最准最新推荐 | 3d专家预测号码最准确 | 3d专家预测最准 | 3d预测 下一期 3d预测专家 3d预测 | 今天3d开机号关注号试机号金码 | 3d专家预测最准确最新今天 | 3d今晚十大专家预测汇总 | 3d藏机图正版图汇总 | 3d专家预测最准最新今天 | 3d跨度振幅近100期走势 | 3d上下五千年专家预测 | 3d十大专家精准预测 | 3d于海滨预测预测牛彩网 | 3d今日专家推荐号 | 今天十拿九稳号码预测 | 3d今晚最精准专家 | 千禧试机号金码关注码的历史记录 | 3d推荐牛彩网 | 于海滨海3d专家预测今晚一注 | 今天3d太湖钓叟字谜三字诀 | 3d最精准专家预测汇总今天 | 3d今天专家预测号码最准确 | 3d十大专家汇总精选一注 | 3d推荐最新最准专家预测 | 中国福彩3D独胆当天分析 | 3d专家预测汇总牛彩网 | 3d今天中了多少注直选 | 3d试机号后专家预测推荐汇总 | 3d老虎独胆 | 3d今晚最准专家推荐号 | 3d开机号和试机号今天 今晚 | 3d字谜汇总大全总汇牛彩网开机号 | 3d今晚上专家推荐号 | 3d今天开机号和试机号金码对应码 | 3d最准一注号码 | 3d单双走势图表 | 3d开机号和试机号今天多少 | 3d和值基本走势图 | 3d军长独胆定位 | 最新3d预测专家预测 | 小薇3d预测今天推荐 | 3d今晚预测开奖号码 | 3d今晚专家推荐号 | 今晚3d和值推荐 | 今天最新3d开机号试机号关注码 | 牛兄双胆 | 3d开奖结果今晚号码 | 太湖字谜太湖钓叟三字诀 | 3d双胆最准100% | 55125预测汇总3d | 3d今晚最稳一注 | 3d今晚专家预测 | 3d专家预测最准最新 | 3d预测专家最准确今天 | 3d太湖钓叟字谜三字诀了3d开奖 | 3d专家最新最准专家预测 | 3d开机号今天近100期南方查询 | 十拿九稳专家预测专栏 | 3d今天预测最准确专家 | 今天3d千禧试机号关注号金码号 | 3d今日专家推荐 | 3d杀码图汇总牛彩网 | 今天3d牛彩网专家预测 | 千禧3d试机号金码今天关注码对应码 | 福彩3D独胆老师杀号最新 | 3预测,3d专家预测,最准确今天彩网 | 太湖钓叟三字诀字谜解释总汇 | 3d预测一注号推荐今晚 | 3d 今日太湖字谜 | 于海滨点评专家一语保真 | 3d和值基本走势图表 | 3d十大专家汇总精选一注 | 福彩3D独胆明日推荐 | 3d最精准专家预测汇总今天 | 千禧3d试机号关注码金码今天的 | 3d双胆大师今天 | 3d火火人独胆双胆必中 | 三地千禧关注码试机号 | 今日3d专家预测总汇 | 3d今晚和值推荐 | 3d开机号和试机号今天 今晚 | 3d专家预测最准最新今天 | 牛彩网3d预测分析汇总大全 | 3d今天专家推荐号码推荐 | 3d独胆中中中| 3d预测最准确的专家预测软件 | 今日3d预测号码推荐 | 3d预测最准确的专家 | 3d字谜财神一语定一注 | 3d今晚试机号是多少查询 | 2002146期3d开奖结果 | 中国福彩3D独胆当天精准预测最新 | 十拿九稳预测专家分析 | 于海滨最新预测结果 | 开心笨小孩3d独胆 | 稳准狠三天计划 | 千禧3d试机号金码关注码牛彩网 | 3d解太湖字谜汇总 | 今日正版藏机图全部汇总239期 | 3d试机号关注号金码对应码开机号 | 3d专家预测最准最新 | 3d试机号后专家预测汇总手机网 | 3d条件预测专家专区 | 中国福彩3D独胆当天走势最新 | 于海滨海3d预测牛彩网 | 于海滨专家预测3d两吗 | 3d今晚专家推荐预测重点号码 | 今晚上的3d开奖号 | 今日3d太湖字谜三字诀 | 3d今天专家预测最准确 | 3d今晚预测开奖号码 | 太湖字谜三字诀汇总 | 太湖字谜钓叟3d字谜 | 于海滨3d专家预测今天 | 3d专家最新最准专家预测汇总 | 3d杀码图天齐网 | 3d专家预测推荐汇总 | 今晚3d开奖直选结果 | 3d独胆双胆专家预测网 | 3d预测最准最新准专家预测号码 | 3d今晚十大专家预测汇总 | 于海滨3d预测牛彩网 | 3d独胆10中10| 唐龙一胆| 3d今天专家预测最准确 | 3d今晚十大专家预测汇总 | 3d今天开机号和试机号金码对应码 | 3d跨度遗漏值振幅走势图彩经网 | 北斗3d今日专家预测推荐 | 于海滨海3d预测牛彩网 | 今晚3d专家推荐号码 | 3d今日预测最准专家预测 | 3d杀码图 | 3d专家预测于海滨 | 3d推荐号今晚专家预测 | 3d双胆独胆非常非常 | 福彩3D独胆本期推荐 | 3d最准专家预测号 | 三d今晚预测推荐十注 | 太湖字谜三字诀论坛 | 3d于海滨上的今天杀码 | 于海滨3d预测今天 | 3d独胆双胆独胆3d之村 | 3d小鱼图今日背面字谜 | 杀码王杀码 | 于海滨点评专家一注定胆保真版 | 3d3d今晚预测 | 今天3d专家解太湖字谜汇总 | 今天3d字谜解太湖三字诀 |